+ Lisa oma töö      

Otsid ehitajat "Projekteerimine" valdkonnast?

Parima pakkumise ja teostaja leidmiseks lisa oma töö.

Ehitusprojekt

ID 60714

568 vaatamist

Prindi

  • check Pakkumiste tegemine
    kuni 21.06.2021
  • check Võitja valik kuni
    28.06.2021
  • 3 Töö teostamine
    ja hinnang
Hanke lõpp: E, 21. juuni, 2021
Maakond: Harjumaa
Linn: Saue
Tööde algus: E, 31. mai, 2021 (Soovituslik)
Tööde lõpp: L, 31. juuli, 2021 (Soovituslik)
Ehitusmaterjalid: Töö tellija poolt
Soovin pakkumisi: Summa kogu projektile

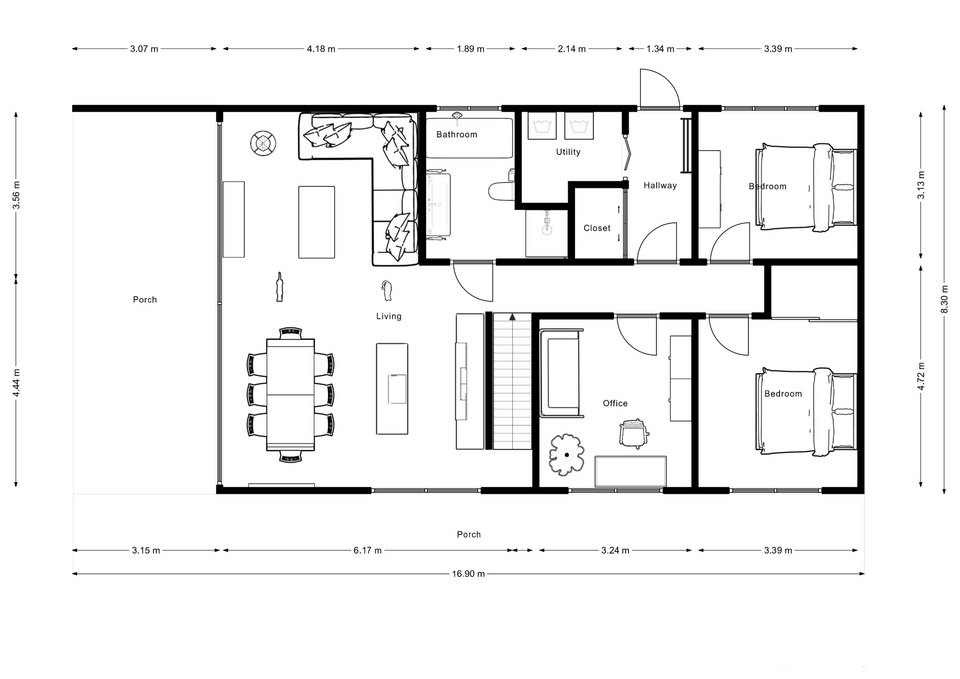
Töö sisu

Ehitusloa taotlemisel esitatav ehitusprojekt eramule:
1,5 korrust
I korrus 100m2
II korrus katab poolt maja (elutoa /köögi kohal aatrium)

Miljööväärtuslik ala, seega materjal looduslähedane!
Puitkarkass, katuse materjali osas kindlaid eelistusi ei ole (ei sobi metall).
Päiksepaneele ei soovi

Lisaks on vaja projekteerida / planeerida kaevu asukoht, paikne kanalisatsioon.

Pildid, video ja failid

Hanke korraldaja: eraisik ID62370

Pakkumised

Pakkumisi kokku: 3

Ettevõte Summa Käibemaks Lisatud Vestlus
Kasutaja ikoon ID42152
Pakkuja profiil Väike nool paremale
1 285€ Ei ole KMKR Ei ole KMKR 23.05.2021 Vestlus (0)

Pakkumise kirjeldus:

Ehitusprojekt eelprojekti staadiumis (arh-eh osa koos eriosadega)
Pakkumishind sisaldab:
Seletuskiri
Energiamärgis
Asendiplaan (vajalik geoalus, mille hind eraldi tööna on 550EUR)
Vund ja korruste plaan
Katuse plaan
Hoone lõige
Hoone vaated
Avatäidete joonised
Jm asjakohased vajalikud joonised

Kooskõlastused ehitusloa saamiseks
Ehitusloa ... Rohkem

Kasutaja ikoon ID5128
Pakkuja profiil Väike nool paremale
2 500€ KM lisandub KM lisandub 24.05.2021 Vestlus (0)
Kasutaja ikoon ID46826
Pakkuja profiil Väike nool paremale
1 250€ Ei ole KMKR Ei ole KMKR 21.06.2021 Vestlus (0)

Pakkumise kirjeldus:

Eelprojekti vormistamine elamule joonised (vaated , lõige, korruste plaanid, vund. plaan avatäited ) koos seletuskirjaga
*Asendiplaan, kui vajalik geoalus 400 eur
*Energiamärgis
*Kooskõlastamised, asjaajamine
*Ehitusloa taotlemine

Täpsustavad küsimused oodatud

Küsimused hanke korraldajale

Hanke korraldajale ei ole veel küsimusi esitatud.

Lisa küsimus

Lisa küsimus

Minu pakkumine

Reeglid

Pakkumise kirjelduse väli on mõeldud pakkumise detailsemaks lahti kirjutamiseks. Pikema teksti mugavaks sisestamiseks klikkige kasti paremal ülaservas oleval ikoonil.
Pakkumist tehes on keelatud postitada enda kontaktandmeid (nimi, telefon, aadress jne). Me jälgime ja analüüsime pakkumisi, et vältida pettuseid ja reeglite rikkumisi.
Rikkumise puhul kasutajakonto blokeeritakse.

 

Teisi töid samas valdkonnas

Valdkonnas "Projekteerimine" on 6 aktiivset tööd

no-img Pilt puudub

1-kordse 120 m2 elumaja põhiprojekt

Asukoht: Harjumaa, Metsanurme
Aega jäänud: 8p 12h
Tehtud pakkumisi: 4

no-img Pilt puudub

Saunamaja eelprojekt ehitusteatiseks

Asukoht: Lääne-Virumaa
Aega jäänud: 1p 12h
Tehtud pakkumisi: 3

Vanemad teated:

Vaata kõiki

Sellel veebilehel kasutatakse küpsiseid. Kasutamist jätkates nõustute küpsiste kasutamisega.

Sulge
 
Minu pakkumine

Reeglid

Pakkumise kirjelduse väli on mõeldud pakkumise detailsemaks lahti kirjutamiseks. Pikema teksti mugavaks sisestamiseks klikkige kasti paremal ülaservas oleval ikoonil.
Pakkumist tehes on keelatud postitada enda kontaktandmeid (nimi, telefon, aadress jne). Me jälgime ja analüüsime pakkumisi, et vältida pettuseid ja reeglite rikkumisi.
Rikkumise puhul kasutajakonto blokeeritakse.