+ Lisa oma töö      

Otsid ehitajat "Ehitusprojektid" valdkonnast?

Parima pakkumise ja teostaja leidmiseks lisa oma töö.

Suvemaja projekt

ID 60547

1010 vaatamist

Prindi

  • check Pakkumiste tegemine
    kuni 17.06.2021
  • check Võitja valik kuni
    24.06.2021
  • 3 Töö teostamine
    ja hinnang
Hanke lõpp: N, 17. juuni, 2021
Maakond: Pärnumaa
Muu asula: Kabli
Tööde algus: N, 20. mai, 2021 (Soovituslik)
Tööde lõpp: E, 21. juuni, 2021 (Soovituslik)
Ehitusmaterjalid: Töö tegija poolt
Soovin pakkumisi: Summa kogu projektile

Töö sisu

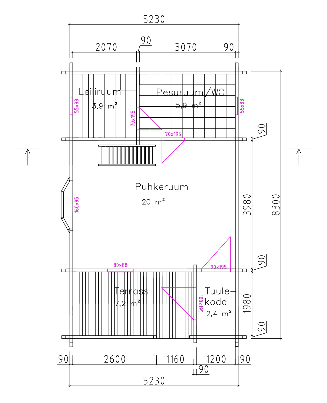
Soovin Suvemaja 5x6 x 90 mm freesprussist seintega majale projekti. Ehitusalune pind 43,4 m2. Olemas majaplaanid.
Maja esimesel korrusel on tuulekoda, kööginurgaga puhkeruum, duširuum ja leiliruum. Viilualuses on kaks magamistuba. Majal on ees terrass ning viilualuses rõdu. Katus tuleb plekist.
Projekt peab sisaldama kõiki dokumente ehitusloa saamiseks.
Maja ehitusega on alustatud: paigaldatud septik+ imm ja vesi.

Pildid, video ja failid

Hanke korraldaja: eraisik ID62257

Pakkumised

Pakkumisi kokku: 3

Ettevõte Summa Käibemaks Lisatud Vestlus
Kasutaja ikoon ID5128
Pakkuja profiil Väike nool paremale
1 500€ KM lisandub KM lisandub 26.05.2021 Vestlus (0)
Kasutaja ikoon ID48870
Pakkuja profiil Väike nool paremale
1 450€ Ei ole KMKR Ei ole KMKR 17.06.2021 Vestlus (0)

Pakkumise kirjeldus:

Ehitusprojekt eelprojekti staadiumis ehitisregistrile esitamiseks
Pakkumishind sisaldab:
Seletuskiri,Korruste plaanid, Katuse plaan,Hoone lõige, Hoone vaated, Avatäidete joonised, jm asjakohased vajalikud joonised, Asendiplaan
Vajalik geoalus mis tuleb eraldi tellida
Kooskõlastused ehitusloa saamiseks
Ehitusloa taotluse esitamine ehistisregistrisse
... Rohkem

Kasutaja ikoon ID46826
Pakkuja profiil Väike nool paremale
1 375€ Ikoon kell Ei ole KMKR Ei ole KMKR 17.06.2021 Vestlus (0)

Pakkumise kirjeldus:

Eelprojekti vormistamine suvemajale: joonised (vaated , lõige, korruste plaanid, vund. plaan avatäited ) koos seletuskirjaga
*Kooskõlastamised, asjaajamine
*Ehitusloa taotlemine
*Kui vajalik geoalus siis ca 400 eur

Täpsustavad küsimused oodatud

Küsimused hanke korraldajale

Hanke korraldajale ei ole veel küsimusi esitatud.

Lisa küsimus

Lisa küsimus

Minu pakkumine

Reeglid

Pakkumise kirjelduse väli on mõeldud pakkumise detailsemaks lahti kirjutamiseks. Pikema teksti mugavaks sisestamiseks klikkige kasti paremal ülaservas oleval ikoonil.
Pakkumist tehes on keelatud postitada enda kontaktandmeid (nimi, telefon, aadress jne). Me jälgime ja analüüsime pakkumisi, et vältida pettuseid ja reeglite rikkumisi.
Rikkumise puhul kasutajakonto blokeeritakse.

 

Teisi töid samas valdkonnas

Valdkonnas "Ehitusprojektid" on 5 aktiivset tööd

no-img Pilt puudub

Kortermaja kõigi ruumide mõõdistamine ja DWG faili koostamine

Asukoht: Harjumaa, Tallinn
Aega jäänud: 1p 17h
Tehtud pakkumisi: 2

Korterelamu mõõdistusprojekti koostamine ja jooniste digitaliseerimine

Asukoht: Lääne-Virumaa, Tapa
Aega jäänud: 4p 17h
Tehtud pakkumisi: 2

Vanemad teated:

Vaata kõiki

Sellel veebilehel kasutatakse küpsiseid. Kasutamist jätkates nõustute küpsiste kasutamisega.

Sulge
 
Minu pakkumine

Reeglid

Pakkumise kirjelduse väli on mõeldud pakkumise detailsemaks lahti kirjutamiseks. Pikema teksti mugavaks sisestamiseks klikkige kasti paremal ülaservas oleval ikoonil.
Pakkumist tehes on keelatud postitada enda kontaktandmeid (nimi, telefon, aadress jne). Me jälgime ja analüüsime pakkumisi, et vältida pettuseid ja reeglite rikkumisi.
Rikkumise puhul kasutajakonto blokeeritakse.