+ Lisa oma töö      

Otsid ehitajat "Üldehitus" valdkonnast?

Parima pakkumise ja teostaja leidmiseks lisa oma töö.

Ridaelamuboksi II korruse väljaehitamine ja esimese korruse renoveerimine.

ID 60391

500 vaatamist

Prindi

  • check Pakkumiste tegemine
    kuni 13.06.2021
  • check Võitja valik kuni
    20.06.2021
  • 3 Töö teostamine
    ja hinnang
Hanke lõpp: P, 13. juuni, 2021
Maakond: Harjumaa
Tööde algus: E, 21. juuni, 2021 (Soovituslik)
Tööde lõpp: K, 01. september, 2021 (Soovituslik)
Ehitusmaterjalid: Töö tegija poolt
Soovin pakkumisi: Summa kogu projektile

Töö sisu

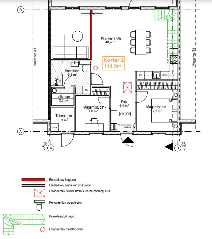
II korrus: Kaldkatusega ridaelamuboksile teise korruse väljaehitamine. Projekti põhjal teisele korrusele kahe toa + wc väljaehitamine. Seletuskirjas täpsem info.
I korrus: Vaheseina eemaldamine, seinte ja lae värvimine. Parkettpõranda vahetus. Siseuste vahetus.

Hind peaks sisaldama I ja II korruse elektri, vendi ja santehnilised tööd. Üldehitusmaterjalid ehitaja poolt. Viimistlusmaterjalid omaniku poolt(ala seintele värvid, siseuksed, põrandaparkett jne).
Trepi ja akende hind teisele korrusele ei pea hinnapakkumises sees olema.

Seletuskiri ja korruste plaanid lisatud juurde hankele.

Pildid, video ja failid

Hanke korraldaja: eraisik ID62161

Pakkumised

Pakkumisi kokku: 1

Ettevõte Summa Käibemaks Lisatud Vestlus
Kasutaja ikoon ID55675
Pakkuja profiil Väike nool paremale
22 400€ KM lisandub KM lisandub 13.06.2021 Vestlus (2)

Pakkumise kirjeldus:

Tere !
Pakkumine sisaldab ka katuseaknaid ja puidust sisetreppi. Lisaks kõik muud kirjeldatud tööd, arvesse võetuna tellijal olemasolevad viimistlusmaterjalid.

Tervitades ja lugupidamisega
Marek

Küsimused hanke korraldajale

Hanke korraldajale ei ole veel küsimusi esitatud.

Lisa küsimus

Lisa küsimus

Minu pakkumine

Reeglid

Pakkumise kirjelduse väli on mõeldud pakkumise detailsemaks lahti kirjutamiseks. Pikema teksti mugavaks sisestamiseks klikkige kasti paremal ülaservas oleval ikoonil.
Pakkumist tehes on keelatud postitada enda kontaktandmeid (nimi, telefon, aadress jne). Me jälgime ja analüüsime pakkumisi, et vältida pettuseid ja reeglite rikkumisi.
Rikkumise puhul kasutajakonto blokeeritakse.

 

Teisi töid samas valdkonnas

Valdkonnas "Üldehitus" on 28 aktiivset tööd

Maja värvimine

Asukoht: Harjumaa, Saue
Aega jäänud: 2p 10h
Tehtud pakkumisi: 5

Terassi õlitamine, 13,7 ruutu

Asukoht: Harjumaa, Saue
Aega jäänud: 5p 10h
Tehtud pakkumisi: 5

Vanemad teated:

Vaata kõiki

Sellel veebilehel kasutatakse küpsiseid. Kasutamist jätkates nõustute küpsiste kasutamisega.

Sulge
 
Minu pakkumine

Reeglid

Pakkumise kirjelduse väli on mõeldud pakkumise detailsemaks lahti kirjutamiseks. Pikema teksti mugavaks sisestamiseks klikkige kasti paremal ülaservas oleval ikoonil.
Pakkumist tehes on keelatud postitada enda kontaktandmeid (nimi, telefon, aadress jne). Me jälgime ja analüüsime pakkumisi, et vältida pettuseid ja reeglite rikkumisi.
Rikkumise puhul kasutajakonto blokeeritakse.