+ Lisa oma töö      

Otsid ehitajat "Projekteerimine" valdkonnast?

Parima pakkumise ja teostaja leidmiseks lisa oma töö.

Tuulekoda juurde ehitus suvilale (elamule)

ID 60054

796 vaatamist

Prindi

  • check Pakkumiste tegemine
    kuni 24.05.2021
  • check Võitja valik kuni
    24.05.2021
  • 3 Töö teostamine
    ja hinnang
Hanke lõpp: E, 24. mai, 2021
Maakond: Raplamaa
Tööde algus: T, 01. juuni, 2021 (Soovituslik)
Tööde lõpp: K, 30. juuni, 2021 (Soovituslik)
Ehitusmaterjalid: Töö tellija poolt
Soovin pakkumisi: Summa kogu projektile

Töö sisu

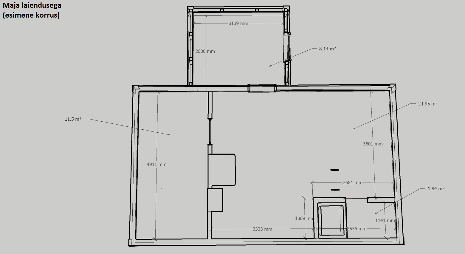
Soovin ehitada suvilale juurde tuulekoja. Tuulekoja suurus tuleb väiksem kui 33 % maja pindalast. Selleks on vaja esitada ehitusteatis ja ehitusprojekt ehitusregistrisse ja valda.
Maja on registris olemas. On olemas ka maja projekt (paberikandjal), kuid see ei vasta 100% sellele vanale projektile (uksed ja aknad ei asu samas kohas, vundament on teine ja siseseinte asukohad on muudetud, võrreldes projektiga).
Mõõtsin maja üle ja tegin maketi maja hetkeseisust ja millised muudatused on plaan majale teha.

Pildid, video ja failid

Hanke korraldaja: eraisik ID46268

Pakkumised

Pakkumisi kokku: 0

Küsimused hanke korraldajale

Hanke korraldajale ei ole veel küsimusi esitatud.

Lisa küsimus

Lisa küsimus

Minu pakkumine

Reeglid

Pakkumise kirjelduse väli on mõeldud pakkumise detailsemaks lahti kirjutamiseks. Pikema teksti mugavaks sisestamiseks klikkige kasti paremal ülaservas oleval ikoonil.
Pakkumist tehes on keelatud postitada enda kontaktandmeid (nimi, telefon, aadress jne). Me jälgime ja analüüsime pakkumisi, et vältida pettuseid ja reeglite rikkumisi.
Rikkumise puhul kasutajakonto blokeeritakse.

 

Teisi töid samas valdkonnas

Valdkonnas "Projekteerimine" on 7 aktiivset tööd

no-img Pilt puudub

1-kordse 120 m2 elumaja põhiprojekt

Asukoht: Harjumaa, Metsanurme
Aega jäänud: 8p 6h
Tehtud pakkumisi: 4

no-img Pilt puudub

Saunamaja eelprojekt ehitusteatiseks

Asukoht: Lääne-Virumaa
Aega jäänud: 1p 6h
Tehtud pakkumisi: 3

Vanemad teated:

Vaata kõiki

Sellel veebilehel kasutatakse küpsiseid. Kasutamist jätkates nõustute küpsiste kasutamisega.

Sulge
 
Minu pakkumine

Reeglid

Pakkumise kirjelduse väli on mõeldud pakkumise detailsemaks lahti kirjutamiseks. Pikema teksti mugavaks sisestamiseks klikkige kasti paremal ülaservas oleval ikoonil.
Pakkumist tehes on keelatud postitada enda kontaktandmeid (nimi, telefon, aadress jne). Me jälgime ja analüüsime pakkumisi, et vältida pettuseid ja reeglite rikkumisi.
Rikkumise puhul kasutajakonto blokeeritakse.