+ Lisa oma töö      

Otsid ehitajat "Ehitusprojektid" valdkonnast?

Parima pakkumise ja teostaja leidmiseks lisa oma töö.

Seina lammutus ja uue ehitamine + ukse asukoht

ID 59616

435 vaatamist

Prindi

  • check Pakkumiste tegemine
    kuni 02.05.2021
  • check Võitja valik kuni
    09.05.2021
  • 3 Töö teostamine
    ja hinnang
Hanke lõpp: P, 2. mai, 2021
Maakond: Harjumaa
Linn: Tallinn
Tööde algus: R, 28. mai, 2021 (Soovituslik)
Tööde lõpp: R, 11. juuni, 2021 (Soovituslik)
Ehitusmaterjalid: Töö tellija poolt
Soovin pakkumisi: Summa kogu projektile

Töö sisu

Tere!
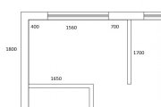
Sooviks ostetavad korteris teha mõned planeeringu muutused.
1. Sooviks köögi useaugu kinnimüürimist ja teise lammutamist avatud köögi tekitamiseks
2. Ukse koha sooviks viia ühe ukse pikkuse jagu edasi
3. Teha magamistuppa kerge poolvahesein garderoobi jaoks

Pildid, video ja failid

Hanke korraldaja: eraisik ID59315

Pakkumised

Pakkumisi kokku: 3

Ettevõte Summa Käibemaks Lisatud Vestlus
Kasutaja ikoon ID50979
Pakkuja profiil Väike nool paremale
1 200€ Ei ole KMKR Ei ole KMKR 02.05.2021 Vestlus (0)

Pakkumise kirjeldus:

Pakkumine Teie kirjelduse järgi.Teostame ka viimistlustöid,kui peaksite hiljem soovima.Leping,kvaliteet,garantii5aastat,ettemaksu ei soovi,km.ei lisandu.Töö teostus Teie poolt soovitud ajal.Peatsele koostööle lootes.Margus

Kasutaja ikoon ID22919
Pakkuja profiil Väike nool paremale
1 150€ KM lisandub KM lisandub 02.05.2021 Vestlus (0)
Kasutaja ikoon ID57475
Pakkuja profiil Väike nool paremale
1 000€ KM lisandub KM lisandub 02.05.2021 Vestlus (0)

Pakkumise kirjeldus:

Tere,



Meie pakkumine sisaldab:

Köögi ukseaugu kinni müürimist ja teise lammutamist uues kohas, vastavalt joonisele+ kerge poolvahesein garderoobi jaoks. Hind sisaldab tekkinud lammutus prahi utiliseerimist. Hind ei sisalda viimistlust.
Omame vastavat MTR-i litsentsi ehitusalal. Tööde kestvus 2-3 päeva ja töö saab tehtud hankes märgitud ... Rohkem

Küsimused hanke korraldajale

Küsimus: private ID52591   29.04.2021 17:06
Kui lammutatav sein on kivist siis seda lammmutada ilma KÜ loata ei tohi. Kui tegemist on kipskarkassiga siis luba pole vaja, sein pole kandev.

Teavita reeglite rikkumisest

Korraldaja vastus: 29.04.2021 17:40

Pidi olema mingist kergplokist?

Teavita reeglite rikkumisest

Küsimus: private ID52591   29.04.2021 19:37
Isegi kui kergplokist on peaks minumeelest selle lammutuse KÜ -ga kooskõlastama.

Teavita reeglite rikkumisest

Korraldaja vastus: 29.04.2021 22:09

Okei, aitäh vastuste eest. Uurin ja siis jätkan. Kas see kehtiks ka ukseaugu asukoha liigutamisele? Kui neid kohe teha ei saa võib pakkuda ainult poolseina ehitamist magamistuppa.

Teavita reeglite rikkumisest

Küsimus: private ID50979   01.05.2021 10:30
Mingit kü.luba pole vaja mitte kandvate seinte lammutamiseks,ei ole mõtet jama ajada kui ei tea asjast midagi,aga küsimus oleks,et mingid mahud-m2 võiks kirjutada ja nr1.kirjeldus jääb segaseks-ukseauk kinni ja teine lammutada.Kas teine ukseauk lammutada?

Teavita reeglite rikkumisest

Korraldaja vastus: 01.05.2021 13:01

Tere, lisasin köögi plaani, 1700 pikkusega seina tahaks maha võtta ja seal kus praegu asub ukseauk, selle kinni müürida.

Teavita reeglite rikkumisest

Lisa küsimus

Lisa küsimus

Minu pakkumine

Reeglid

Pakkumise kirjelduse väli on mõeldud pakkumise detailsemaks lahti kirjutamiseks. Pikema teksti mugavaks sisestamiseks klikkige kasti paremal ülaservas oleval ikoonil.
Pakkumist tehes on keelatud postitada enda kontaktandmeid (nimi, telefon, aadress jne). Me jälgime ja analüüsime pakkumisi, et vältida pettuseid ja reeglite rikkumisi.
Rikkumise puhul kasutajakonto blokeeritakse.

 

Teisi töid samas valdkonnas

Valdkonnas "Ehitusprojektid" on 5 aktiivset tööd

Korteri elektri projekt

Asukoht: Harjumaa, Tallinn
Aega jäänud: 1p 18h
Tehtud pakkumisi: 2

no-img Pilt puudub

Kortermaja kõigi ruumide mõõdistamine ja DWG faili koostamine

Asukoht: Harjumaa, Tallinn
Aega jäänud: 10p 18h
Tehtud pakkumisi: 1

Vanemad teated:

Vaata kõiki

Sellel veebilehel kasutatakse küpsiseid. Kasutamist jätkates nõustute küpsiste kasutamisega.

Sulge
 
Minu pakkumine

Reeglid

Pakkumise kirjelduse väli on mõeldud pakkumise detailsemaks lahti kirjutamiseks. Pikema teksti mugavaks sisestamiseks klikkige kasti paremal ülaservas oleval ikoonil.
Pakkumist tehes on keelatud postitada enda kontaktandmeid (nimi, telefon, aadress jne). Me jälgime ja analüüsime pakkumisi, et vältida pettuseid ja reeglite rikkumisi.
Rikkumise puhul kasutajakonto blokeeritakse.