+ Lisa oma töö      

Otsid ehitajat "Projekteerimine" valdkonnast?

Parima pakkumise ja teostaja leidmiseks lisa oma töö.

Hange on lõppenud!

Võitjaks osutus kasutaja ID 56531

Korraldaja hinnang tehtud tööle

5.0
28.09.2021
Töökiirus: 12345
Kvaliteet: 12345
Hind: 12345

Antud projektis oli intelligentne, asjatundlik, pühendunud ja paindlik töövõtja. Oli olemas kogu tellija tõttu pikaleveninud projekteerimisaja jooksul, vastates tõrkumata tellija ka asjatundmatutele küsimustele. Lahendus eramule oli optimaalne. - Sander T.

Eramajale KVVK projektid

ID 59589

1137 vaatamist

Prindi

  • check Pakkumiste tegemine
    kuni 10.05.2021
  • check Võitja valik kuni
    10.05.2021
  • 3 Töö teostamine
    ja hinnang
Hanke lõpp: E, 10. mai, 2021
Maakond: Tartumaa
Linn: Tartu
Tööde algus: E, 10. mai, 2021 (Soovituslik)
Tööde lõpp: N, 10. juuni, 2021 (Soovituslik)
Ehitusmaterjalid: Töö tellija poolt
Soovin pakkumisi: Tüki- või ühikuhinda

Töö sisu

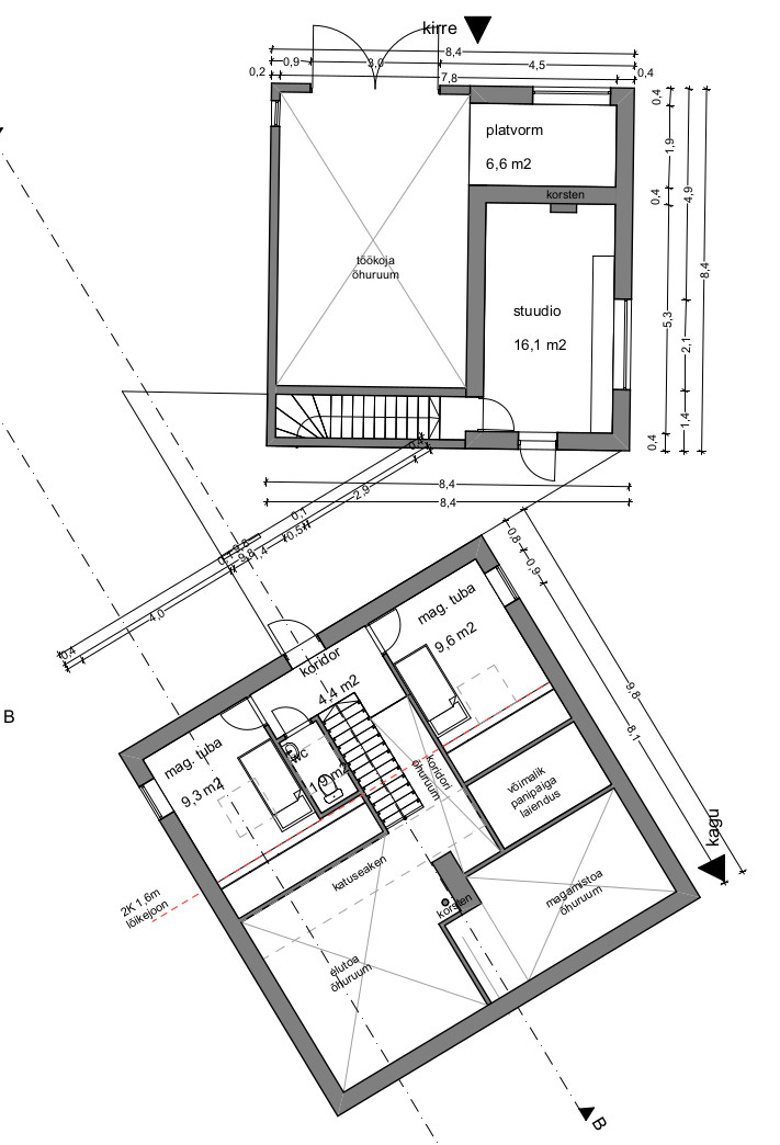
Eramajale kütte-, ventilatsiooni-, kanalisatsiooni- ja veesüsteemi projekteerimine.

* Õhk-vesi soojuspumbaga, põrandaküte.
* Olemas ühiskanalisatsiooni- ja veevärk.
* Tehnoruumi mõõtmeid ja asukohta võib muuta

Pildid, video ja failid

Hanke korraldaja: eraisik ID56694

Pakkumised

Pakkumisi kokku: 3

Ettevõte Summa Käibemaks Lisatud Vestlus
Kasutaja ikoon ID58589
Pakkuja profiil Väike nool paremale
1 600€ KM lisandub KM lisandub 30.04.2021 Vestlus (0)

Pakkumise kirjeldus:

Meie ekspertidel on üle 15 aasta projekteerimiskogemust. Selle aja jooksul on koostatud üle 1000 projekti. Saadud kogemused (kuna teostame ka paigaldust) ning omandatud teadmised võimaldavad meil pakkuda oma klientidele läbimõeldud ja rahaliselt soodsaid lahendusi. Spetsiifiliste teenuste osutamiseks kaasame vajadusel ka oma häid partnereid.

Hind si ... Rohkem

Kasutaja ikoon ID52470
Pakkuja profiil Väike nool paremale
2 500€ Ei ole KMKR Ei ole KMKR 02.05.2021 Vestlus (0)

Pakkumise kirjeldus:

Tere!

Hinnapakkumine sisaldab eramaja kütte, ventilatsiooni, kanalisatsiooni, veevarustuse siseosa põhiprojekti (maht vastavalt EVS 932 "Ehitusprojekt") koostamist vastavalt Tellijalt soovidele ja seadustele/määrustele/standarditele.

Pakkumine sisaldab torustike dimensioneerimist, seletuskirjasid, spetsifikatsioone jms (vastavalt ehitusprojekti EVS ... Rohkem

Kasutaja ikoon ID56531
Pakkuja profiil Väike nool paremale
1 550€ KM lisandub KM lisandub 03.05.2021 Vestlus (0)

Pakkumise kirjeldus:

Tere

Hinnapakkumine sisaldab soojustagastusega ventilatsiooni ning õhk-vesi soojuspumbaga kütte põhiprojekti (maht vastavalt EVS 932 "Ehitusprojekt"). Pakkumine sisaldab õhuvahetuse/küttekoormuste määramist, torustike ja õhujagajate dimensioneerimist, vent.seadme/õhk-vesi soojuspumba valimist, seletuskirja ja põhiseadmete spetsifikatsiooni.

... Rohkem

Küsimused hanke korraldajale

Hanke korraldajale ei ole veel küsimusi esitatud.

Lisa küsimus

Lisa küsimus

Minu pakkumine

Reeglid

Pakkumise kirjelduse väli on mõeldud pakkumise detailsemaks lahti kirjutamiseks. Pikema teksti mugavaks sisestamiseks klikkige kasti paremal ülaservas oleval ikoonil.
Pakkumist tehes on keelatud postitada enda kontaktandmeid (nimi, telefon, aadress jne). Me jälgime ja analüüsime pakkumisi, et vältida pettuseid ja reeglite rikkumisi.
Rikkumise puhul kasutajakonto blokeeritakse.

 

Teisi töid samas valdkonnas

Valdkonnas "Projekteerimine" on 7 aktiivset tööd

Eramu renoveerimisprojekt

Asukoht: Lääne-Virumaa, Kadrina
Aega jäänud: 1p 22h
Tehtud pakkumisi: 7

Ehitusprojekt 129 m2 abihoone ümberehitamiseks ja suurendamiseks

Asukoht: Jõgevamaa, Pikknurme
Aega jäänud: 6p 22h
Tehtud pakkumisi: 4

Vanemad teated:

Vaata kõiki

Sellel veebilehel kasutatakse küpsiseid. Kasutamist jätkates nõustute küpsiste kasutamisega.

Sulge
 
Minu pakkumine

Reeglid

Pakkumise kirjelduse väli on mõeldud pakkumise detailsemaks lahti kirjutamiseks. Pikema teksti mugavaks sisestamiseks klikkige kasti paremal ülaservas oleval ikoonil.
Pakkumist tehes on keelatud postitada enda kontaktandmeid (nimi, telefon, aadress jne). Me jälgime ja analüüsime pakkumisi, et vältida pettuseid ja reeglite rikkumisi.
Rikkumise puhul kasutajakonto blokeeritakse.