+ Lisa oma töö      

Otsid ehitajat "Elektritööd" valdkonnast?

Parima pakkumise ja teostaja leidmiseks lisa oma töö.

Eramu 1k ja õue elektritööd

ID 59485

871 vaatamist

Prindi

  • check Pakkumiste tegemine
    kuni 29.04.2021
  • check Võitja valik kuni
    06.05.2021
  • 3 Töö teostamine
    ja hinnang
Hanke lõpp: N, 29. aprill, 2021
Maakond: Harjumaa
Linn: Tallinn
Tööde algus: R, 30. aprill, 2021 (Soovituslik)
Tööde lõpp: N, 15. juuli, 2021 (Soovituslik)
Ehitusmaterjalid: Töö tellija poolt
Soovin pakkumisi: Summa kogu projektile

Töö sisu

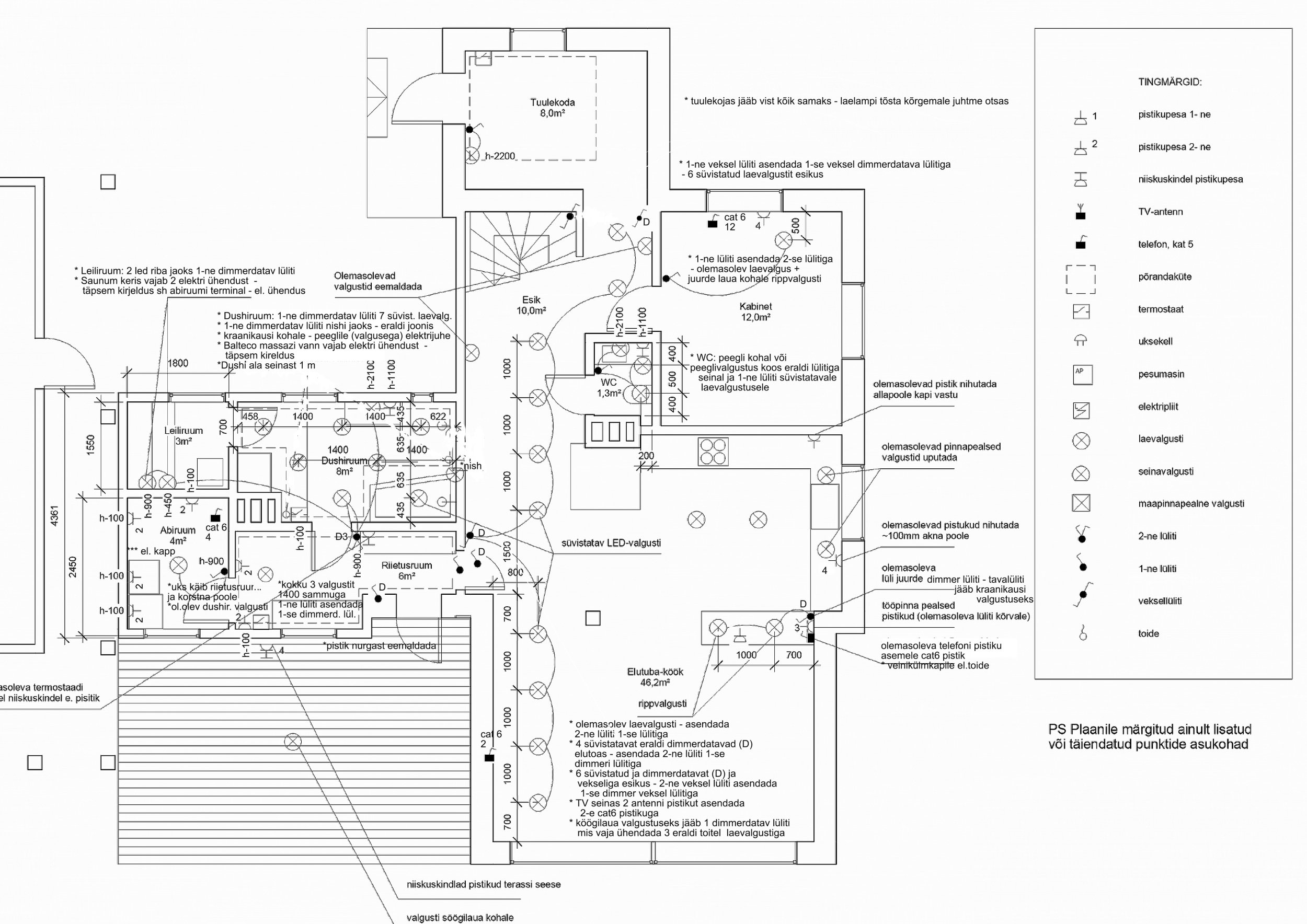
Skeem lisatud, mida vaja muuta või lisada olemasolevas eramus. Skeemil ei ole olemasolevaid pistikuid ja ca 4 valgustit.
Rekonstrueerimise käigus läks lammutamisele rohkem kui algselt planeeritud, seega soov oleks tellida tervikuna 1 korruse uued kaabeldused, uus elektrikilp, kuhu ühendada ka olemasolevad 2 korruse kaablid, pistikute ja valgustite paigaldus ja lisaks ca 10 cat 6 kaabeldust ning õue ca 10 valgusti ja ca 4 pistiku paigaldus. Valgustid ja pistikud tellija poolt. Elektritööde koostöös ehitajaga. Kasutusteatise jaoks vajalik elektritööde dokumentatsioon. Elektritööde materjalide hange kokkuleppel, kelle poolt. Eelistan läbipaistvat hinnapakkumist - töö, kilp, materjalid jms.
Tööde periood ca 2 kuud, kuna ehitus on käimas ja osaliselt saab töid teostada kohe ja osaliselt vastavalt ehituse järgule.

Pildid, video ja failid

Hanke korraldaja: eraisik ID61596

Pakkumised

Pakkumisi kokku: 2

Ettevõte Summa Käibemaks Lisatud Vestlus
Kasutaja ikoon ID60984
Pakkuja profiil Väike nool paremale
7 850€ Sisaldab KM Sisaldab KM 27.04.2021 Vestlus (1)

Pakkumise kirjeldus:

3850- too
4000- material

Kasutaja ikoon ID25180
Pakkuja profiil Väike nool paremale
3 400€ KM lisandub KM lisandub 28.04.2021 Vestlus (0)

Pakkumise kirjeldus:

Soovitud tööd ja materjalid vastavalt kirjeldusele ja skeemile.
töö 1900, materjal 1200 +/-20%, mõõtmised ja audit 300. Lugupidamisega

Küsimused hanke korraldajale

Küsimus: private ID25180   26.04.2021 21:53
Tere. Kuidas saaks uued kaableid paigaldada? Kas seinad laed on "lahti" ? Kui palju tuleks freesimist puurimist? Tänan.

Teavita reeglite rikkumisest

Korraldaja vastus: 26.04.2021 22:02

Väikses eramu osas on ainult välissseinad püsti hetkel ja laed lahti. Suuremas maja osas saaks ära kasutada olemasolevaid kaableid niipalju kui mõistlik. Samuti on osad seinad (kabineti mõlemad seinad) lahti. Freesimist oleks süvistatud kohtvalgustitele ca 12 tk suuremas maja osas. Pistikuid tuleks panna juurde küprok seina suuremas osas osaliselt.

Teavita reeglite rikkumisest

Lisa küsimus

Lisa küsimus

Minu pakkumine

Reeglid

Pakkumise kirjelduse väli on mõeldud pakkumise detailsemaks lahti kirjutamiseks. Pikema teksti mugavaks sisestamiseks klikkige kasti paremal ülaservas oleval ikoonil.
Pakkumist tehes on keelatud postitada enda kontaktandmeid (nimi, telefon, aadress jne). Me jälgime ja analüüsime pakkumisi, et vältida pettuseid ja reeglite rikkumisi.
Rikkumise puhul kasutajakonto blokeeritakse.

 

Teisi töid samas valdkonnas

Valdkonnas "Elektritööd" on 5 aktiivset tööd

Vana talu elektrisüsteemi uuendamine (kilp, pistikud, välivalgustus, EV valmidus)

Asukoht: Raplamaa, Suurekivi
Aega jäänud: 1p 10h
Tehtud pakkumisi: 5

Kaablite vahetus paneelmaja korteris ja siseviimistlus

Asukoht: Harjumaa, Tallinn
Aega jäänud: 6p 10h
Tehtud pakkumisi: 3

Vanemad teated:

Vaata kõiki

Sellel veebilehel kasutatakse küpsiseid. Kasutamist jätkates nõustute küpsiste kasutamisega.

Sulge
 
Minu pakkumine

Reeglid

Pakkumise kirjelduse väli on mõeldud pakkumise detailsemaks lahti kirjutamiseks. Pikema teksti mugavaks sisestamiseks klikkige kasti paremal ülaservas oleval ikoonil.
Pakkumist tehes on keelatud postitada enda kontaktandmeid (nimi, telefon, aadress jne). Me jälgime ja analüüsime pakkumisi, et vältida pettuseid ja reeglite rikkumisi.
Rikkumise puhul kasutajakonto blokeeritakse.