+ Lisa oma töö      

Otsid ehitajat "Projekteerimine" valdkonnast?

Parima pakkumise ja teostaja leidmiseks lisa oma töö.

Hange on lõppenud!

Võitjaks osutus kasutaja ID 52470

Kütte- ja ventilatsiooniprojekt

ID 59288

462 vaatamist

Prindi

  • check Pakkumiste tegemine
    kuni 26.04.2021
  • check Võitja valik kuni
    26.04.2021
  • 3 Töö teostamine
    ja hinnang
Hanke lõpp: E, 26. aprill, 2021
Maakond: Harjumaa
Muu asula: Jüri
Tööde algus: R, 23. aprill, 2021 (Soovituslik)
Tööde lõpp: E, 31. mai, 2021 (Soovituslik)
Ehitusmaterjalid: Töö tellija poolt
Soovin pakkumisi: Summa kogu projektile

Töö sisu

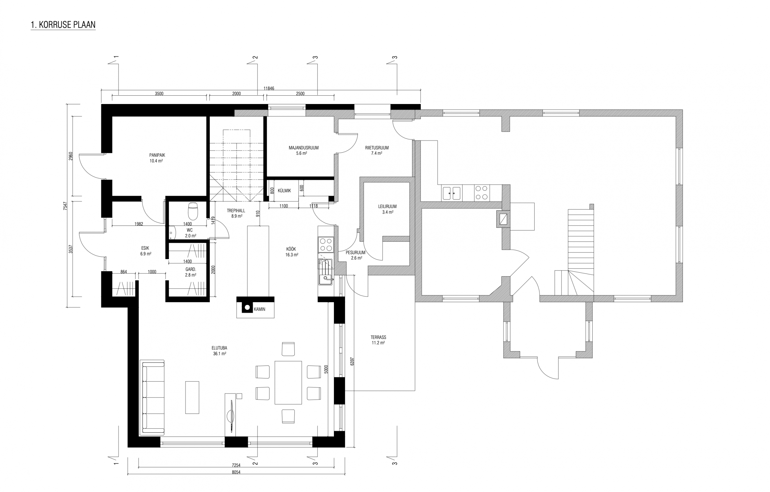
Soovin pakkumist laiendatava elamu kütte- ja ventilatsiooniprojektile põhiprojekti mahus.
Asukoht: Jüris
Olemasoleva elamu pind 100m2, juurdeehitatav osa u. 180m2 eskiisil näidatud tumedama joonega.

Olemasolevas hoones on maaküte, ventilatsioon puudub. Projektiga tuleks lahendada ka olemasoleva hooneosa ventilatsioon.

Pildid, video ja failid

Hanke korraldaja: ettevõte ID43615

Pakkumised

Pakkumisi kokku: 3

Ettevõte Summa Käibemaks Lisatud Vestlus
Kasutaja ikoon ID52470
Pakkuja profiil Väike nool paremale
1 700€ Ei ole KMKR Ei ole KMKR 23.04.2021 Vestlus (2)

Pakkumise kirjeldus:

Tere!

Hinnapakkumine sisaldab eramaja kütte ja ventilatsiooni põhiprojekti (maht vastavalt EVS 932 "Ehitusprojekt") koostamist vastavalt Tellijalt soovidele ja seadustele/määrustele/standarditele.

Pakkumine sisaldab torustike dimensioneerimist, seletuskirja, spetsifikatsioone jms (vastavalt ehitusprojekti EVSile).

Töödega alustamisel palume et ... Rohkem

Kasutaja ikoon ID56531
Pakkuja profiil Väike nool paremale
1 650€ KM lisandub KM lisandub 23.04.2021 Vestlus (0)

Pakkumise kirjeldus:

Tere

Olemasoleva hoone osa ventilatsioon + uue hoone osa ventilatsioon ja küte põhiprojekti mahus.

Tööde teostamise eelduseks CAD joonised (plaanid, vaated ja lõiked).
Alustada tööga saaks ca 15.05.

Kasutaja ikoon ID51879
Pakkuja profiil Väike nool paremale
600€ KM lisandub KM lisandub 25.04.2021 Vestlus (0)

Pakkumise kirjeldus:

Pakkumine ainult ventilatsioonilahendusele.

Pakkumine sisaldab.
Joonist mis sisaldab seadet vastavalt teie vajadustele ja kehtivatele normidele. Ära märgitud õhuliitrid., torustikud ja isolatsioonid, seletuskiri.


Kuna maja on päris suur siis vastavalt on ka seade suurem ja võimsam seega pööning ei pruugi olla seadmele parim koht. Silmas pidad ... Rohkem

Küsimused hanke korraldajale

Küsimus: private ID56531   23.04.2021 16:29
Tere

1. Kas uuele hooneosale tuleb uus maasoojuspump + põrandaküte?
2. Kas kogu hoonele tuleb üks ventilatsiooniagregaat?

Teavita reeglite rikkumisest

Korraldaja vastus: 23.04.2021 16:45

Tere
Kogu hoonele on plaanis jätta üks maasoojuspump. Esialgu on soov kasutada olemasolevat pumpa (Junkers STE 80-1 7,6kw).
On ka mõte lisada uude majaosasse küttekamin, kui selle otstarbekus peaks kinnitust leidma ja/või see võimaldaks jätta olemasoleva maasoojuspumba kasutusse.

Kogu hoonele peaks tulema üks ventilatsiooniagregaat. Maja on viilkatusega, otstarbekam tundub agregaadi paigaldamine pööningule. Lihtsam ligipääs olemasolevale majaosale.
Soojuspump samas asub keldris. Ning keldriga seonduvalt - lahendamist vajab ka keldri ventilatsioon.

Teavita reeglite rikkumisest

Küsimus: private ID56531   23.04.2021 19:43
Tere

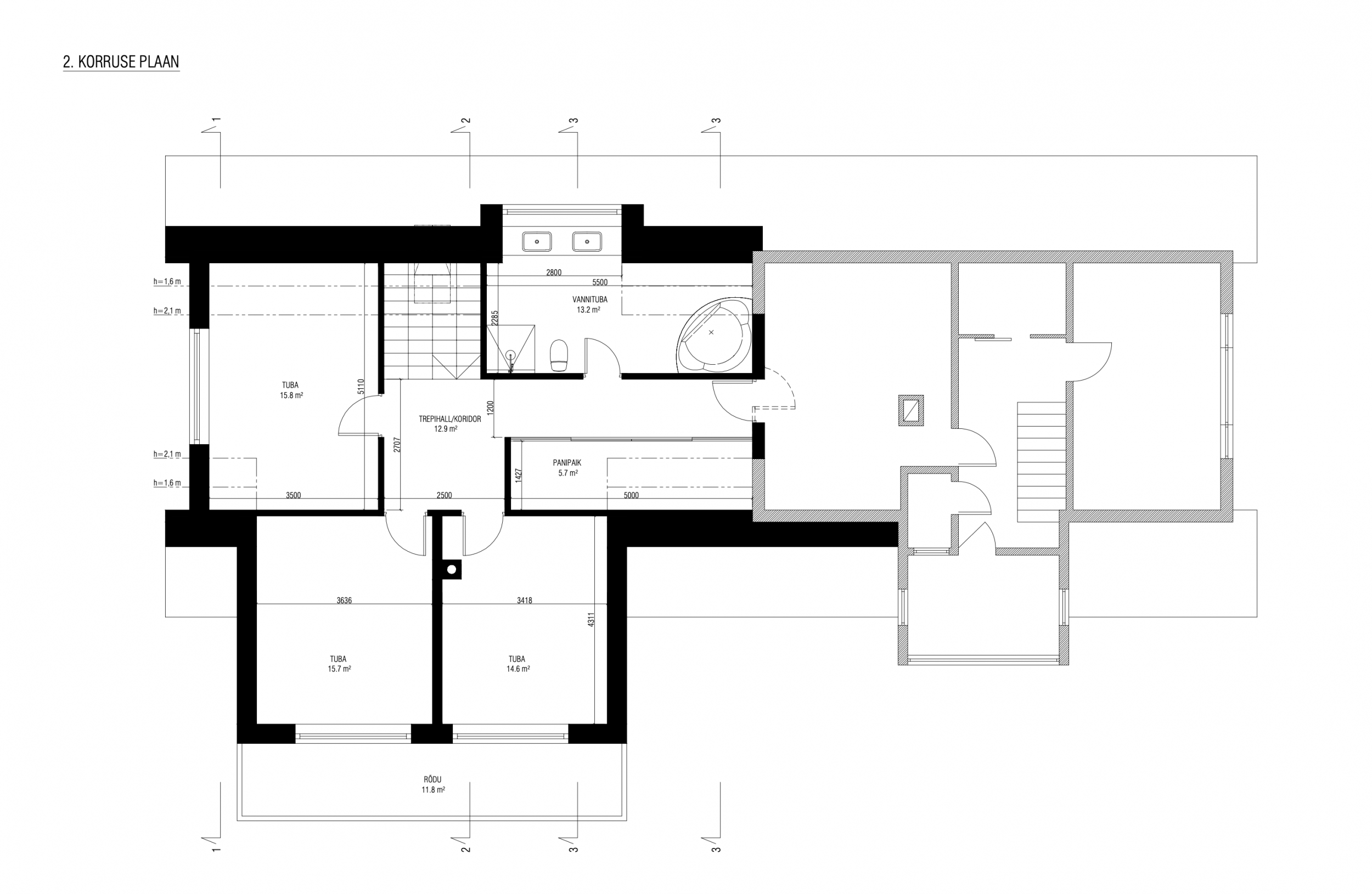
Hetkel on kahtlane, et 280m2 maja tuleb kokku ca 7-8kW ja on võimalik kogu hoone olemasoleva soojuspumba baasil lahendanda. Küttekamin on hea, aga kõikidele ruumidele kamina soojust anda ei saa. Lisage palun 2. korruse plaanid ka.

Teavita reeglite rikkumisest

Korraldaja vastus: 23.04.2021 20:43

Tere
2. korruse plaan on failide all olemas.

Nõus, et on kahtlane ja uusehitisele niisugust lahendust ei valiks. Samas olemasolev pump on - paar aastat tagasi paigaldatuna olemas, ning suurema osa kütteperioodi jaoks ilmselt piisav. Tundub parem plaan vahetus ette võtta siis kui on selgunud, et elektrikulu lisaküttele on siiski ebamõistlikult suur. Kui see mingil põhjusel siiski ei ole mõistlik, võib muidugi läheneda ka teisiti.

Küttekamina all pidasin silmas veesärgiga kaminat mis soojendaks ka küttesüsteemi vett.

Teavita reeglite rikkumisest

Lisa küsimus

Lisa küsimus

Minu pakkumine

Reeglid

Pakkumise kirjelduse väli on mõeldud pakkumise detailsemaks lahti kirjutamiseks. Pikema teksti mugavaks sisestamiseks klikkige kasti paremal ülaservas oleval ikoonil.
Pakkumist tehes on keelatud postitada enda kontaktandmeid (nimi, telefon, aadress jne). Me jälgime ja analüüsime pakkumisi, et vältida pettuseid ja reeglite rikkumisi.
Rikkumise puhul kasutajakonto blokeeritakse.

 

Teisi töid samas valdkonnas

Valdkonnas "Projekteerimine" on 6 aktiivset tööd

no-img Pilt puudub

1-kordse 120 m2 elumaja põhiprojekt

Asukoht: Harjumaa, Metsanurme
Aega jäänud: 8p 15h
Tehtud pakkumisi: 4

no-img Pilt puudub

Saunamaja eelprojekt ehitusteatiseks

Asukoht: Lääne-Virumaa
Aega jäänud: 1p 15h
Tehtud pakkumisi: 3

Vanemad teated:

Vaata kõiki

Sellel veebilehel kasutatakse küpsiseid. Kasutamist jätkates nõustute küpsiste kasutamisega.

Sulge
 
Minu pakkumine

Reeglid

Pakkumise kirjelduse väli on mõeldud pakkumise detailsemaks lahti kirjutamiseks. Pikema teksti mugavaks sisestamiseks klikkige kasti paremal ülaservas oleval ikoonil.
Pakkumist tehes on keelatud postitada enda kontaktandmeid (nimi, telefon, aadress jne). Me jälgime ja analüüsime pakkumisi, et vältida pettuseid ja reeglite rikkumisi.
Rikkumise puhul kasutajakonto blokeeritakse.