+ Lisa oma töö      

Otsid ehitajat "Ehitusprojektid" valdkonnast?

Parima pakkumise ja teostaja leidmiseks lisa oma töö.

Hoone sisene vesi/kanalisatsioon/põrandaküte projekt

ID 59193

565 vaatamist

Prindi

  • check Pakkumiste tegemine
    kuni 05.05.2021
  • check Võitja valik kuni
    12.05.2021
  • 3 Töö teostamine
    ja hinnang
Hanke lõpp: K, 5. mai, 2021
Maakond: Saaremaa
Tööde algus: E, 17. mai, 2021 (Soovituslik)
Tööde lõpp: N, 17. juuni, 2021 (Soovituslik)
Ehitusmaterjalid: Töö tellija poolt
Soovin pakkumisi: Summa kogu projektile

Töö sisu

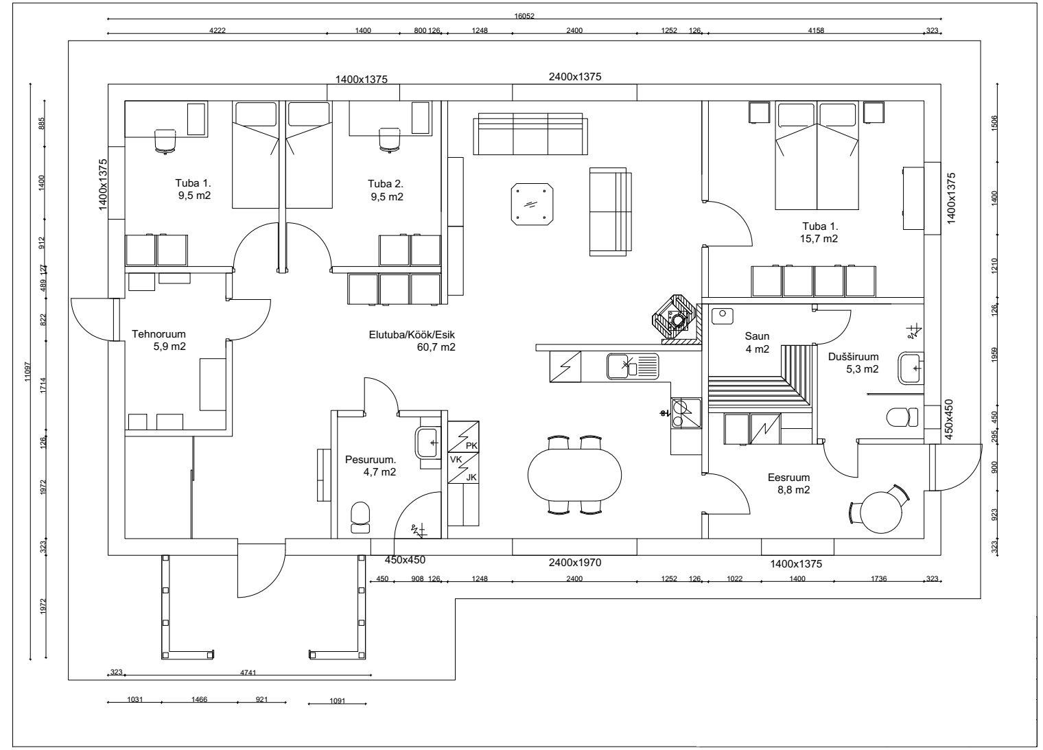
Vastavalt eelprojekti põhiplaanile koostada hoone sisene vee, kanalisatsiooni ning põrandakütte torustiku projekt.

Pildid, video ja failid

Hanke korraldaja: eraisik ID56020

Pakkumised

Pakkumisi kokku: 3

Ettevõte Summa Käibemaks Lisatud Vestlus
Kasutaja ikoon ID52470
Pakkuja profiil Väike nool paremale
1 450€ Ei ole KMKR Ei ole KMKR 22.04.2021 Vestlus (0)

Pakkumise kirjeldus:

Tere!

Hinnapakkumine sisaldab eramaja veevarustuse, kanalisatsiooni ja kütte põhiprojekti (maht vastavalt EVS 932 "Ehitusprojekt") koostamist vastavalt Tellijalt soovidele, veevärgi tehnilistele nõuetele ja seadustele/määrustele/standarditele.

Hind ei sisalda veevarustuse ja kanalisatsiooni välisosa (kinnistusisene) projekti.

Pakkumine sisal ... Rohkem

Kasutaja ikoon ID58589
Pakkuja profiil Väike nool paremale
1 415€ KM lisandub KM lisandub 23.04.2021 Vestlus (0)

Pakkumise kirjeldus:

Meie ekspertidel on üle 15 aasta projekteerimiskogemust. Selle aja jooksul on koostatud üle 1000 projekti ning energiamärgise. Saadud kogemused ning omandatud teadmised võimaldavad meil pakkuda oma klientidele läbimõeldud ja rahaliselt soodsaid lahendusi. Spetsiifiliste teenuste osutamiseks kaasame vajadusel ka oma häid partnereid.

Hind sisaldab pà ... Rohkem

Kasutaja ikoon ID56531
Pakkuja profiil Väike nool paremale
1 100€ KM lisandub KM lisandub 03.05.2021 Vestlus (0)

Pakkumise kirjeldus:

Tere

Hinnapakkumine sisaldab küttesüsteemi põhiprojekti (maht vastavalt EVS 932 "Ehitusprojekt"). Pakkumine sisaldab küttekoormuste määramist, torustike dimensioneerimist, seletuskirja ja põhiseadmete spetsifikatsiooni.

Samuti hind sisaldab veevarustuse ja kanalisatsiooni põhiprojekti koos mahtude loendiga. (hooneväline osa ei ole hinna see ... Rohkem

Küsimused hanke korraldajale

Küsimus: private ID56531   22.04.2021 08:12
Tere

1. Kas maja joonised on dwg/CAD formaadis?
2. Kütteallikas?
3. Kas soovitakse põhiprojektid?

Teavita reeglite rikkumisest

Korraldaja vastus:
Hanke korraldaja ei ole küsimusele veel vastanud

Lisa küsimus

Lisa küsimus

Minu pakkumine

€

Reeglid

Pakkumise kirjelduse väli on mõeldud pakkumise detailsemaks lahti kirjutamiseks. Pikema teksti mugavaks sisestamiseks klikkige kasti paremal ülaservas oleval ikoonil.
Pakkumist tehes on keelatud postitada enda kontaktandmeid (nimi, telefon, aadress jne). Me jälgime ja analüüsime pakkumisi, et vältida pettuseid ja reeglite rikkumisi.
Rikkumise puhul kasutajakonto blokeeritakse.

 

Teisi töid samas valdkonnas

Valdkonnas "Ehitusprojektid" on 5 aktiivset tööd

no-img Pilt puudub

Kortermaja kõigi ruumide mõõdistamine ja DWG faili koostamine

Asukoht: Harjumaa, Tallinn
Aega jäänud: 1p 16h
Tehtud pakkumisi: 2

Korterelamu mõõdistusprojekti koostamine ja jooniste digitaliseerimine

Asukoht: Lääne-Virumaa, Tapa
Aega jäänud: 4p 16h
Tehtud pakkumisi: 2

Vanemad teated:

Vaata kõiki

Sellel veebilehel kasutatakse küpsiseid. Kasutamist jätkates nõustute küpsiste kasutamisega.

Sulge
 
Minu pakkumine
€

Reeglid

Pakkumise kirjelduse väli on mõeldud pakkumise detailsemaks lahti kirjutamiseks. Pikema teksti mugavaks sisestamiseks klikkige kasti paremal ülaservas oleval ikoonil.
Pakkumist tehes on keelatud postitada enda kontaktandmeid (nimi, telefon, aadress jne). Me jälgime ja analüüsime pakkumisi, et vältida pettuseid ja reeglite rikkumisi.
Rikkumise puhul kasutajakonto blokeeritakse.