+ Lisa oma töö      

Otsid ehitajat "Projekteerimine" valdkonnast?

Parima pakkumise ja teostaja leidmiseks lisa oma töö.

Hange on lõppenud!

Võitjaks osutus kasutaja ID 58589

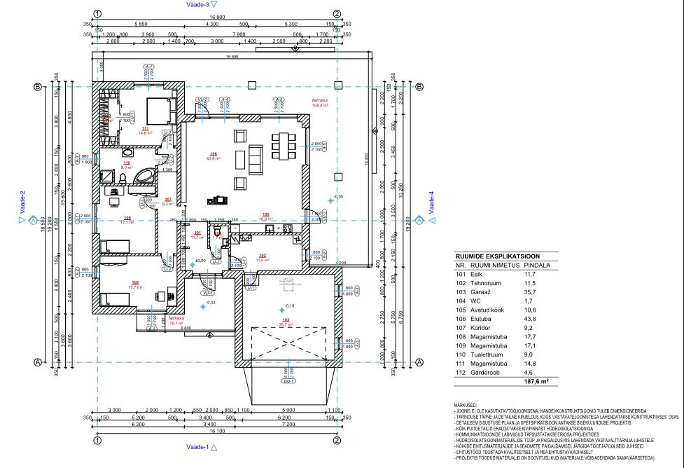
Kütte- ja ventilatsiooni projekt elamule

ID 59121

654 vaatamist

Prindi

  • check Pakkumiste tegemine
    kuni 27.04.2021
  • check Võitja valik kuni
    04.05.2021
  • 3 Töö teostamine
    ja hinnang
Hanke lõpp: T, 27. aprill, 2021
Maakond: Tartumaa
Tööde algus: L, 01. mai, 2021 (Soovituslik)
Tööde lõpp: E, 31. mai, 2021 (Soovituslik)
Ehitusmaterjalid: Töö tellija poolt
Soovin pakkumisi: Summa kogu projektile

Töö sisu

Soovin elamule kütte- ja ventilatsiooni (sh. jahutus) projekti põhiprojekti mahus.
Võib pakkuda ka vee-ja kanalisatsiooni projekti koostamist põhiprojekti mahus.

Maasoojuspump, vesipõrandaküte. soojustagastusega vent. (elutoas kamin)

Pildid, video ja failid

Hanke korraldaja: eraisik ID61347

Pakkumised

Pakkumisi kokku: 3

Ettevõte Summa Käibemaks Lisatud Vestlus
Kasutaja ikoon ID58589
Pakkuja profiil Väike nool paremale
1 600€ KM lisandub KM lisandub 21.04.2021 Vestlus (5)

Pakkumise kirjeldus:

Meie ekspertidel on üle 15 aasta projekteerimiskogemust. Selle aja jooksul on koostatud üle 1000 projekti ning energiamärgise. Saadud kogemused ning omandatud teadmised võimaldavad meil pakkuda oma klientidele läbimõeldud ja rahaliselt soodsaid lahendusi. Spetsiifiliste teenuste osutamiseks kaasame vajadusel ka oma häid partnereid.

Hind sisaldab pà ... Rohkem

Kasutaja ikoon ID56531
Pakkuja profiil Väike nool paremale
1 400€ KM lisandub KM lisandub 21.04.2021 Vestlus (4)

Pakkumise kirjeldus:

Tere

Hinna sees hoonesisesed osad (küte, ventilatsioon, jahutus, veevarustus ja kanalisatsioon) põhiprojekti mahus. Hoonevälised osad ei ole hinna sees. Tööde teostamiseks on vajalikud joonised dwg formaadis.

Kasutaja ikoon ID52470
Pakkuja profiil Väike nool paremale
1 650€ Ei ole KMKR Ei ole KMKR 22.04.2021 Vestlus (5)

Pakkumise kirjeldus:

Tere!

Hinnapakkumine sisaldab eramaja kütte, ventilatsiooni ja jahutuse põhiprojekti (maht vastavalt EVS 932 "Ehitusprojekt") koostamist vastavalt Tellijalt soovidele ja seadustele/määrustele/standarditele.

Pakkumine sisaldab torustike dimensioneerimist, seletuskirja, spetsifikatsioone jms (vastavalt ehitusprojekti EVSile).

Töödega alustamisel ... Rohkem

Küsimused hanke korraldajale

Hanke korraldajale ei ole veel küsimusi esitatud.

Lisa küsimus

Lisa küsimus

Minu pakkumine

€

Reeglid

Pakkumise kirjelduse väli on mõeldud pakkumise detailsemaks lahti kirjutamiseks. Pikema teksti mugavaks sisestamiseks klikkige kasti paremal ülaservas oleval ikoonil.
Pakkumist tehes on keelatud postitada enda kontaktandmeid (nimi, telefon, aadress jne). Me jälgime ja analüüsime pakkumisi, et vältida pettuseid ja reeglite rikkumisi.
Rikkumise puhul kasutajakonto blokeeritakse.

 

Teisi töid samas valdkonnas

Valdkonnas "Projekteerimine" on 6 aktiivset tööd

no-img Pilt puudub

1-kordse 120 m2 elumaja põhiprojekt

Asukoht: Harjumaa, Metsanurme
Aega jäänud: 8p 11h
Tehtud pakkumisi: 4

no-img Pilt puudub

Saunamaja eelprojekt ehitusteatiseks

Asukoht: Lääne-Virumaa
Aega jäänud: 1p 11h
Tehtud pakkumisi: 3

Vanemad teated:

Vaata kõiki

Sellel veebilehel kasutatakse küpsiseid. Kasutamist jätkates nõustute küpsiste kasutamisega.

Sulge
 
Minu pakkumine
€

Reeglid

Pakkumise kirjelduse väli on mõeldud pakkumise detailsemaks lahti kirjutamiseks. Pikema teksti mugavaks sisestamiseks klikkige kasti paremal ülaservas oleval ikoonil.
Pakkumist tehes on keelatud postitada enda kontaktandmeid (nimi, telefon, aadress jne). Me jälgime ja analüüsime pakkumisi, et vältida pettuseid ja reeglite rikkumisi.
Rikkumise puhul kasutajakonto blokeeritakse.