+ Lisa oma töö      

Otsid ehitajat "Projekteerimine" valdkonnast?

Parima pakkumise ja teostaja leidmiseks lisa oma töö.

Korteri täisprojekt

ID 58844

447 vaatamist

Prindi

  • check Pakkumiste tegemine
    kuni 29.04.2021
  • check Võitja valik kuni
    30.04.2021
  • 3 Töö teostamine
    ja hinnang
Hanke lõpp: N, 29. aprill, 2021
Maakond: Harjumaa
Linn: Tallinn
Tööde algus: R, 30. aprill, 2021 (Soovituslik)
Tööde lõpp: T, 31. august, 2021 (Soovituslik)
Ehitusmaterjalid: Töö tellija poolt
Soovin pakkumisi: Summa kogu projektile

Töö sisu

Otsin Tallinna läbi kahe korruse korterile täisprojekti tegijat. Sisaldab eriosasid ja insener-arvutusi. Projekti lõppulemus on ehitusluba. Vaja on lõpphinda kuni ehitusloa saamiseni. Ideaalis sooviks sama osapoolega teha koostööd hiljem edasi (nt tunnihinna alusel) kui läheb ehitamiseks ja vaja projekti täiendada ning hiljem dokumente esitada kasutusloa jaoks.
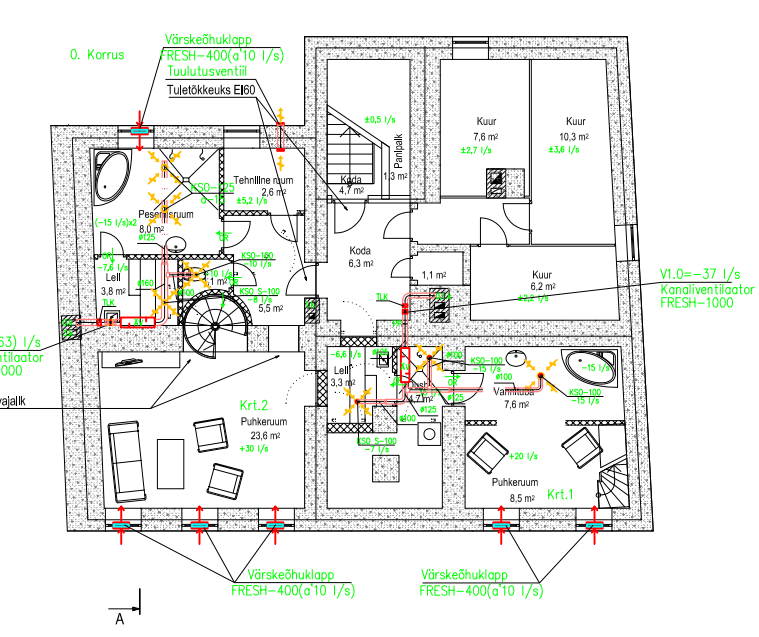
Piltidena on kuuluse juures maja projektist paar väljavõtet. Korter üldpind cs 110 m2 ja oluline on mainida et väljaehitamisele läheb muuhulgas soklikorrus.

Pildid, video ja failid

Hanke korraldaja: eraisik ID61174

Pakkumised

Pakkumisi kokku: 0

Küsimused hanke korraldajale

Hanke korraldajale ei ole veel küsimusi esitatud.

Lisa küsimus

Lisa küsimus

Minu pakkumine

Reeglid

Pakkumise kirjelduse väli on mõeldud pakkumise detailsemaks lahti kirjutamiseks. Pikema teksti mugavaks sisestamiseks klikkige kasti paremal ülaservas oleval ikoonil.
Pakkumist tehes on keelatud postitada enda kontaktandmeid (nimi, telefon, aadress jne). Me jälgime ja analüüsime pakkumisi, et vältida pettuseid ja reeglite rikkumisi.
Rikkumise puhul kasutajakonto blokeeritakse.

 

Teisi töid samas valdkonnas

Valdkonnas "Projekteerimine" on 6 aktiivset tööd

no-img Pilt puudub

1-kordse 120 m2 elumaja põhiprojekt

Asukoht: Harjumaa, Metsanurme
Aega jäänud: 8p 15h
Tehtud pakkumisi: 4

no-img Pilt puudub

Saunamaja eelprojekt ehitusteatiseks

Asukoht: Lääne-Virumaa
Aega jäänud: 1p 15h
Tehtud pakkumisi: 3

Vanemad teated:

Vaata kõiki

Sellel veebilehel kasutatakse küpsiseid. Kasutamist jätkates nõustute küpsiste kasutamisega.

Sulge
 
Minu pakkumine

Reeglid

Pakkumise kirjelduse väli on mõeldud pakkumise detailsemaks lahti kirjutamiseks. Pikema teksti mugavaks sisestamiseks klikkige kasti paremal ülaservas oleval ikoonil.
Pakkumist tehes on keelatud postitada enda kontaktandmeid (nimi, telefon, aadress jne). Me jälgime ja analüüsime pakkumisi, et vältida pettuseid ja reeglite rikkumisi.
Rikkumise puhul kasutajakonto blokeeritakse.