+ Lisa oma töö      

Otsid ehitajat "Tänavakivide paigaldus" valdkonnast?

Parima pakkumise ja teostaja leidmiseks lisa oma töö.

Eramaja pandus ja tee pikendus

ID 58783

907 vaatamist

Prindi

  • check Pakkumiste tegemine
    kuni 17.04.2021
  • check Võitja valik kuni
    24.04.2021
  • 3 Töö teostamine
    ja hinnang
Hanke lõpp: L, 17. aprill, 2021
Maakond: Pärnumaa
Tööde algus: E, 19. aprill, 2021 (Soovituslik)
Tööde lõpp: P, 09. mai, 2021 (Soovituslik)
Ehitusmaterjalid: Töö tegija poolt
Soovin pakkumisi: Tüki- või ühikuhinda

Töö sisu

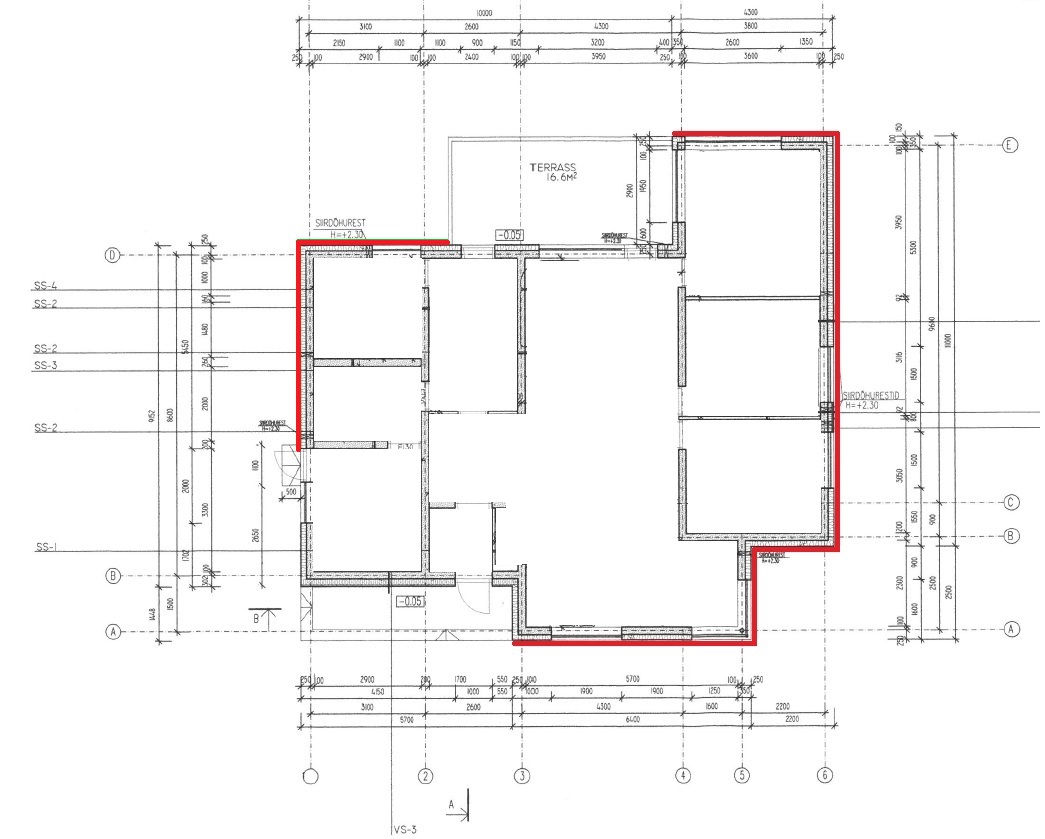
Eramaja killustikuga täidetud panduse ehitus. Kokku on sokli serv, kuhu pandus läheb, 33 meetrit.
Pandus maksimaalselt 40cm lai (välimise kivi ääreni).

Lisaks 6 ruutmeetrit unikivide paigldust praeguse kõnnitee pikenduseks.

Juurde on lisatud maja plaan, kus punase joonega on tähistatud pandus. Ning paar fotot kus on näha hetke olukord.

Palun välja tuua kaks hinda.
Esimene tervikalahendusele koos pinnase utiliseerimise ja killustikuga täitmisega.
Teine ainult lahti kaevamisele, äärekivide + kõnnitee kivide paigaldamisele ning aluse õigele ettevalmistamisele, et saaks sinna killustiku panna. Välja kaevatud pinnase võib jätta maha.

Kivi:
http://www.kivitehas.ee/et/mod/ProductCatalogueKivitehas/show_product/?ProductCatalogueKivitehasproduct_id=3

Äärekivi:
http://www.kivitehas.ee/et/mod/ProductCatalogueKivitehas/show_product/?ProductCatalogueKivitehasproduct_id=43

Pildid, video ja failid

Hanke korraldaja: eraisik ID60363

Pakkumised

Pakkumisi kokku: 3

Ettevõte Summa Käibemaks Lisatud Vestlus
Kasutaja ikoon ID57033
Pakkuja profiil Väike nool paremale
4 020€ Sisaldab KM Sisaldab KM 14.04.2021 Vestlus (0)

Pakkumise kirjeldus:

Tere.

töid teostavad oma ala asjatundjad.
töö kiire ja korralik .
töödele Garantii

Kasutaja ikoon ID60083
Pakkuja profiil Väike nool paremale
3 800€ Ei ole KMKR Ei ole KMKR 14.04.2021 Vestlus (2)

Pakkumise kirjeldus:

Tere, puhtust hoidvad ja töökas meeskond aitab trid. Lepingud ja garantii. Alustamine 7-10 päeva jooksul peale meie võitjaks kuulutamise ja lepingu sõlmimist, paraku viljem pole meil aega!

Ilusat kevadet!!

Kasutaja ikoon ID55769
Pakkuja profiil Väike nool paremale
1 500€ Sisaldab KM Sisaldab KM 17.04.2021 Vestlus (4)

Pakkumise kirjeldus:

Tere,
Teeksime maksimaalselt käsitööna, siis ei riku ümbrust.
Muld jääks kõrvale. Killustik ca 10cm pandus ja ca 15cm kõnnitee.
Garantii.

Küsimused hanke korraldajale

Hanke korraldajale ei ole veel küsimusi esitatud.

Lisa küsimus

Lisa küsimus

Minu pakkumine

Reeglid

Pakkumise kirjelduse väli on mõeldud pakkumise detailsemaks lahti kirjutamiseks. Pikema teksti mugavaks sisestamiseks klikkige kasti paremal ülaservas oleval ikoonil.
Pakkumist tehes on keelatud postitada enda kontaktandmeid (nimi, telefon, aadress jne). Me jälgime ja analüüsime pakkumisi, et vältida pettuseid ja reeglite rikkumisi.
Rikkumise puhul kasutajakonto blokeeritakse.

 

Teisi töid samas valdkonnas

Valdkonnas "Tänavakivide paigaldus" on 4 aktiivset tööd

Kõnnitee remont

Asukoht: Harjumaa
Aega jäänud: 4p 23h
Tehtud pakkumisi: 3

Tänavakivide paigaldus

Asukoht: Harjumaa, Tallinn
Aega jäänud: 4p 23h
Tehtud pakkumisi: 1

Vanemad teated:

Vaata kõiki

Sellel veebilehel kasutatakse küpsiseid. Kasutamist jätkates nõustute küpsiste kasutamisega.

Sulge
 
Minu pakkumine

Reeglid

Pakkumise kirjelduse väli on mõeldud pakkumise detailsemaks lahti kirjutamiseks. Pikema teksti mugavaks sisestamiseks klikkige kasti paremal ülaservas oleval ikoonil.
Pakkumist tehes on keelatud postitada enda kontaktandmeid (nimi, telefon, aadress jne). Me jälgime ja analüüsime pakkumisi, et vältida pettuseid ja reeglite rikkumisi.
Rikkumise puhul kasutajakonto blokeeritakse.