+ Lisa oma töö      

Otsid ehitajat "Ehitusprojektid" valdkonnast?

Parima pakkumise ja teostaja leidmiseks lisa oma töö.

Plaatvundament, projektimuudatus

ID 58387

894 vaatamist

Prindi

  • check Pakkumiste tegemine
    kuni 06.05.2021
  • check Võitja valik kuni
    13.05.2021
  • 3 Töö teostamine
    ja hinnang
Hanke lõpp: N, 6. mai, 2021
Maakond: Pärnumaa
Muu asula: Tahkuranna
Tööde algus: T, 01. juuni, 2021 (Soovituslik)
Tööde lõpp: K, 01. juuni, 2022 (Soovituslik)
Ehitusmaterjalid: Töö tellija poolt
Soovin pakkumisi: Tüki- või ühikuhinda

Töö sisu

Soov oleks saada nõu ja prognoositavat maksumust maja ehituse osas palun.

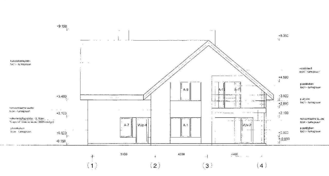
Plaatvundament põrandakütte ja muude kommunikatsioonidega pooleliolevale projektile. Link lisatud all.

Projektimuudatus ehitusmaterjalide osas. Soov jätkata pooleliolevast puiduga, mitte kiviladumisega, kas võimalik ja muudatus ka ruumilahenduse osas!? Lisatud lingil näha vana projekti väljavõtted.


Parimat,
Marika

Pildid, video ja failid

Hanke korraldaja: eraisik ID60844

Pakkumised

Pakkumisi kokku: 1

Ettevõte Summa Käibemaks Lisatud Vestlus
Kasutaja ikoon ID42152
Pakkuja profiil Väike nool paremale
1 200€ Ei ole KMKR Ei ole KMKR 06.04.2021 Vestlus (0)

Pakkumise kirjeldus:

Konsultatsiooniteenus ja projekti muudatus ning selle kooskõlastamine KOV

Küsimused hanke korraldajale

Küsimus: private ID38572   02.05.2021 09:32
Tere. Teie maja ehitus pakub huvi . On mõned küsimused teile.
1. Saan aru, et maja vundament ja 1. korruse seinad on laotud (tuleb üht-teist lõpetada) ja soovite edasi ehitada puitkonstruktsiooniga. Kas teil on vaja selleks uut projekti? Kas teine korrus ja katus jääb muidu sama mis joonistel?
2. Millises mahus on praegune maja projekt? Kas teil on olemas (on teile projekteeritud juba) maja küte, ventilatsiooni, VK projekt? Põrandakütte saab ehitada ka antud olukorras. Miks mainite plaatvundamendi ehitust?
3. Kas plaanite maja sellel aastal edasi ehitada?
Tänan teid vastuste eest. Lugupidamisega.

Teavita reeglite rikkumisest

Korraldaja vastus: 03.05.2021 08:15

Tere,

Esmalt vabandan viibinud tagasiside eest. Me enam ei tegele selle objektiga, kuna leidsime uue koha ja hakkame toimetama hoopis Reiu külas. Tahkurannas, sellele pooleliolevale projektile ei saanud me piisavat tagasisidet Häädemeeste Vallast ja huvilõng katkes.

Lugupidamisega,

Marika

Teavita reeglite rikkumisest

Lisa küsimus

Lisa küsimus

Minu pakkumine

Reeglid

Pakkumise kirjelduse väli on mõeldud pakkumise detailsemaks lahti kirjutamiseks. Pikema teksti mugavaks sisestamiseks klikkige kasti paremal ülaservas oleval ikoonil.
Pakkumist tehes on keelatud postitada enda kontaktandmeid (nimi, telefon, aadress jne). Me jälgime ja analüüsime pakkumisi, et vältida pettuseid ja reeglite rikkumisi.
Rikkumise puhul kasutajakonto blokeeritakse.

 

Teisi töid samas valdkonnas

Valdkonnas "Ehitusprojektid" on 5 aktiivset tööd

Korteri elektri projekt

Asukoht: Harjumaa, Tallinn
Aega jäänud: 1p 17h
Tehtud pakkumisi: 2

no-img Pilt puudub

Kortermaja kõigi ruumide mõõdistamine ja DWG faili koostamine

Asukoht: Harjumaa, Tallinn
Aega jäänud: 10p 17h
Tehtud pakkumisi: 1

Vanemad teated:

Vaata kõiki

Sellel veebilehel kasutatakse küpsiseid. Kasutamist jätkates nõustute küpsiste kasutamisega.

Sulge
 
Minu pakkumine

Reeglid

Pakkumise kirjelduse väli on mõeldud pakkumise detailsemaks lahti kirjutamiseks. Pikema teksti mugavaks sisestamiseks klikkige kasti paremal ülaservas oleval ikoonil.
Pakkumist tehes on keelatud postitada enda kontaktandmeid (nimi, telefon, aadress jne). Me jälgime ja analüüsime pakkumisi, et vältida pettuseid ja reeglite rikkumisi.
Rikkumise puhul kasutajakonto blokeeritakse.