+ Lisa oma töö      

Otsid ehitajat "Projekteerimine" valdkonnast?

Parima pakkumise ja teostaja leidmiseks lisa oma töö.

Viilkatuse/ 2. korruse projekt

ID 58030

389 vaatamist

Prindi

  • check Pakkumiste tegemine
    kuni 02.04.2021
  • check Võitja valik kuni
    09.04.2021
  • 3 Töö teostamine
    ja hinnang
Hanke lõpp: R, 2. aprill, 2021
Maakond: Pärnumaa
Muu asula: Paikuse
Tööde algus: E, 12. aprill, 2021 (Soovituslik)
Tööde lõpp: L, 31. juuli, 2021 (Soovituslik)
Ehitusmaterjalid: Töö tellija poolt
Soovin pakkumisi: Summa kogu projektile

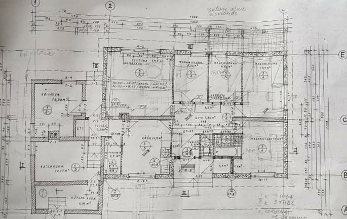
Töö sisu

1980.a ehitatud eramu. Sooviks kõigepealt teada, kas tuhaplokkidest laotud seinad kannatavad koormuse muutust, ja kas olemasolevaid verme kannataks tõsta postide peale vōi siis tervenisti uued vermid/sarikad ehitada. Paar katuseakent, küttekeha ja yhe wc ja 1 suurem ja 2 väikest magamistuba, koos väikse rõdu/terrassiga.

Pildid, video ja failid

Hanke korraldaja: eraisik ID60644

Pakkumised

Pakkumisi kokku: 1

Ettevõte Summa Käibemaks Lisatud Vestlus
Kasutaja ikoon ID42152
Pakkuja profiil Väike nool paremale
1 195€ Ei ole KMKR Ei ole KMKR 30.03.2021 Vestlus (0)

Pakkumise kirjeldus:

Ehitusprojekt eelprojekti staadiumis (arh-eh osa koos eriosadega)
Pakkumishind sisaldab:
Seletuskiri
Asendiskeem (Maa-ameti ortofotol)
Korruste plaanid
Katuse plaan
Hoone lõige
Hoone vaated
Avatäidete joonised

Kooskõlastused ehitusteatise registreerimiseks
Ehitusteatise esitamine KOV
Ehitusteatise registreerimine KOV

Riigilõivuvaba

NB! ... Rohkem

Küsimused hanke korraldajale

Hanke korraldajale ei ole veel küsimusi esitatud.

Lisa küsimus

Lisa küsimus

Minu pakkumine

Reeglid

Pakkumise kirjelduse väli on mõeldud pakkumise detailsemaks lahti kirjutamiseks. Pikema teksti mugavaks sisestamiseks klikkige kasti paremal ülaservas oleval ikoonil.
Pakkumist tehes on keelatud postitada enda kontaktandmeid (nimi, telefon, aadress jne). Me jälgime ja analüüsime pakkumisi, et vältida pettuseid ja reeglite rikkumisi.
Rikkumise puhul kasutajakonto blokeeritakse.

 

Teisi töid samas valdkonnas

Valdkonnas "Projekteerimine" on 6 aktiivset tööd

no-img Pilt puudub

1-kordse 120 m2 elumaja põhiprojekt

Asukoht: Harjumaa, Metsanurme
Aega jäänud: 8p 14h
Tehtud pakkumisi: 4

no-img Pilt puudub

Saunamaja eelprojekt ehitusteatiseks

Asukoht: Lääne-Virumaa
Aega jäänud: 1p 14h
Tehtud pakkumisi: 3

Vanemad teated:

Vaata kõiki

Sellel veebilehel kasutatakse küpsiseid. Kasutamist jätkates nõustute küpsiste kasutamisega.

Sulge
 
Minu pakkumine

Reeglid

Pakkumise kirjelduse väli on mõeldud pakkumise detailsemaks lahti kirjutamiseks. Pikema teksti mugavaks sisestamiseks klikkige kasti paremal ülaservas oleval ikoonil.
Pakkumist tehes on keelatud postitada enda kontaktandmeid (nimi, telefon, aadress jne). Me jälgime ja analüüsime pakkumisi, et vältida pettuseid ja reeglite rikkumisi.
Rikkumise puhul kasutajakonto blokeeritakse.