+ Lisa oma töö      

Otsid ehitajat "Põrandaküte, paigaldus" valdkonnast?

Parima pakkumise ja teostaja leidmiseks lisa oma töö.

Vesipõrandakütte torude paigaldus

ID 57506

1150 vaatamist

Prindi

  • check Pakkumiste tegemine
    kuni 24.03.2021
  • check Võitja valik kuni
    31.03.2021
  • 3 Töö teostamine
    ja hinnang
Hanke lõpp: K, 24. märts, 2021
Maakond: Pärnumaa
Muu asula: Silla
Tööde algus: E, 05. aprill, 2021 (Soovituslik)
Tööde lõpp: R, 16. aprill, 2021
Ehitusmaterjalid: Töö tellija poolt
Soovin pakkumisi: Summa kogu projektile

Töö sisu

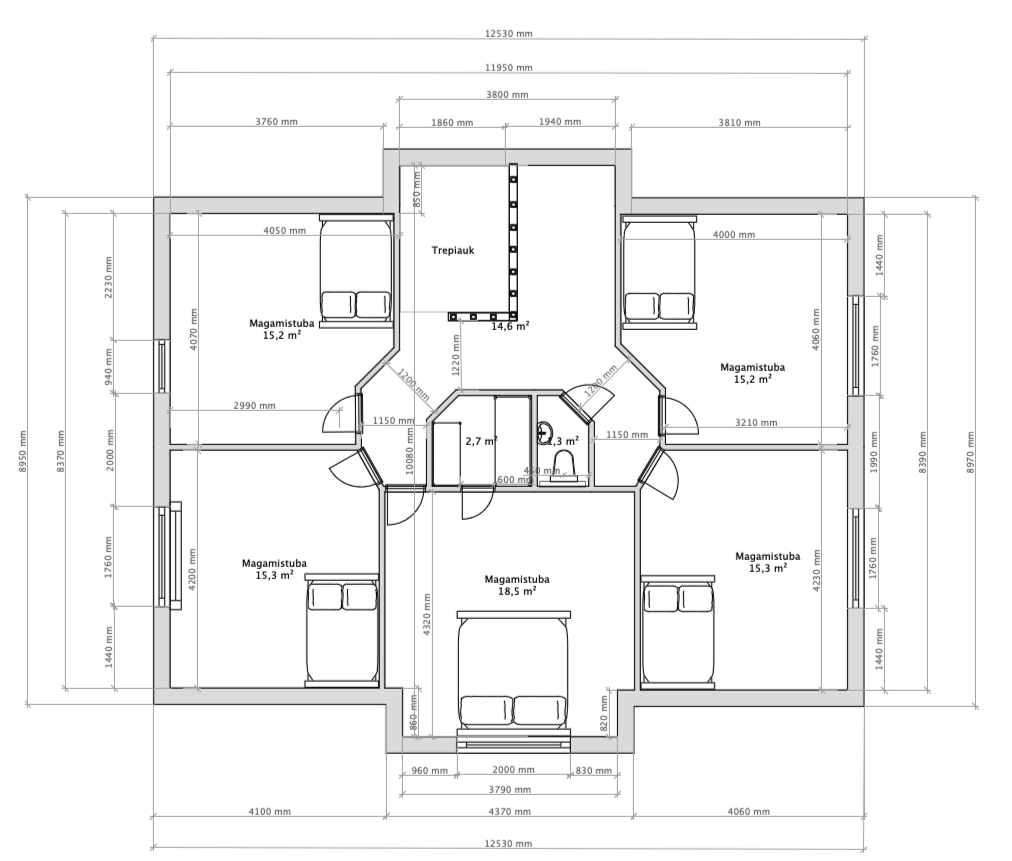
Põrandakütte torude paigaldus.

• 2 korrus
• Pindala 98m2
• Pakkumine peaks sisaldama kollektorit ja selle paigaldust.
• 6 tsooni
• Toru 20mm
• Ajameid ja kontrollereid pole vaja
• Torude peale tuleb kipsivalu. Torude alla on paigaldatud kipsivalu alune kangas.

Esimesel korrusel põrandaküte töötab (Thermia maaküttepump). Jäetud on ülesminek ja tagasitulek.

Pildid, video ja failid

Hanke korraldaja: eraisik ID45948

Pakkumised

Pakkumisi kokku: 7

Ettevõte Summa Käibemaks Lisatud Vestlus
Kasutaja ikoon ID39474
Pakkuja profiil Väike nool paremale
1 300€ KM lisandub KM lisandub 18.03.2021 Vestlus (0)

Pakkumise kirjeldus:

Pakkumine vesipõrandakütte paigaldusele ja süsteemi survetsamisele suruõhuga või veega. Hinnas töö ja materjal kokku. Hinna eeldus, et 2. k kollektor asub enamvähem tehnoruumi kohal, et poleks vaja pikalt vedada magistraaltorustikku,. Toru paigaldus naelklambriga aluspõrandale. Kasutame kvaliteetseid materjale (5-kih. PERT toru nt. Maincor, TECE ko ... Rohkem

Kasutaja ikoon ID43451
Pakkuja profiil Väike nool paremale
2 000€ Sisaldab KM Sisaldab KM 18.03.2021 Vestlus (0)
Kasutaja ikoon ID50618
Pakkuja profiil Väike nool paremale
1 800€ KM lisandub KM lisandub 19.03.2021 Vestlus (0)

Pakkumise kirjeldus:

Hind sisalsab:
- 6 tiemme kollektorit + ühendusi
- kollektori kapp pinnapealne
- toite torude ühendust kollektoriga
- 20mm põrandakütte torustiku
- kinnitusklambereid torule
- transpordikulusid
- paigaldustöid
- survestamine

Kasutaja ikoon ID58946
Pakkuja profiil Väike nool paremale
1 180€ Ei ole KMKR Ei ole KMKR 20.03.2021 Vestlus (0)

Pakkumise kirjeldus:

Tere, pakkumine kirjeldatud töödele. Hind sisaldab kollektorit ja selle paigaldust. Lugupidamisega mehed Pärnust.

Kasutaja ikoon ID58354
Pakkuja profiil Väike nool paremale
1 400€ Ei ole KMKR Ei ole KMKR 20.03.2021 Vestlus (0)

Pakkumise kirjeldus:

Pakkumine sisaldab 20 toru
kinnitusklambreid
kollektor
painde nurgad
survestus
ühendus esimese korrusega.
töö

Kasutaja ikoon ID56040
Pakkuja profiil Väike nool paremale
1 280€ Ei ole KMKR Ei ole KMKR 23.03.2021 Vestlus (0)

Pakkumise kirjeldus:

-Kollektor 6 tsooni
-Toru 20mm
-Paigaldus+tarvikud
-Tegeleme kipsivaluga, võime pakkuda ka seda 19-21eur/m2

Kasutaja ikoon ID1572
Pakkuja profiil Väike nool paremale
1 350€ KM lisandub KM lisandub 24.03.2021 Vestlus (0)

Pakkumise kirjeldus:

Pörandaküttetoru ¤20mm ja kollektor i paigaldus,ühendamine allkorrusega ja survetamine

Küsimused hanke korraldajale

Küsimus: private ID43451   17.03.2021 20:01
Kas vajalik on ühendada ka "ülesmineku ja tagasitulekuga" ning millise toruga see teostatud on? Piltidest oleks kasu. Mis materjalist on aluspõrand kuhu toru pannakse? Kui paks tuleb kipsivalu?

Teavita reeglite rikkumisest

Korraldaja vastus: 17.03.2021 20:06

Jah vajalik ühendada ülesmineku ja tagasitulekuga. Lisasin pildi hankele.
Aluspõrand on puitlaudis.
Kuna põrand ei ole praegu loodis, siis kipsivalu tuleb 4-7 cm.

Teavita reeglite rikkumisest

Küsimus: private ID43451   17.03.2021 20:07
Selge. Aga toru saab paigaldada otse põrandale ning kinnitused põrandakülge kruvida?

Teavita reeglite rikkumisest

Korraldaja vastus: 18.03.2021 12:58

Jah võib kruvida.
Kipsivalu ettevõte soovitas plasikust klambreid kasutada, mille sisse saab toru vajutada ja mille saab põranda külge kruvida.

Teavita reeglite rikkumisest

Lisa küsimus

Lisa küsimus

Minu pakkumine

Reeglid

Pakkumise kirjelduse väli on mõeldud pakkumise detailsemaks lahti kirjutamiseks. Pikema teksti mugavaks sisestamiseks klikkige kasti paremal ülaservas oleval ikoonil.
Pakkumist tehes on keelatud postitada enda kontaktandmeid (nimi, telefon, aadress jne). Me jälgime ja analüüsime pakkumisi, et vältida pettuseid ja reeglite rikkumisi.
Rikkumise puhul kasutajakonto blokeeritakse.

 

Vanemad teated:

Vaata kõiki

Sellel veebilehel kasutatakse küpsiseid. Kasutamist jätkates nõustute küpsiste kasutamisega.

Sulge
 
Minu pakkumine

Reeglid

Pakkumise kirjelduse väli on mõeldud pakkumise detailsemaks lahti kirjutamiseks. Pikema teksti mugavaks sisestamiseks klikkige kasti paremal ülaservas oleval ikoonil.
Pakkumist tehes on keelatud postitada enda kontaktandmeid (nimi, telefon, aadress jne). Me jälgime ja analüüsime pakkumisi, et vältida pettuseid ja reeglite rikkumisi.
Rikkumise puhul kasutajakonto blokeeritakse.