+ Lisa oma töö      

Otsid ehitajat "Ehitusprojektid" valdkonnast?

Parima pakkumise ja teostaja leidmiseks lisa oma töö.

Hange on lõppenud!

Võitjaks osutus kasutaja ID 51879

Küte- ja ventilatsiooni-, veesüsteemi projekti koostamine eramule

ID 57376

571 vaatamist

Prindi

  • check Pakkumiste tegemine
    kuni 27.03.2021
  • check Võitja valik kuni
    27.03.2021
  • 3 Töö teostamine
    ja hinnang
Hanke lõpp: L, 27. märts, 2021
Maakond: Valgamaa
Linn: Valga
Tööde algus: E, 15. märts, 2021 (Soovituslik)
Tööde lõpp: K, 31. märts, 2021 (Soovituslik)
Ehitusmaterjalid: Töö tegija poolt
Soovin pakkumisi: Summa kogu projektile

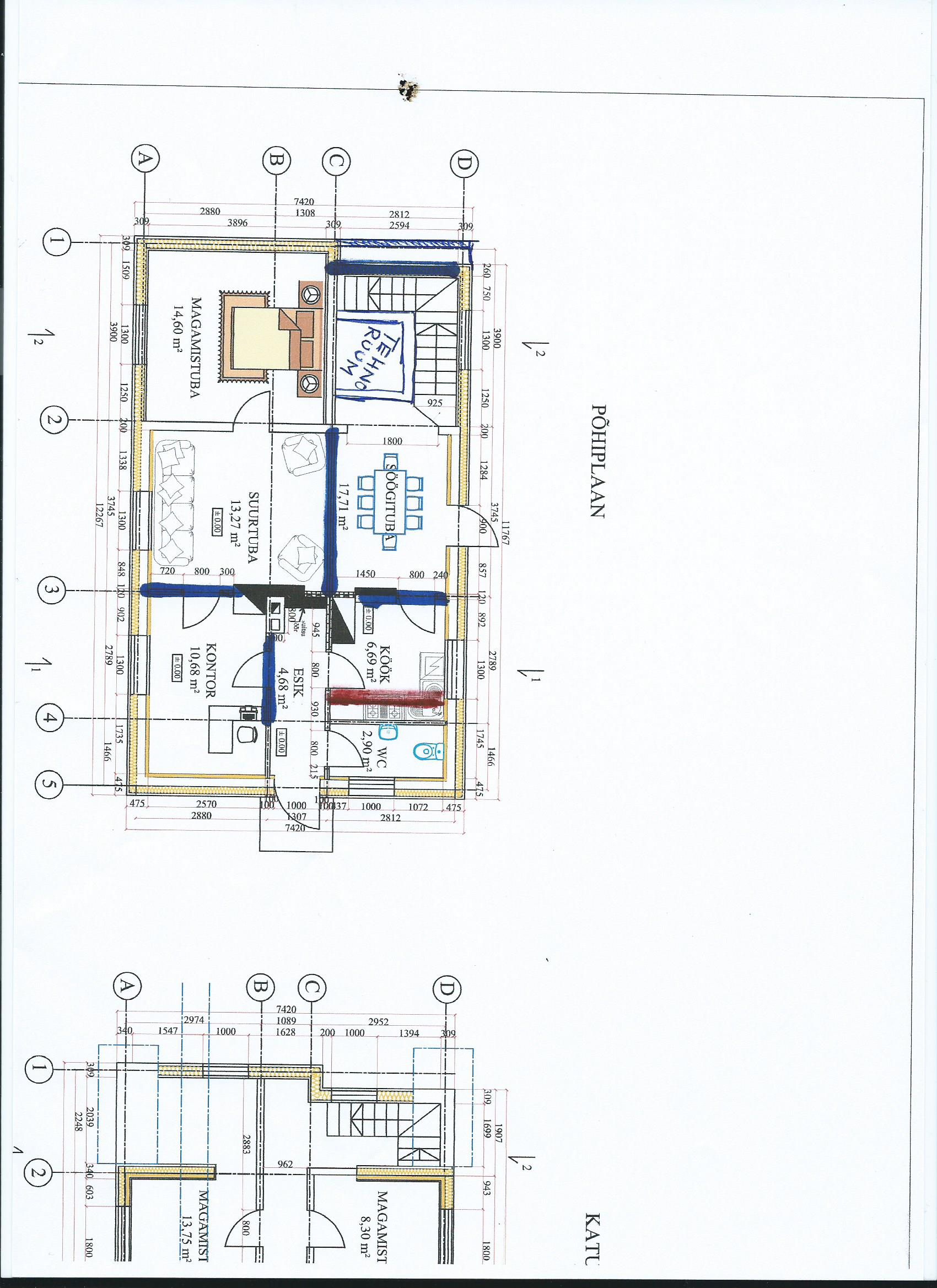
Töö sisu

Soojusvarustus õhk-vesi soojuspumbaga + soojavee boiler
- Ventilatsioon - soojustagastusega sundsissepuhke-väljatõmbe süsteem

Välisseinte soojustus – kivivill 200 mm. +50mm
Vahelagi soojustatud 200 mm kivivillaga,
Teisele korrusele on plaanitud radiaatorid.
Punasega märgitud on vahesein.
Sinisega märgitud vaheseinu ei tule.
On ka muudetud välissein trepi juures.
Märgitud sinisega ja ei tule.

Pildid, video ja failid

Hanke korraldaja: eraisik ID59529

Pakkumised

Pakkumisi kokku: 2

Ettevõte Summa Käibemaks Lisatud Vestlus
Kasutaja ikoon ID51879
Pakkuja profiil Väike nool paremale
360€ KM lisandub KM lisandub 14.03.2021 Vestlus (2)

Pakkumise kirjeldus:

Pakkumine sisaldab;
Ventilatsioonilahenduse joonist koos ōhuhulkade,seadme kirjelduse jm juurde kuuluvaga .

Kasutaja ikoon ID58247
Pakkuja profiil Väike nool paremale
900€ Sisaldab KM Sisaldab KM 15.03.2021 Vestlus (2)

Pakkumise kirjeldus:

Pakkumises kütte- ja ventilatsiooniprojekti koostamine põhiprojekti staadiumis.

Küsimused hanke korraldajale

Hanke korraldajale ei ole veel küsimusi esitatud.

Lisa küsimus

Lisa küsimus

Minu pakkumine

Reeglid

Pakkumise kirjelduse väli on mõeldud pakkumise detailsemaks lahti kirjutamiseks. Pikema teksti mugavaks sisestamiseks klikkige kasti paremal ülaservas oleval ikoonil.
Pakkumist tehes on keelatud postitada enda kontaktandmeid (nimi, telefon, aadress jne). Me jälgime ja analüüsime pakkumisi, et vältida pettuseid ja reeglite rikkumisi.
Rikkumise puhul kasutajakonto blokeeritakse.

 

Teisi töid samas valdkonnas

Valdkonnas "Ehitusprojektid" on 5 aktiivset tööd

Korteri elektri projekt

Asukoht: Harjumaa, Tallinn
Aega jäänud: 1p 17h
Tehtud pakkumisi: 2

no-img Pilt puudub

Kortermaja kõigi ruumide mõõdistamine ja DWG faili koostamine

Asukoht: Harjumaa, Tallinn
Aega jäänud: 10p 17h
Tehtud pakkumisi: 1

Vanemad teated:

Vaata kõiki

Sellel veebilehel kasutatakse küpsiseid. Kasutamist jätkates nõustute küpsiste kasutamisega.

Sulge
 
Minu pakkumine

Reeglid

Pakkumise kirjelduse väli on mõeldud pakkumise detailsemaks lahti kirjutamiseks. Pikema teksti mugavaks sisestamiseks klikkige kasti paremal ülaservas oleval ikoonil.
Pakkumist tehes on keelatud postitada enda kontaktandmeid (nimi, telefon, aadress jne). Me jälgime ja analüüsime pakkumisi, et vältida pettuseid ja reeglite rikkumisi.
Rikkumise puhul kasutajakonto blokeeritakse.