+ Lisa oma töö      

Otsid ehitajat "Projekteerimine" valdkonnast?

Parima pakkumise ja teostaja leidmiseks lisa oma töö.

Hange on lõppenud!

Võitjaks osutus kasutaja ID 56531

Eramaja kütte ja ventilatsiooniprojekt

ID 56592

1117 vaatamist

Prindi

  • check Pakkumiste tegemine
    kuni 15.03.2021
  • check Võitja valik kuni
    22.03.2021
  • 3 Töö teostamine
    ja hinnang
Hanke lõpp: E, 15. märts, 2021
Maakond: Pärnumaa
Linn: Pärnu
Tööde algus: T, 01. juuni, 2021 (Soovituslik)
Tööde lõpp: N, 30. september, 2021 (Soovituslik)
Ehitusmaterjalid: Töö tellija poolt
Soovin pakkumisi: Summa kogu projektile

Töö sisu

sooviksin pakkumisi ehitatava eramaja kütte ja ventilatsiooniprojekti tegemiseks. Küte kas õhk-vesi või puurauguga maaküte (kui võimalik puurkaevu lahendus, siis kaaluks seda)
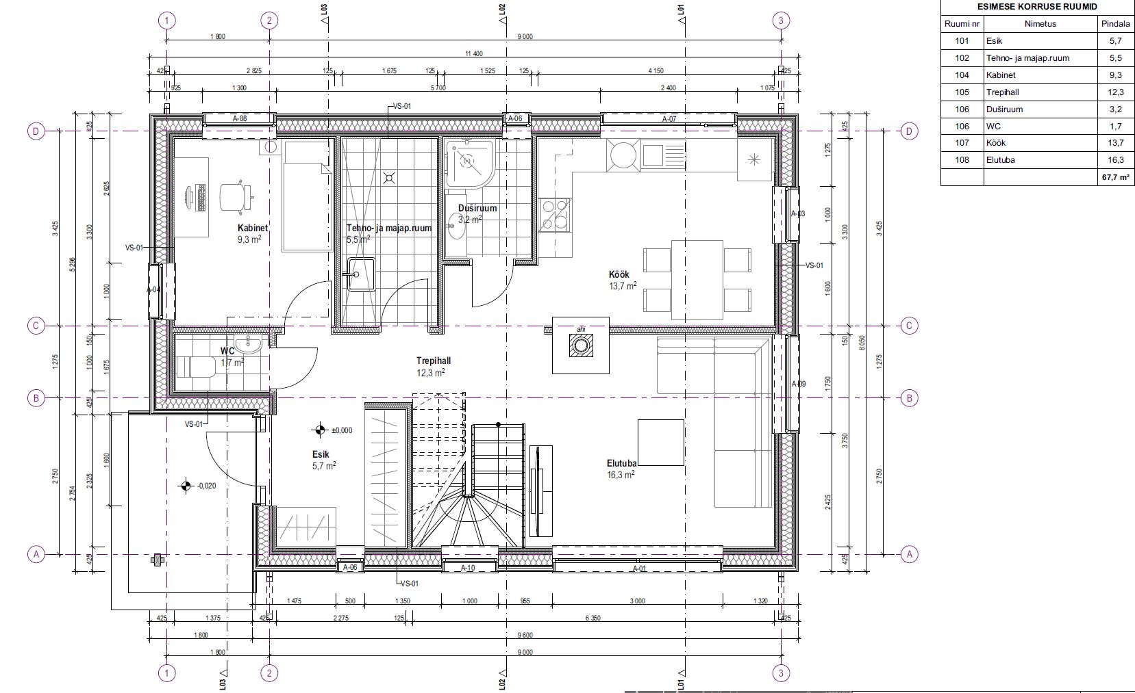
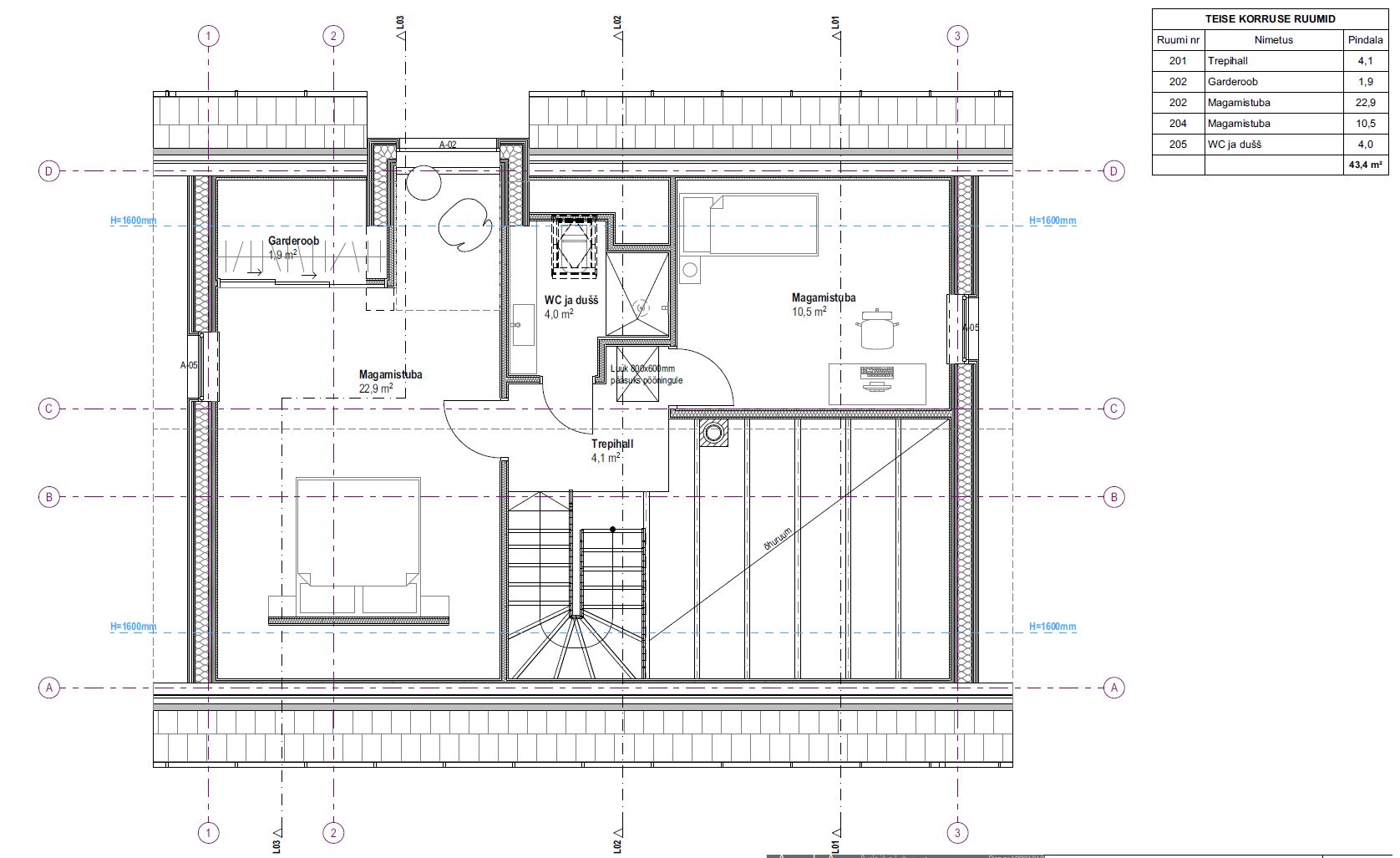
Esimesel korrusel põrandaküte teisel radiaatorid. Maja esimene korrusel kasutatavat pinda 68m2, teisel 44m2. Maja energiaklass B.

Pildid, video ja failid

Hanke korraldaja: eraisik ID24542

Pakkumised

Pakkumisi kokku: 5

Ettevõte Summa Käibemaks Lisatud Vestlus
Kasutaja ikoon ID58247
Pakkuja profiil Väike nool paremale
800€ Sisaldab KM Sisaldab KM 16.02.2021 Vestlus (0)
Kasutaja ikoon ID59454
Pakkuja profiil Väike nool paremale
2 300€ Ei ole KMKR Ei ole KMKR 16.02.2021 Vestlus (0)

Pakkumise kirjeldus:

Kütte (õhk-vesi soojusspump) ja ventilatsiooni PP koos mudeliga.
Alustamine aprilli 2. ndl.

Kasutaja ikoon ID59816
Pakkuja profiil Väike nool paremale
1 500€ Sisaldab KM Sisaldab KM 02.03.2021 Vestlus (0)
Kasutaja ikoon ID56531
Pakkuja profiil Väike nool paremale
750€ Ei ole KMKR Ei ole KMKR 06.03.2021 Vestlus (0)

Pakkumise kirjeldus:

Tere

Hinnapakkumine sisaldab soojustagastusega ventilatsiooni ning õhk-vesi/ maasoojuspumbaga baasil kütte põhiprojekti (maht vastavalt EVS 932 "Ehitusprojekt").
Pakkumine sisaldab õhuvahetuse/küttekoormuste määramist, torustike ja õhujagajate dimensioneerimist, vent.seadme/soojuspumba valimist, korruseplaane, seletuskirja ja põhiseadmete spets ... Rohkem

Kasutaja ikoon ID51879
Pakkuja profiil Väike nool paremale
360€ KM lisandub KM lisandub 14.03.2021 Vestlus (1)

Pakkumise kirjeldus:

Ventilatsioonilahendus koos ōhuhulkade,seadme kirjelduse jm juurde kuuluvaga.

Ettevōtte tegevusalaks on vent.süsteemide väljaehitamine joonisest mōōdistamiseni. 17aastat kogemusi.

Küsimused hanke korraldajale

Hanke korraldajale ei ole veel küsimusi esitatud.

Lisa küsimus

Lisa küsimus

Minu pakkumine

Reeglid

Pakkumise kirjelduse väli on mõeldud pakkumise detailsemaks lahti kirjutamiseks. Pikema teksti mugavaks sisestamiseks klikkige kasti paremal ülaservas oleval ikoonil.
Pakkumist tehes on keelatud postitada enda kontaktandmeid (nimi, telefon, aadress jne). Me jälgime ja analüüsime pakkumisi, et vältida pettuseid ja reeglite rikkumisi.
Rikkumise puhul kasutajakonto blokeeritakse.

 

Teisi töid samas valdkonnas

Valdkonnas "Projekteerimine" on 6 aktiivset tööd

no-img Pilt puudub

1-kordse 120 m2 elumaja põhiprojekt

Asukoht: Harjumaa, Metsanurme
Aega jäänud: 8p 14h
Tehtud pakkumisi: 4

no-img Pilt puudub

Saunamaja eelprojekt ehitusteatiseks

Asukoht: Lääne-Virumaa
Aega jäänud: 1p 14h
Tehtud pakkumisi: 3

Vanemad teated:

Vaata kõiki

Sellel veebilehel kasutatakse küpsiseid. Kasutamist jätkates nõustute küpsiste kasutamisega.

Sulge
 
Minu pakkumine

Reeglid

Pakkumise kirjelduse väli on mõeldud pakkumise detailsemaks lahti kirjutamiseks. Pikema teksti mugavaks sisestamiseks klikkige kasti paremal ülaservas oleval ikoonil.
Pakkumist tehes on keelatud postitada enda kontaktandmeid (nimi, telefon, aadress jne). Me jälgime ja analüüsime pakkumisi, et vältida pettuseid ja reeglite rikkumisi.
Rikkumise puhul kasutajakonto blokeeritakse.