+ Lisa oma töö      

Otsid ehitajat "Projekteerimine" valdkonnast?

Parima pakkumise ja teostaja leidmiseks lisa oma töö.

Hange on lõppenud!

Võitjaks osutus kasutaja ID 46826

Korraldaja hinnang tehtud tööle

5.0
28.04.2021
Töökiirus: 12345
Kvaliteet: 12345
Hind: 12345

Projekteerimine - eramu

ID 56551

1119 vaatamist

Prindi

  • check Pakkumiste tegemine
    kuni 25.02.2021
  • check Võitja valik kuni
    04.03.2021
  • 3 Töö teostamine
    ja hinnang
Hanke lõpp: N, 25. veebruar, 2021
Maakond: Harjumaa
Tööde algus: E, 22. veebruar, 2021 (Soovituslik)
Tööde lõpp: K, 31. märts, 2021
Ehitusmaterjalid: Töö tegija poolt
Soovin pakkumisi: Summa kogu projektile

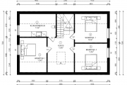
Töö sisu

Paluks pakkumist eelprojekti teostamisele, mille põhjal ehitusluba taodelda:
* Seletuskiri
* Asendiplaan
* Korruse plaanid
* Lõige
* Vaated (sh. võimalusel 3D vaated - juhul kui pakute, mainida seda pakkumises)

Põhipakkumisele (eelprojekt) lisaks tuua eraldi välja :
* Energiamärgise arvutus
* Lammutusprojekt (praeguse suvila lammutus - ehitusalune pind 78 m2 / 1 korrus)
* Vundamendi joonis
* Tehnosüsteemide põhiprojekt (küte, vesi, kanalisatsioon, ventilatsioon, elekter, väline vesi, kanalisatsioon, drenaaž)

Mainida pakkumises ka tööde kestus ning millal oleks võimalik alustada ?

Pildid, video ja failid

Hanke korraldaja: eraisik ID58756

Pakkumised

Pakkumisi kokku: 5

Ettevõte Summa Käibemaks Lisatud Vestlus
Kasutaja ikoon ID5128
Pakkuja profiil Väike nool paremale
2 400€ KM lisandub KM lisandub 11.02.2021 Vestlus (2)

Pakkumise kirjeldus:

hinnas sisaldub energiamärgis 200+km, lammutus 180+km., mis on vaja ehitusloa taotlemisel. Täiendavalt tehnovarustuse põhiprojektid 1200+km

Kasutaja ikoon ID42152
Pakkuja profiil Väike nool paremale
1 285€ Ei ole KMKR Ei ole KMKR 11.02.2021 Vestlus (4)

Pakkumise kirjeldus:

Ehitusprojekt eelprojekti staadiumis (arh-eh osa koos eriosadega)
PAkkumishind sisaldab:
Seletuskiri (sh lammutuse osa)
Asendiplaan (vajalik geoalus, mille hind eraldi tööna on 500EUR)
Vund ja korruste plaanid
KAtuse plaan
Hoone lõige
Hoone vaated
Avatäidete joonised
Jm asjakohased vajalikud joonised

Kooskõlastused ehitusloa saamiseks
Ehitu ... Rohkem

Kasutaja ikoon ID57869
Pakkuja profiil Väike nool paremale
2 500€ Sisaldab KM Sisaldab KM 22.02.2021 Vestlus (0)
Kasutaja ikoon ID46826
Pakkuja profiil Väike nool paremale
1 250€ Ei ole KMKR Ei ole KMKR 25.02.2021 Vestlus (7)

Pakkumise kirjeldus:

Eelprojekti vormistamine elamule joonised (vaated , lõige, korruste plaanid, vund. plaan avatäited ) koos seletuskirjaga (sh lammutuse osa).
*Energiamärgis
*Kooskõlastamised, asjaajamine
*Ehitusloa taotlemine
*Asendiplaan ( geoalus ca 350 )

Täpsustavad küsimused oodatud

Kasutaja ikoon ID48870
Pakkuja profiil Väike nool paremale
1 450€ Ei ole KMKR Ei ole KMKR 25.02.2021 Vestlus (2)

Pakkumise kirjeldus:

Ehitusprojekt eelprojekti staadiumis (arh-eh osa koos eriosadega) 1450.
paekkumishind sisaldab:
Seletuskiri
Vund plaan
Korruse plaan
Katuse plaan
Hoone lõige
Hoone vaated
Avatäidete joonised
Jm asjakohased vajalikud joonised
Asendiplaan Vajlik geoalus, mile hin eraldi tööna 390 euro
Kooskõlastused ehitusloa saamiseks
Ehitusloa taotluse esita ... Rohkem

Küsimused hanke korraldajale

Hanke korraldajale ei ole veel küsimusi esitatud.

Lisa küsimus

Lisa küsimus

Minu pakkumine

Reeglid

Pakkumise kirjelduse väli on mõeldud pakkumise detailsemaks lahti kirjutamiseks. Pikema teksti mugavaks sisestamiseks klikkige kasti paremal ülaservas oleval ikoonil.
Pakkumist tehes on keelatud postitada enda kontaktandmeid (nimi, telefon, aadress jne). Me jälgime ja analüüsime pakkumisi, et vältida pettuseid ja reeglite rikkumisi.
Rikkumise puhul kasutajakonto blokeeritakse.

 

Teisi töid samas valdkonnas

Valdkonnas "Projekteerimine" on 6 aktiivset tööd

no-img Pilt puudub

1-kordse 120 m2 elumaja põhiprojekt

Asukoht: Harjumaa, Metsanurme
Aega jäänud: 8p 20h
Tehtud pakkumisi: 4

no-img Pilt puudub

Saunamaja eelprojekt ehitusteatiseks

Asukoht: Lääne-Virumaa
Aega jäänud: 1p 20h
Tehtud pakkumisi: 3

Vanemad teated:

Vaata kõiki

Sellel veebilehel kasutatakse küpsiseid. Kasutamist jätkates nõustute küpsiste kasutamisega.

Sulge
 
Minu pakkumine

Reeglid

Pakkumise kirjelduse väli on mõeldud pakkumise detailsemaks lahti kirjutamiseks. Pikema teksti mugavaks sisestamiseks klikkige kasti paremal ülaservas oleval ikoonil.
Pakkumist tehes on keelatud postitada enda kontaktandmeid (nimi, telefon, aadress jne). Me jälgime ja analüüsime pakkumisi, et vältida pettuseid ja reeglite rikkumisi.
Rikkumise puhul kasutajakonto blokeeritakse.