+ Lisa oma töö      

Otsid ehitajat "Ehitusprojektid" valdkonnast?

Parima pakkumise ja teostaja leidmiseks lisa oma töö.

Korteri ümberehituse seadustamine

ID 56340

437 vaatamist

Prindi

  • check Pakkumiste tegemine
    kuni 14.02.2021
  • check Võitja valik kuni
    15.02.2021
  • 3 Töö teostamine
    ja hinnang
Hanke lõpp: P, 14. veebruar, 2021
Maakond: Harjumaa
Linn: Tallinn
Tööde algus: E, 15. veebruar, 2021 (Soovituslik)
Tööde lõpp: R, 30. aprill, 2021 (Soovituslik)
Ehitusmaterjalid: Töö tellija poolt
Soovin pakkumisi: Summa kogu projektile

Töö sisu

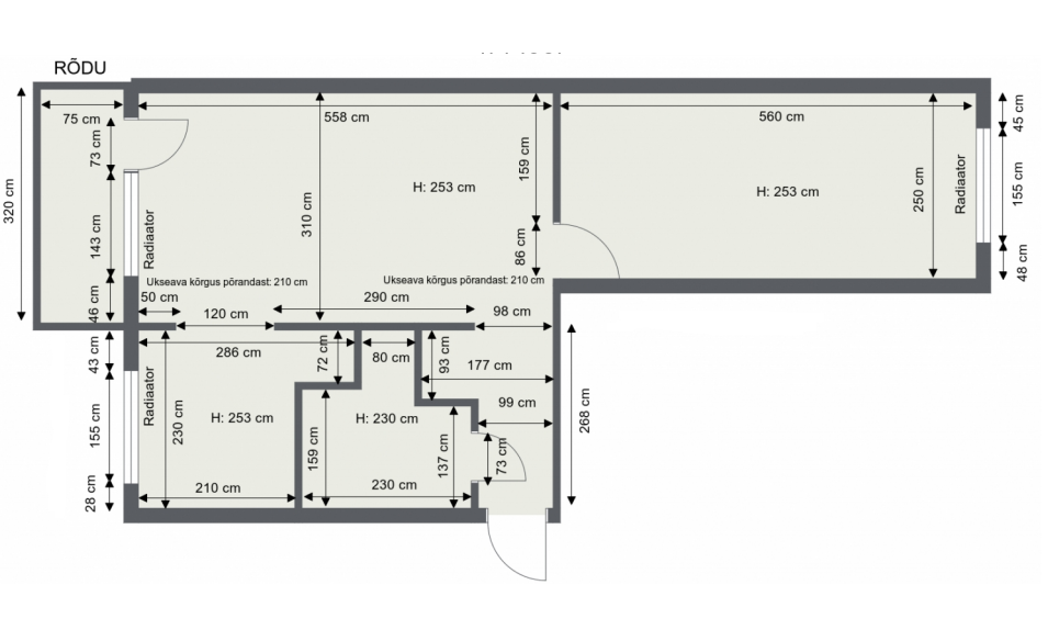
Sooviks hinnapakkumist korteri ümberehituse seadustamiseks. Korter (2 tuba) asub Tallinnas Nõmme piirkonnas, 3. korrusel 5-korruselises paneelmajas (ehitusaasta 1967).

Korteril on muudetud algset planeeringut, mille käigus tehti ava elutoa ja köögi vahelisse seina. Nagu mulle on kinnitatud, on tegemist kandva seinaga. Muudatus planeeringus tehti rohkem kui 20 aastat tagasi korteri eelmise omaniku poolt, muudatust mitte kuskil ei kooskõlastatud ega dokumenteeritud.

Otsin spetsialisti või ettevõtet, kes algusest lõpuni teostaks kõik vajalikud toimingud (projektid, avaldused jne). Töö tulemus on ehitusregistris tehtud muudatus, mida aktsepteerivad kõik pangad, kes korteri tagatisel laenu väljastavad.

Lisatud: enda poolt koostatud korteri plaan.

Pildid, video ja failid

Hanke korraldaja: eraisik ID59247

Pakkumised

Pakkumisi kokku: 0

Küsimused hanke korraldajale

Hanke korraldajale ei ole veel küsimusi esitatud.

Lisa küsimus

Lisa küsimus

Minu pakkumine

Reeglid

Pakkumise kirjelduse väli on mõeldud pakkumise detailsemaks lahti kirjutamiseks. Pikema teksti mugavaks sisestamiseks klikkige kasti paremal ülaservas oleval ikoonil.
Pakkumist tehes on keelatud postitada enda kontaktandmeid (nimi, telefon, aadress jne). Me jälgime ja analüüsime pakkumisi, et vältida pettuseid ja reeglite rikkumisi.
Rikkumise puhul kasutajakonto blokeeritakse.

 

Teisi töid samas valdkonnas

Valdkonnas "Ehitusprojektid" on 5 aktiivset tööd

Korteri elektri projekt

Asukoht: Harjumaa, Tallinn
Aega jäänud: 1p 17h
Tehtud pakkumisi: 2

no-img Pilt puudub

Kortermaja kõigi ruumide mõõdistamine ja DWG faili koostamine

Asukoht: Harjumaa, Tallinn
Aega jäänud: 10p 17h
Tehtud pakkumisi: 1

Vanemad teated:

Vaata kõiki

Sellel veebilehel kasutatakse küpsiseid. Kasutamist jätkates nõustute küpsiste kasutamisega.

Sulge
 
Minu pakkumine

Reeglid

Pakkumise kirjelduse väli on mõeldud pakkumise detailsemaks lahti kirjutamiseks. Pikema teksti mugavaks sisestamiseks klikkige kasti paremal ülaservas oleval ikoonil.
Pakkumist tehes on keelatud postitada enda kontaktandmeid (nimi, telefon, aadress jne). Me jälgime ja analüüsime pakkumisi, et vältida pettuseid ja reeglite rikkumisi.
Rikkumise puhul kasutajakonto blokeeritakse.