+ Lisa oma töö      

Otsid ehitajat "Ehitusprojektid" valdkonnast?

Parima pakkumise ja teostaja leidmiseks lisa oma töö.

Hange on lõppenud!

Võitjaks osutus kasutaja ID 42152

Korraldaja hinnang tehtud tööle

3.0
18.09.2022
Töökiirus: 12345
Kvaliteet: 12345
Hind: 12345

Projekt

ID 56204

823 vaatamist

Prindi

  • check Pakkumiste tegemine
    kuni 03.02.2021
  • check Võitja valik kuni
    03.02.2021
  • 3 Töö teostamine
    ja hinnang
Hanke lõpp: K, 3. veebruar, 2021
Maakond: Tartumaa
Linn: Tartu
Muu asula: Nõo
Tööde algus: P, 24. jaanuar, 2021 (Soovituslik)
Tööde lõpp: P, 31. jaanuar, 2021 (Soovituslik)
Ehitusmaterjalid: Töö tellija poolt
Soovin pakkumisi: Summa kogu projektile

Töö sisu

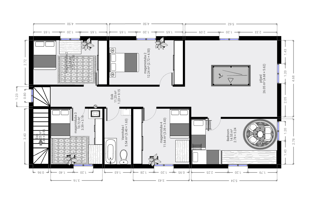
Otsin inimest kes teeks projekti vanale majale millele plaanis teha juurdeehitus ja teine korrus.
Lisatud on ka joonised milline oleks soovitud lõpptulemus kui selline teostus on võimalik.

Pildid, video ja failid

Hanke korraldaja: eraisik ID54591

Pakkumised

Pakkumisi kokku: 1

Ettevõte Summa Käibemaks Lisatud Vestlus
Kasutaja ikoon ID42152
Pakkuja profiil Väike nool paremale
1 325€ Ei ole KMKR Ei ole KMKR 29.01.2021 Vestlus (0)

Pakkumise kirjeldus:

Ehitusprojekt eelprojekti staadiumis (arh-eh osa koos eriosadega)
Pakkumishind sisaldab:
Seletuskiri
Energiamärgis
Asendiplaan (vajalik geoalus, mille hind eraldi tööna on 500EUR)
Vund ja korruste plaanid
Katuse plaan
Hoone lõige
Hoone vaated
Avatäidete joonised
Jm asjakohased vajalikud joonised

Kooskõlastused ehitusloa saamiseks
Ehituslo ... Rohkem

Küsimused hanke korraldajale

Hanke korraldajale ei ole veel küsimusi esitatud.

Lisa küsimus

Lisa küsimus

Minu pakkumine

Reeglid

Pakkumise kirjelduse väli on mõeldud pakkumise detailsemaks lahti kirjutamiseks. Pikema teksti mugavaks sisestamiseks klikkige kasti paremal ülaservas oleval ikoonil.
Pakkumist tehes on keelatud postitada enda kontaktandmeid (nimi, telefon, aadress jne). Me jälgime ja analüüsime pakkumisi, et vältida pettuseid ja reeglite rikkumisi.
Rikkumise puhul kasutajakonto blokeeritakse.

 

Teisi töid samas valdkonnas

Valdkonnas "Ehitusprojektid" on 9 aktiivset tööd

Ehitusprojekti koostamine

Asukoht: Valgamaa, Roobe
Aega jäänud: 22p
Tehtud pakkumisi: 6

no-img Pilt puudub

„Eskiislahendus 4–6 korteriga elamu rajamiseks (Pärnu)”

Asukoht: Pärnumaa, Pärnu
Aega jäänud: 11p
Tehtud pakkumisi: 5

Vanemad teated:

Vaata kõiki

Sellel veebilehel kasutatakse küpsiseid. Kasutamist jätkates nõustute küpsiste kasutamisega.

Sulge
 
Minu pakkumine

Reeglid

Pakkumise kirjelduse väli on mõeldud pakkumise detailsemaks lahti kirjutamiseks. Pikema teksti mugavaks sisestamiseks klikkige kasti paremal ülaservas oleval ikoonil.
Pakkumist tehes on keelatud postitada enda kontaktandmeid (nimi, telefon, aadress jne). Me jälgime ja analüüsime pakkumisi, et vältida pettuseid ja reeglite rikkumisi.
Rikkumise puhul kasutajakonto blokeeritakse.