+ Lisa oma töö      

Otsid ehitajat "Projekteerimine" valdkonnast?

Parima pakkumise ja teostaja leidmiseks lisa oma töö.

Hange on lõppenud!

Võitjaks osutus kasutaja ID 42152

Korraldaja hinnang tehtud tööle

5.0
26.05.2021
Töökiirus: 12345
Kvaliteet: 12345
Hind: 12345

Pidin ise vaid paar digiallkirja panema. Kogu projektiga seotud kooskõlastamised ja registreerimised tehti ära. Töö kiire ja kvaliteetne - Siim S.

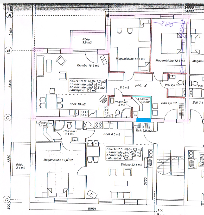
Kahe korteri ühendamiseks vajalik projekt (ukseava)

ID 56187

869 vaatamist

Prindi

  • check Pakkumiste tegemine
    kuni 06.02.2021
  • check Võitja valik kuni
    13.02.2021
  • 3 Töö teostamine
    ja hinnang
Hanke lõpp: L, 6. veebruar, 2021
Maakond: Tartumaa
Linn: Tartu
Tööde algus: E, 01. veebruar, 2021 (Soovituslik)
Tööde lõpp: E, 08. veebruar, 2021 (Soovituslik)
Ehitusmaterjalid: Töö tegija poolt
Soovin pakkumisi: Summa kogu projektile

Töö sisu

Projekteerida kahe korteri ühendamiseks kandvasse seina avavus (ca. 1200x2100). Tegemis on kolmekorruselise kivimajaga. Korterid asuvad teisel korrusel.

Pildid, video ja failid

Hanke korraldaja: eraisik ID59069

Pakkumised

Pakkumisi kokku: 1    

Ettevõte Summa Käibemaks Ettemaks Lisatud Vestlus
Private Crown ID42152 4.2 500,0 € Ei ole KMKR Ei ole KMKR Ei soovi 23.01.2021 Vestlus (2)

Ettevõtte lühiinfo (vaata täisprofiili ID42152 ) :

Firma nimi: ******************** ** ******* **
E-mail: **************************
Telefon: ********
Kontaktisik: ****** *******
Asukoht: ****** *** ******* ******* *** ***** ********
Käive: Andmed puuduvad
Töötajaid: Andmed puuduvad
Asutatud: 2013
MTR: Andmed puuduvad
Maksuvõlg: 176,79 € (seisuga 11.12.2025)

Keskmine hinnang:

4.2
Töökiirus: 12345
Kvaliteet: 12345
Hind: 12345

Hinnanguid: 229
Tehtud tööde pildid: 18

Pakkumise kirjeldus:

Ehitusprojekt eelprojekti staadiumis (arh-eh osa koos eriosadega)
Pakkumishind sisaldab:
Seletuskiri
Asendiskeem
Korruse plaan
Hoone lõige
Avatäidete joonised

Kooskõlastused ehitusteatise registreerimsieks
Ehitusteatise esitamine KOV
Ehitusteatise registreerimine KOV

Riigilõivuvaba

Küsimused hanke korraldajale

Küsimus: private ID52246   23.01.2021 15:08
Tere!

Kas soovite projekti, millega linnavalitsusest plaanitud tegevusele luba taotleda või tehnilist projekti, mille järgi on võimalik ava rajada?

Teavita reeglite rikkumisest

Korraldaja vastus: 23.01.2021 19:56

Tere!
Soov on saada mõlemad.

Teavita reeglite rikkumisest

Lisa küsimus

Lisa küsimus

Minu pakkumine

%

Reeglid

Pakkumise kirjelduse väli on mõeldud pakkumise detailsemaks lahti kirjutamiseks. Pikema teksti mugavaks sisestamiseks klikkige kasti paremal ülaservas oleval ikoonil.
Pakkumist tehes on keelatud postitada enda kontaktandmeid (nimi, telefon, aadress jne). Me jälgime ja analüüsime pakkumisi, et vältida pettuseid ja reeglite rikkumisi.
Rikkumise puhul kasutajakonto blokeeritakse.

 

Teisi töid samas valdkonnas

Valdkonnas "Projekteerimine" on 7 aktiivset tööd

no-img Pilt puudub

Abihoonete projekteerimine

Asukoht: Harjumaa, Jüri
Aega jäänud: 1p
Tehtud pakkumisi: 8

no-img Pilt puudub

Maja eelprojekt + ehitusloa taotluse esitamine

Asukoht: Ida-Virumaa
Aega jäänud: 7p
Tehtud pakkumisi: 8

Vanemad teated:

Vaata kõiki

Sellel veebilehel kasutatakse küpsiseid. Kasutamist jätkates nõustute küpsiste kasutamisega.

Sulge
 
Minu pakkumine
%

Reeglid

Pakkumise kirjelduse väli on mõeldud pakkumise detailsemaks lahti kirjutamiseks. Pikema teksti mugavaks sisestamiseks klikkige kasti paremal ülaservas oleval ikoonil.
Pakkumist tehes on keelatud postitada enda kontaktandmeid (nimi, telefon, aadress jne). Me jälgime ja analüüsime pakkumisi, et vältida pettuseid ja reeglite rikkumisi.
Rikkumise puhul kasutajakonto blokeeritakse.