+ Lisa oma töö      

Otsid ehitajat "Projekteerimine" valdkonnast?

Parima pakkumise ja teostaja leidmiseks lisa oma töö.

Kütteprojekt (põrandaküte) väiksele soojale suvilale

ID 55679

841 vaatamist

Prindi

  • check Pakkumiste tegemine
    kuni 21.12.2020
  • check Võitja valik kuni
    28.12.2020
  • 3 Töö teostamine
    ja hinnang
Hanke lõpp: E, 21. detsember, 2020
Maakond: Harjumaa
Linn: Saue
Muu asula: Laitse
Tööde algus: E, 21. detsember, 2020 (Soovituslik)
Tööde lõpp: E, 11. jaanuar, 2021
Ehitusmaterjalid: Töö tegija poolt
Soovin pakkumisi: Summa kogu projektile

Töö sisu

Tere!

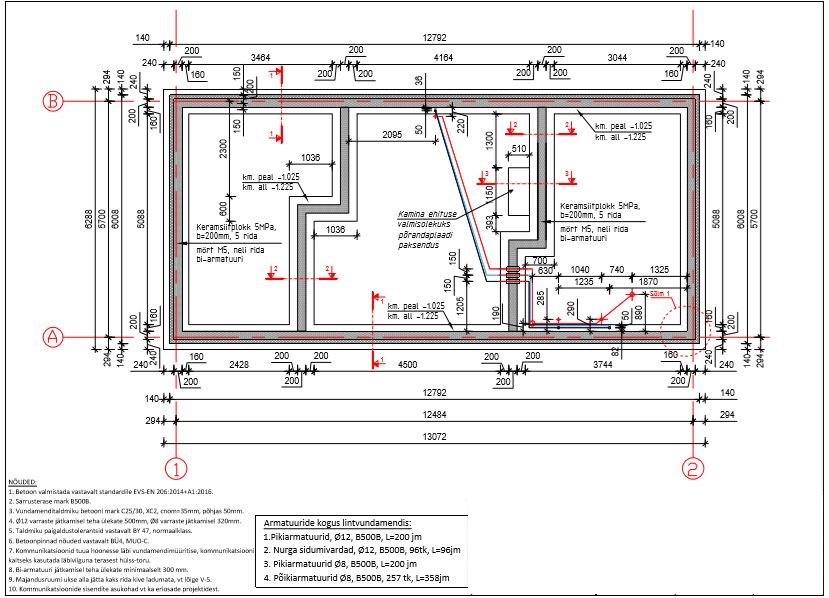
Alustame puitsuvila vundamendiga, ehitusalane pind jääb kuskil 80 m2. Köetav pind u. 75 m2 (esimene korrus). Plaani näidis manuses.

1,5 korrust, alumisel korrusel elutuba, 2 pisikest magamistuba, vannituba, pisike (arvatavasti infrapuna) saun. Teisel korrusel 1 magamistuba ja "raamatukogu".


Huvitaks õhk-vesi küte, põrandaküte (ilma radikateta). Teine korrus siis vist õhkpumbaga?


Otsin pakkumisi kütteprojektile (põhiprojekt)
DWG jooniseid annan :)

Pildid, video ja failid

Hanke korraldaja: ettevõte ID51357

Pakkumised

Pakkumisi kokku: 2

Ettevõte Summa Käibemaks Lisatud Vestlus
Kasutaja ikoon ID43451
Pakkuja profiil Väike nool paremale
400€ Sisaldab KM Sisaldab KM 14.12.2020 Vestlus (0)

Pakkumise kirjeldus:

Kütteprojekt.
Valmimise aeg jaanuar-veebruar.

Kasutaja ikoon ID56531
Pakkuja profiil Väike nool paremale
380€ Ei ole KMKR Ei ole KMKR 17.12.2020 Vestlus (0)

Pakkumise kirjeldus:

Tere

Käibemaksu pakutud hinnale ei lisandu. (380 eur). Vastutava spetsialisti allkiri on hinna sees. Ettemaksu ei soovi.

Hinnapakkumine sisaldab õhk-vesi soojuspumbaga kütte põhiprojekti (ning vajadusel teise korruse õhk-õhk soojuspumpade baasil). Pakkumine sisaldab küttekoormuste määramist, torustike ja seadmete dimensioneerimist ja projektee ... Rohkem

Küsimused hanke korraldajale

Hanke korraldajale ei ole veel küsimusi esitatud.

Lisa küsimus

Lisa küsimus

Minu pakkumine

Reeglid

Pakkumise kirjelduse väli on mõeldud pakkumise detailsemaks lahti kirjutamiseks. Pikema teksti mugavaks sisestamiseks klikkige kasti paremal ülaservas oleval ikoonil.
Pakkumist tehes on keelatud postitada enda kontaktandmeid (nimi, telefon, aadress jne). Me jälgime ja analüüsime pakkumisi, et vältida pettuseid ja reeglite rikkumisi.
Rikkumise puhul kasutajakonto blokeeritakse.

 

Teisi töid samas valdkonnas

Valdkonnas "Projekteerimine" on 7 aktiivset tööd

no-img Pilt puudub

1-kordse 120 m2 elumaja põhiprojekt

Asukoht: Harjumaa, Metsanurme
Aega jäänud: 8p 8h
Tehtud pakkumisi: 4

no-img Pilt puudub

Saunamaja eelprojekt ehitusteatiseks

Asukoht: Lääne-Virumaa
Aega jäänud: 1p 8h
Tehtud pakkumisi: 3

Vanemad teated:

Vaata kõiki

Sellel veebilehel kasutatakse küpsiseid. Kasutamist jätkates nõustute küpsiste kasutamisega.

Sulge
 
Minu pakkumine

Reeglid

Pakkumise kirjelduse väli on mõeldud pakkumise detailsemaks lahti kirjutamiseks. Pikema teksti mugavaks sisestamiseks klikkige kasti paremal ülaservas oleval ikoonil.
Pakkumist tehes on keelatud postitada enda kontaktandmeid (nimi, telefon, aadress jne). Me jälgime ja analüüsime pakkumisi, et vältida pettuseid ja reeglite rikkumisi.
Rikkumise puhul kasutajakonto blokeeritakse.