+ Lisa oma töö      

Otsid ehitajat "Projekteerimine" valdkonnast?

Parima pakkumise ja teostaja leidmiseks lisa oma töö.

Hange on lõppenud!

Võitjaks osutus kasutaja ID 42152

Korteri arhitektuurse projekti teostamine

ID 55249

580 vaatamist

Prindi

  • check Pakkumiste tegemine
    kuni 11.11.2020
  • check Võitja valik kuni
    11.11.2020
  • 3 Töö teostamine
    ja hinnang
Hanke lõpp: K, 11. november, 2020
Maakond: Harjumaa
Muu asula: Raasiku
Tööde algus: K, 11. november, 2020 (Soovituslik)
Tööde lõpp: N, 10. detsember, 2020 (Soovituslik)
Ehitusmaterjalid: Töö tegija poolt
Soovin pakkumisi: Summa kogu projektile

Töö sisu

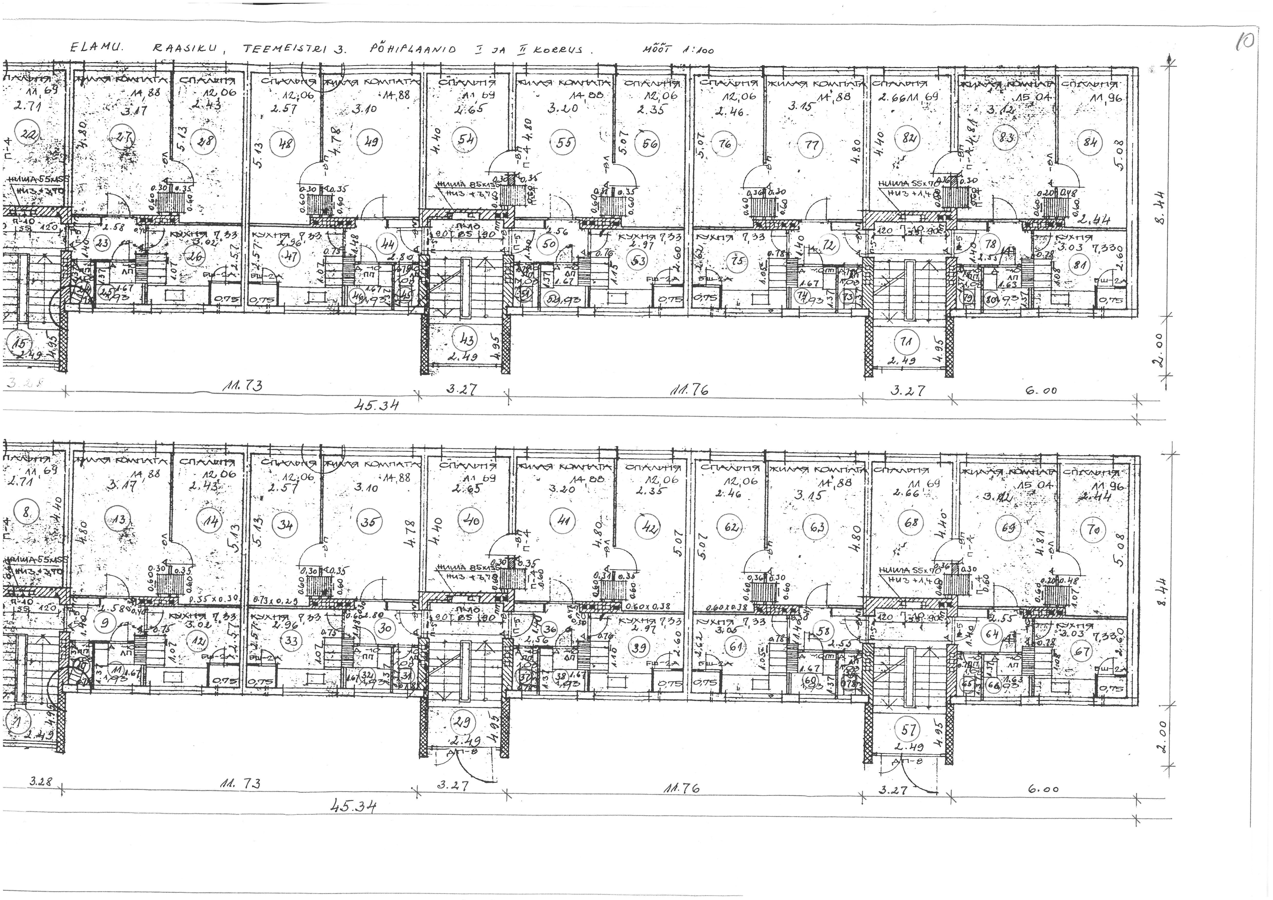
Vaja teostada renoveeritava korteri arhitektuurne eelprojekt ning põhiprojekt.
Tegemist on 2-toalise korteriga Raasikul, Harjumaal. Korteri pindala on 41,6 ruutmeetrit.

Töö sisaldab:
- Ühe korteri ümberehituse arhitektuurne projekt (eelprojekt, põhiprojekt),
- Ehitusteatise taotluse esitamine ehitisregistrisse,
- Kohaliku omavalitusega menetlusprotsessi läbiviimine (ehitusteatis).

Muudatused korteri planeeringus:
- WC ja vannitoa vahelise seina eemaldamine,
- Õhksoojuspumba võimaldamine korterisse,
- Muutuvad pliidi mõõtmed,
- Muutuvad ukseavade mõõtmed.

Kandvate konstruktisoonide muudatusi pole.

Peale ehitusteatise/loa väljastamist soovin, et antakse projekti dokumentatsioon üle digitaalselt: seletuskiri PDF ja joonised DWG formaadis.

Pildid, video ja failid

Hanke korraldaja: eraisik ID58113

Pakkumised

Pakkumisi kokku: 1

Ettevõte Summa Käibemaks Lisatud Vestlus
Kasutaja ikoon ID42152
Pakkuja profiil Väike nool paremale
350€ Ei ole KMKR Ei ole KMKR 10.11.2020 Vestlus (0)

Pakkumise kirjeldus:

Ehitusprojekt eelprojekti staadiumis (arh-eh osa koos eriosadega)
Pakkumishind sisaldab:
Seletuskiri
Asendiskeem
Korteri plaan
Avatäidete joonised
Jm asjakohased vajalikud joonised

Kooskõlastused ehitusteatise registreerimsieks
Ehitusteatise esitamine KOV
Ehitusteatise registreerimine KOV

Teostatud analoogseid projekte käesoleval aastal ligi ... Rohkem

Küsimused hanke korraldajale

Hanke korraldajale ei ole veel küsimusi esitatud.

Lisa küsimus

Lisa küsimus

Minu pakkumine

Reeglid

Pakkumise kirjelduse väli on mõeldud pakkumise detailsemaks lahti kirjutamiseks. Pikema teksti mugavaks sisestamiseks klikkige kasti paremal ülaservas oleval ikoonil.
Pakkumist tehes on keelatud postitada enda kontaktandmeid (nimi, telefon, aadress jne). Me jälgime ja analüüsime pakkumisi, et vältida pettuseid ja reeglite rikkumisi.
Rikkumise puhul kasutajakonto blokeeritakse.

 

Teisi töid samas valdkonnas

Valdkonnas "Projekteerimine" on 6 aktiivset tööd

no-img Pilt puudub

1-kordse 120 m2 elumaja põhiprojekt

Asukoht: Harjumaa, Metsanurme
Aega jäänud: 8p 14h
Tehtud pakkumisi: 4

no-img Pilt puudub

Saunamaja eelprojekt ehitusteatiseks

Asukoht: Lääne-Virumaa
Aega jäänud: 1p 14h
Tehtud pakkumisi: 3

Vanemad teated:

Vaata kõiki

Sellel veebilehel kasutatakse küpsiseid. Kasutamist jätkates nõustute küpsiste kasutamisega.

Sulge
 
Minu pakkumine

Reeglid

Pakkumise kirjelduse väli on mõeldud pakkumise detailsemaks lahti kirjutamiseks. Pikema teksti mugavaks sisestamiseks klikkige kasti paremal ülaservas oleval ikoonil.
Pakkumist tehes on keelatud postitada enda kontaktandmeid (nimi, telefon, aadress jne). Me jälgime ja analüüsime pakkumisi, et vältida pettuseid ja reeglite rikkumisi.
Rikkumise puhul kasutajakonto blokeeritakse.