+ Lisa oma töö      

Otsid ehitajat "Ehitusprojektid" valdkonnast?

Parima pakkumise ja teostaja leidmiseks lisa oma töö.

Hange on lõppenud!

Võitjaks osutus kasutaja ID 42152

Korraldaja hinnang tehtud tööle

2.7
12.05.2021
Töökiirus: 12345
Kvaliteet: 12345
Hind: 12345

Korteri planeeringu muutmise eelprojekti koostamine

ID 54658

989 vaatamist

Prindi

  • check Pakkumiste tegemine
    kuni 12.10.2020
  • check Võitja valik kuni
    12.10.2020
  • 3 Töö teostamine
    ja hinnang
Hanke lõpp: E, 12. oktoober, 2020
Maakond: Harjumaa
Linn: Tallinn
Tööde algus: E, 12. oktoober, 2020 (Soovituslik)
Tööde lõpp: P, 18. oktoober, 2020 (Soovituslik)
Ehitusmaterjalid: Töö tegija poolt
Soovin pakkumisi: Summa kogu projektile

Töö sisu

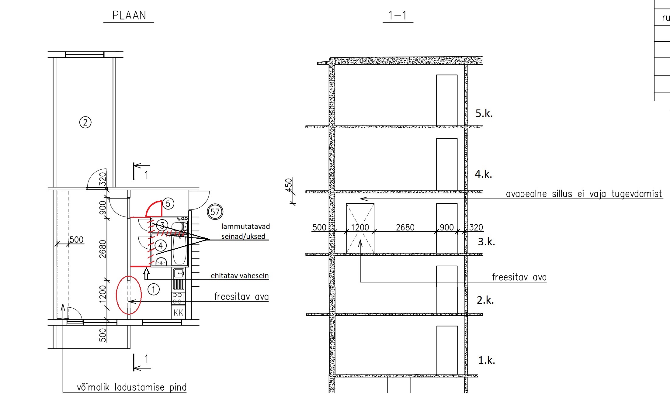
Tegemist on 5-kordses paneelelamus asuva kahetoalise korteriga Tallinnas Kristiine rajoonis. 3. korrus. Läbi maja planeering.

Vaja oleks koostada eelprojekt ehitusteatise jaoks.

Planeeringu muudatus peaks sisaldama:

1. Köögi ja elutoa vahelisse seina 1200mm laiuse ava lõikamist
2. WC, vannitoa ning kööki suubuva esiku kokku ühendamist üheks suureks vannitoaks.

Pildid, video ja failid

Hanke korraldaja: eraisik ID46549

Pakkumised

Pakkumisi kokku: 1

Ettevõte Summa Käibemaks Lisatud Vestlus
Kasutaja ikoon ID42152
Pakkuja profiil Väike nool paremale
350€ Ei ole KMKR Ei ole KMKR 09.10.2020 Vestlus (1)

Pakkumise kirjeldus:

Ehitusprojekt korteri ümberehituseks eelprojekti staadiumis (arh-eh osa koos eriosadega)
PAkkumishind sisaldab:
Seletuskiri
Asendiskeem
Korruse plaan
Korteri plaan
Avatäidete joonised

Kooskõlastused ehitusteatise registreerimsieks
Ehitusteatise esitamine KOV
Ehitusteatise registreerimine KOV

Riigilõivuvaba

Analoogseid töid teostatud kä ... Rohkem

Küsimused hanke korraldajale

Hanke korraldajale ei ole veel küsimusi esitatud.

Lisa küsimus

Lisa küsimus

Minu pakkumine

Reeglid

Pakkumise kirjelduse väli on mõeldud pakkumise detailsemaks lahti kirjutamiseks. Pikema teksti mugavaks sisestamiseks klikkige kasti paremal ülaservas oleval ikoonil.
Pakkumist tehes on keelatud postitada enda kontaktandmeid (nimi, telefon, aadress jne). Me jälgime ja analüüsime pakkumisi, et vältida pettuseid ja reeglite rikkumisi.
Rikkumise puhul kasutajakonto blokeeritakse.

 

Teisi töid samas valdkonnas

Valdkonnas "Ehitusprojektid" on 6 aktiivset tööd

no-img Pilt puudub

Maja projekt

Asukoht: Tartumaa, Elva
Aega jäänud: 2p 1h
Tehtud pakkumisi: 11

no-img Pilt puudub

Maja eelprojekt koos ehitusloa taotlusega

Asukoht: Harjumaa, Laulasmaa
Aega jäänud: 5p 1h
Tehtud pakkumisi: 8

Vanemad teated:

Vaata kõiki

Sellel veebilehel kasutatakse küpsiseid. Kasutamist jätkates nõustute küpsiste kasutamisega.

Sulge
 
Minu pakkumine

Reeglid

Pakkumise kirjelduse väli on mõeldud pakkumise detailsemaks lahti kirjutamiseks. Pikema teksti mugavaks sisestamiseks klikkige kasti paremal ülaservas oleval ikoonil.
Pakkumist tehes on keelatud postitada enda kontaktandmeid (nimi, telefon, aadress jne). Me jälgime ja analüüsime pakkumisi, et vältida pettuseid ja reeglite rikkumisi.
Rikkumise puhul kasutajakonto blokeeritakse.