+ Lisa oma töö      

Otsid ehitajat "Projekteerimine" valdkonnast?

Parima pakkumise ja teostaja leidmiseks lisa oma töö.

Kütte- ja ventilatsiooni projekt

ID 53334

839 vaatamist

Prindi

  • check Pakkumiste tegemine
    kuni 10.08.2020
  • check Võitja valik kuni
    17.08.2020
  • 3 Töö teostamine
    ja hinnang
Hanke lõpp: E, 10. august, 2020
Maakond: Harjumaa
Tööde algus: E, 17. august, 2020 (Kohustuslik)
Tööde lõpp: E, 31. august, 2020 (Soovituslik)
Ehitusmaterjalid: Töö tegija poolt
Soovin pakkumisi: Summa kogu projektile

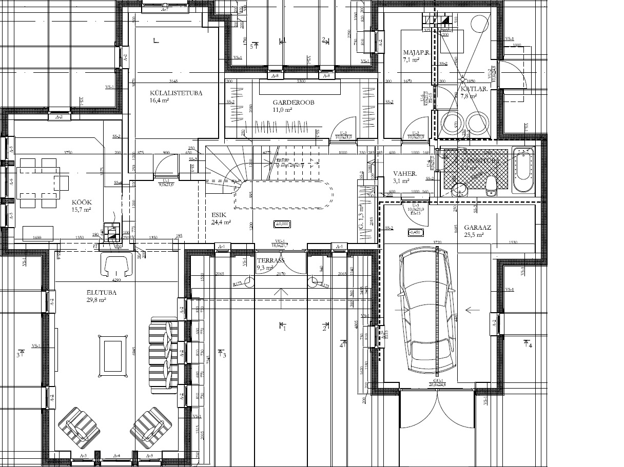
Töö sisu

Soovin tellida eramajale kütte- ja ventilatsiooni projekti põhiprojekti mahus.
Plaanid lisatud hankele.

Esimesel korrusel põrandaküte ja teisel korrusel põranadaküte/radiaatorid. Maasoojuspump, soojustagastusega vent. Elutuppa on ettenähtud lisa/alternatiivse soojusallikana kamin.

Kui pakkumise tegemiseks on vaja täpsustavat lisainfot, siis esitage palun küsimused küsimustiku väljal.

Pildid, video ja failid

Hanke korraldaja: eraisik ID26211

Pakkumised

Pakkumisi kokku: 2

Ettevõte Summa Käibemaks Lisatud Vestlus
Kasutaja ikoon ID40716
Pakkuja profiil Väike nool paremale
1 750€ KM lisandub KM lisandub 09.08.2020 Vestlus (0)

Pakkumise kirjeldus:

Hinnapakkumine sisaldab soojustagastusega ventilatsiooni, küttesüsteemi ja põrandkütte sõlme/seadme valimise projekti põhiprojekti mahus. Projekt sisaldab soojakadude arvutamist, õhuhulkade määramist, torustike dimensioneerimist, õhujagajate ja küttekehade valimist, soojuspumba ja vent.seadme valimist, korruse plaanide joonestamist ja seletuskirja ... Rohkem

Kasutaja ikoon ID56531
Pakkuja profiil Väike nool paremale
1 250€ Ei ole KMKR Ei ole KMKR 09.08.2020 Vestlus (0)

Pakkumise kirjeldus:

Tere

Käibemaksu pakutud hinnale ei lisandu.

Hinnapakkumine sisaldab soojustagastusega ventilatsiooni ning maasoojuspumbaga kütte põhiprojekti. Pakkumine sisaldab õhuvahetuse/küttekoormuste määramist, torustike ja õhujagajate dimensioneerimist ja projekteerimist, vent.seadme/maasoojuspumba valimist, seletuskirja ja põhiseadmete spetsifikatsioon ... Rohkem

Küsimused hanke korraldajale

Küsimus: private ID56531   02.08.2020 13:17
1. Kas on olemas hoone plaanid/vaated dwg kujul?
2. Kas on olemas hoone arhitektuurne projekt välispiirete soojusjuhtivustega?
3. Kas kütte osas peab olema lahendatud ainult hoonesisene osa või peab olema lahendatud samuti maakollektori hooneväline osa? Kas on olemas siis vajalik geoalus?
4. Kamina paigaldamise projekteerimine ei ole tehnosüsteemide projekti osa. (mainin seda igaks juhuks)

Teavita reeglite rikkumisest

Korraldaja vastus: 03.08.2020 09:41

Tere
1. Korruste plaanid, vaated, läbilõiked on .dwg kujul olemas.
2. Selle osas jään vastuse osas vist natuke ebatäpseks. Kirjeldatud on, kui palju tuleb soojustust panna, antud U väärtused ja arvutatud võimalik ernergiaklass.
3. Esmavajalik on siiski hoonesisene osa. Võib jääda nii, et välise osa osas lepime tegemise täiendavalt kokku ja seda ei pea hetkel pakkumises kajastama. Geolaus on olemas.
4. Selge, arusaadav.

Parimate soovidega

Teavita reeglite rikkumisest

Küsimus: private ID56531   03.08.2020 09:48
Tere
Tänan vastuse eest!
Kõik vajalik info projekteerimise teostamiseks ja hinnapakkumise esitamiseks on olemas.

Teavita reeglite rikkumisest

Korraldaja vastus: 03.08.2020 09:57

Ok, tore :-)

Teavita reeglite rikkumisest

Lisa küsimus

Lisa küsimus

Minu pakkumine

Reeglid

Pakkumise kirjelduse väli on mõeldud pakkumise detailsemaks lahti kirjutamiseks. Pikema teksti mugavaks sisestamiseks klikkige kasti paremal ülaservas oleval ikoonil.
Pakkumist tehes on keelatud postitada enda kontaktandmeid (nimi, telefon, aadress jne). Me jälgime ja analüüsime pakkumisi, et vältida pettuseid ja reeglite rikkumisi.
Rikkumise puhul kasutajakonto blokeeritakse.

 

Teisi töid samas valdkonnas

Valdkonnas "Projekteerimine" on 6 aktiivset tööd

no-img Pilt puudub

1-kordse 120 m2 elumaja põhiprojekt

Asukoht: Harjumaa, Metsanurme
Aega jäänud: 8p 16h
Tehtud pakkumisi: 4

no-img Pilt puudub

Saunamaja eelprojekt ehitusteatiseks

Asukoht: Lääne-Virumaa
Aega jäänud: 1p 16h
Tehtud pakkumisi: 3

Vanemad teated:

Vaata kõiki

Sellel veebilehel kasutatakse küpsiseid. Kasutamist jätkates nõustute küpsiste kasutamisega.

Sulge
 
Minu pakkumine

Reeglid

Pakkumise kirjelduse väli on mõeldud pakkumise detailsemaks lahti kirjutamiseks. Pikema teksti mugavaks sisestamiseks klikkige kasti paremal ülaservas oleval ikoonil.
Pakkumist tehes on keelatud postitada enda kontaktandmeid (nimi, telefon, aadress jne). Me jälgime ja analüüsime pakkumisi, et vältida pettuseid ja reeglite rikkumisi.
Rikkumise puhul kasutajakonto blokeeritakse.