+ Lisa oma töö      

Otsid ehitajat "Projekteerimine" valdkonnast?

Parima pakkumise ja teostaja leidmiseks lisa oma töö.

Vee- ja kanalisatsiooniprojekt

ID 51664

988 vaatamist

Prindi

  • check Pakkumiste tegemine
    kuni 26.05.2020
  • check Võitja valik kuni
    02.06.2020
  • 3 Töö teostamine
    ja hinnang
Hanke lõpp: T, 26. mai, 2020
Maakond: Läänemaa
Tööde algus: R, 15. mai, 2020 (Soovituslik)
Tööde lõpp: L, 30. mai, 2020 (Soovituslik)
Ehitusmaterjalid: Töö tegija poolt
Soovin pakkumisi: Summa kogu projektile

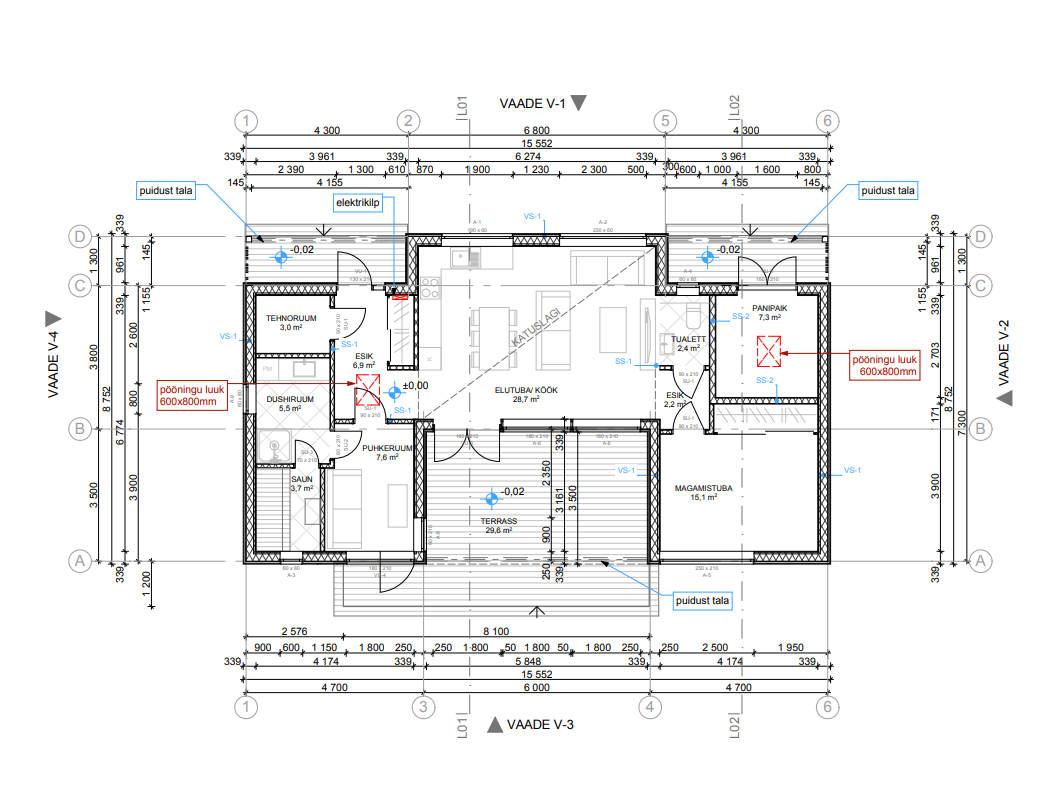
Töö sisu

Vee ja kanalisatsiooniprojekt suvemajale
- 1- kordne
- 82,5 m2
- plaatvundament, põrandaküte
- vesi puurkaevust (puurkaevu projekt ei kuulu hankesse)
- biopuhasti

Pildid, video ja failid

Hanke korraldaja: eraisik ID54420

Pakkumised

Pakkumisi kokku: 2

Ettevõte Summa Käibemaks Lisatud Vestlus
Kasutaja ikoon ID52470
Pakkuja profiil Väike nool paremale
1 150€ Ei ole KMKR Ei ole KMKR 26.05.2020 Vestlus (0)

Pakkumise kirjeldus:

Hinnapakkumine sisaldab suvemaja veevarustuse ja kanalisatsiooni sisetrasside põhiprojekti. Pakkumine sisaldab torustike dimensioneerimist, biopuhasti valikut, korralikku seletuskirja ja spetsifikatsiooni. Projekteeritakse vastavalt veevärgi tehnilistele nõuetele.

Orienteeruv teostamise aeg 2-3 nädalat peale hanke võitjaks kuulutamist ja vajalike alu ... Rohkem

Kasutaja ikoon ID48870
Pakkuja profiil Väike nool paremale
1 050€ Ikoon kell Ei ole KMKR Ei ole KMKR 26.05.2020 Vestlus (0)

Pakkumise kirjeldus:

Tere,
Pakume veevarustuse ja kanalisatsiooni projekteerimist, ei a geodeetlise aluplaani.

Küsimused hanke korraldajale

Hanke korraldajale ei ole veel küsimusi esitatud.

Lisa küsimus

Lisa küsimus

Minu pakkumine

Reeglid

Pakkumise kirjelduse väli on mõeldud pakkumise detailsemaks lahti kirjutamiseks. Pikema teksti mugavaks sisestamiseks klikkige kasti paremal ülaservas oleval ikoonil.
Pakkumist tehes on keelatud postitada enda kontaktandmeid (nimi, telefon, aadress jne). Me jälgime ja analüüsime pakkumisi, et vältida pettuseid ja reeglite rikkumisi.
Rikkumise puhul kasutajakonto blokeeritakse.

 

Teisi töid samas valdkonnas

Valdkonnas "Projekteerimine" on 7 aktiivset tööd

no-img Pilt puudub

1-kordse 120 m2 elumaja põhiprojekt

Asukoht: Harjumaa, Metsanurme
Aega jäänud: 8p 10h
Tehtud pakkumisi: 4

no-img Pilt puudub

Saunamaja eelprojekt ehitusteatiseks

Asukoht: Lääne-Virumaa
Aega jäänud: 1p 10h
Tehtud pakkumisi: 3

Vanemad teated:

Vaata kõiki

Sellel veebilehel kasutatakse küpsiseid. Kasutamist jätkates nõustute küpsiste kasutamisega.

Sulge
 
Minu pakkumine

Reeglid

Pakkumise kirjelduse väli on mõeldud pakkumise detailsemaks lahti kirjutamiseks. Pikema teksti mugavaks sisestamiseks klikkige kasti paremal ülaservas oleval ikoonil.
Pakkumist tehes on keelatud postitada enda kontaktandmeid (nimi, telefon, aadress jne). Me jälgime ja analüüsime pakkumisi, et vältida pettuseid ja reeglite rikkumisi.
Rikkumise puhul kasutajakonto blokeeritakse.