+ Lisa oma töö      

Otsid ehitajat "Projekteerimine" valdkonnast?

Parima pakkumise ja teostaja leidmiseks lisa oma töö.

Hange on lõppenud!

Võitjaks osutus kasutaja ID 31470

Korraldaja hinnang tehtud tööle

5.0
08.06.2020
Töökiirus: 12345
Kvaliteet: 12345
Hind: 12345

Kiire ja kvaliteetne töön, soovitan. - Rein P.

Elektriprojekt majale

ID 51663

1259 vaatamist

Prindi

  • check Pakkumiste tegemine
    kuni 13.05.2020
  • check Võitja valik kuni
    13.05.2020
  • 3 Töö teostamine
    ja hinnang
Hanke lõpp: K, 13. mai, 2020
Maakond: Läänemaa
Tööde algus: R, 15. mai, 2020 (Soovituslik)
Tööde lõpp: L, 30. mai, 2020 (Soovituslik)
Ehitusmaterjalid: Töö tegija poolt
Soovin pakkumisi: Summa kogu projektile

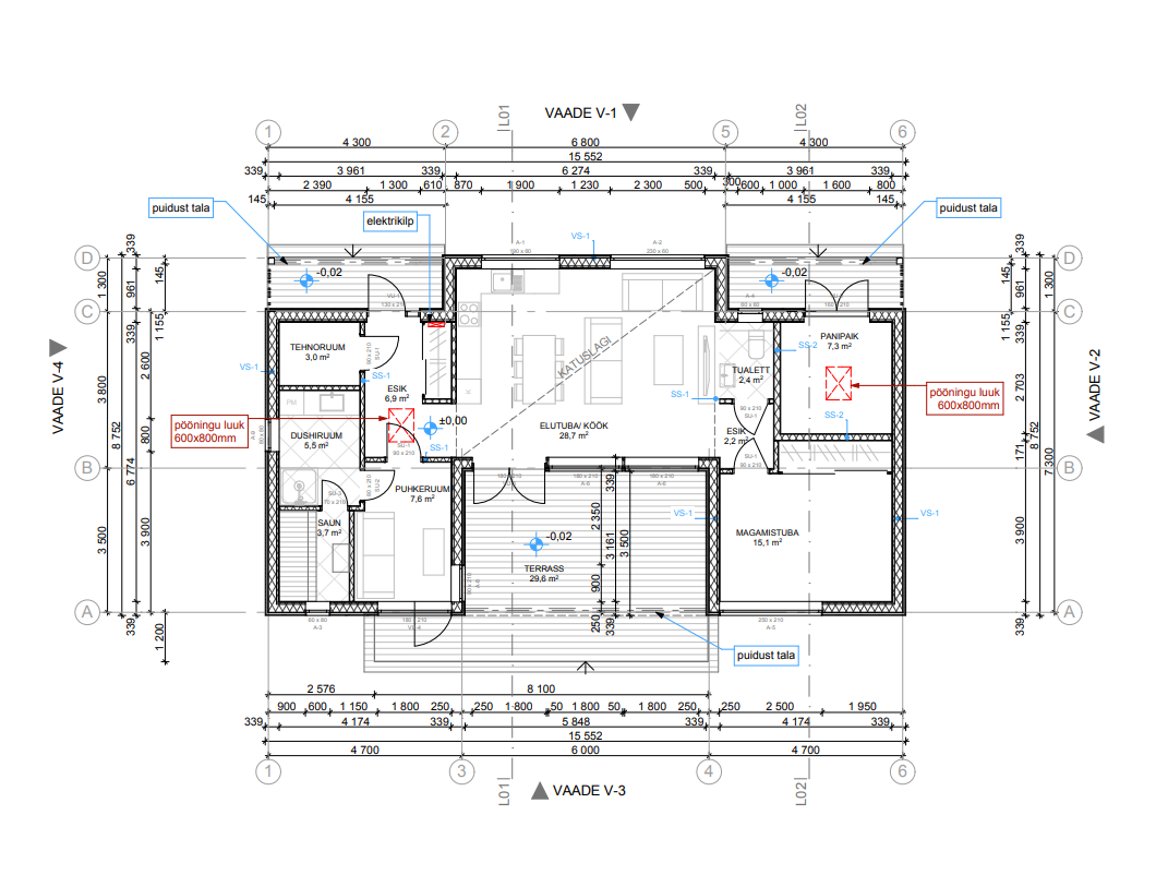
Töö sisu

Elektriprojekti koostamine suvemajale
- 1-kordne
- üldpind 82,5 m2
- uusehitis

Pildid, video ja failid

Hanke korraldaja: eraisik ID54420

Pakkumised

Pakkumisi kokku: 2

Ettevõte Summa Käibemaks Lisatud Vestlus
Kasutaja ikoon ID31470
Pakkuja profiil Väike nool paremale
200€ Sisaldab KM Sisaldab KM 12.05.2020 Vestlus (0)

Pakkumise kirjeldus:

Tere, teeme pakkumise antud hoone tugevvoolupaigaldise põhiprojekti koostamiseks. Kui osutume hanke võitjaks, vajame Teilt hoone korruseplaane DWG kujul ning visandeid, kuhu sooviksite valgusteid, lüliteid, pistikupesi ning kus hakkavad paiknema peamised seadmed (nt soojuspumbad, vent seade jms). Peale selle info saamist, saame pakkuda töö teostamise aj ... Rohkem

Kasutaja ikoon ID54768
Pakkuja profiil Väike nool paremale
180€ KM lisandub KM lisandub 13.05.2020 Vestlus (0)

Küsimused hanke korraldajale

Hanke korraldajale ei ole veel küsimusi esitatud.

Lisa küsimus

Lisa küsimus

Minu pakkumine

Reeglid

Pakkumise kirjelduse väli on mõeldud pakkumise detailsemaks lahti kirjutamiseks. Pikema teksti mugavaks sisestamiseks klikkige kasti paremal ülaservas oleval ikoonil.
Pakkumist tehes on keelatud postitada enda kontaktandmeid (nimi, telefon, aadress jne). Me jälgime ja analüüsime pakkumisi, et vältida pettuseid ja reeglite rikkumisi.
Rikkumise puhul kasutajakonto blokeeritakse.

 

Teisi töid samas valdkonnas

Valdkonnas "Projekteerimine" on 6 aktiivset tööd

no-img Pilt puudub

1-kordse 120 m2 elumaja põhiprojekt

Asukoht: Harjumaa, Metsanurme
Aega jäänud: 8p 17h
Tehtud pakkumisi: 4

no-img Pilt puudub

Saunamaja eelprojekt ehitusteatiseks

Asukoht: Lääne-Virumaa
Aega jäänud: 1p 17h
Tehtud pakkumisi: 3

Vanemad teated:

Vaata kõiki

Sellel veebilehel kasutatakse küpsiseid. Kasutamist jätkates nõustute küpsiste kasutamisega.

Sulge
 
Minu pakkumine

Reeglid

Pakkumise kirjelduse väli on mõeldud pakkumise detailsemaks lahti kirjutamiseks. Pikema teksti mugavaks sisestamiseks klikkige kasti paremal ülaservas oleval ikoonil.
Pakkumist tehes on keelatud postitada enda kontaktandmeid (nimi, telefon, aadress jne). Me jälgime ja analüüsime pakkumisi, et vältida pettuseid ja reeglite rikkumisi.
Rikkumise puhul kasutajakonto blokeeritakse.