+ Lisa oma töö      

Otsid ehitajat "Projekteerimine" valdkonnast?

Parima pakkumise ja teostaja leidmiseks lisa oma töö.

Eramu põhiprojekt+ eriosade projektid

ID 51408

1952 vaatamist

Prindi

  • check Pakkumiste tegemine
    kuni 18.05.2020
  • check Võitja valik kuni
    25.05.2020
  • 3 Töö teostamine
    ja hinnang
Hanke lõpp: E, 18. mai, 2020
Maakond: Tartumaa
Muu asula: Luunja vald
Tööde algus: E, 04. mai, 2020 (Soovituslik)
Tööde lõpp: P, 17. mai, 2020 (Soovituslik)
Ehitusmaterjalid: Töö tellija poolt
Soovin pakkumisi: Summa kogu projektile

Töö sisu

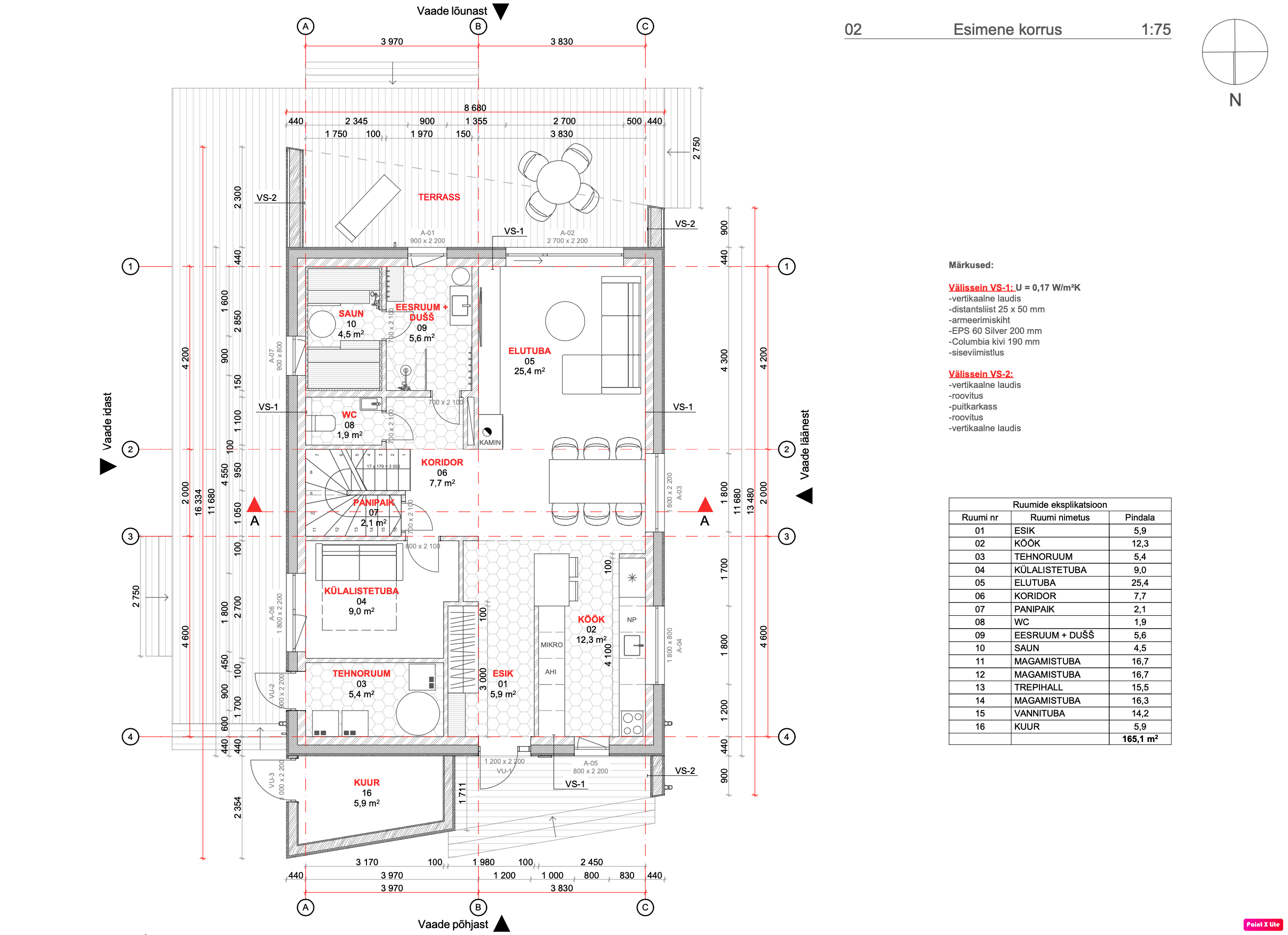
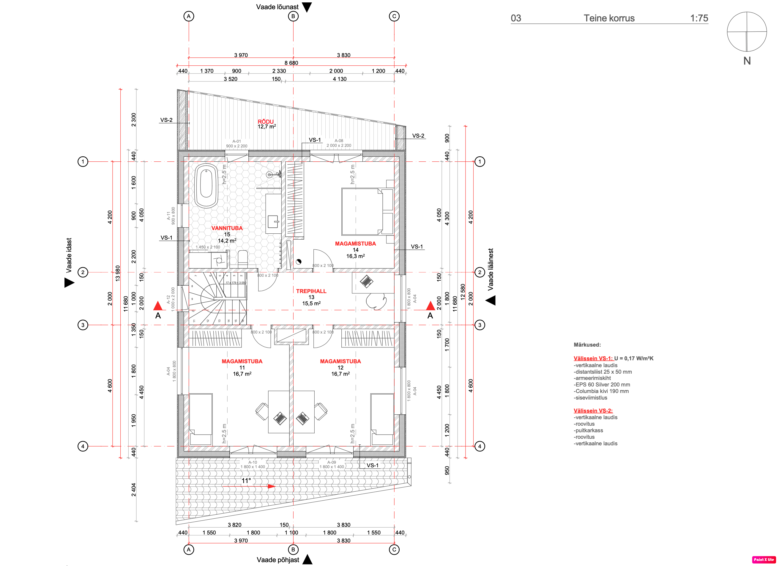
Soovin olemasoleva arhitektuurse eelprojekti põhjal põhiprojekti koostamist. Lisaks eelprojektile on olemas ehitusluba ja energiamärgis (ETA 119 kWh/m2 - A) . Hoone suletud netopind 165,1 m2, köetav pind 159,2 m2, ehitisealune pind 129,4 m2.

Lisaks põpiprojektile soovin saada ka pakkumist eriosadele:

• elektrisüsteemi põhiprojekt
• vee- ja kanalisatsiooni põhiprojekt (välisosa + siseosa)
• kütte põhiprojekt (maaküte + vesipõrandaküte)
• ventilatsiooni põhiprojekt (projektiga on ette nähtud rootorsoojusvahetiga ventilatsiooniseade)

Projekteeritud hoone on kahekorruseline ja viilkatusega. Hoonele rajatakse raudbetoonist plaatvundament, mis soojustatakse EPS soojustusplaatidega ja kaetakse väljast sokliosas õhekrohvsüsteemiga. Vundament tuleb rajada selliselt, et radoonitõkkekilest oleks võimalikult vähe läbiviike (elektrikaableid tagasitäitesse ei ole soovitav lisada).

Hoone välisseinad rajatakse õõnesplokkidest Columbia kivi 190 mm, mis kaetakse väljast EPS 60 Silver 200 mm ning vertikaalse laudisega. Siseseinad laotakse väikeplokkidest paksusega 100 ja 150 mm. Katuse kandvaks tarindiks on puittalastik, mis kaetakse tasapinnalise betoonist katusekiviga. Vahelagi rajatakse õõnespaneelidest.

Pakkumises palun välja tuua ka projekti orienteeruv valmimise tähtaeg.

Pildid, video ja failid

Hanke korraldaja: eraisik ID54704

Pakkumised

Pakkumisi kokku: 3

Ettevõte Summa Käibemaks Lisatud Vestlus
Kasutaja ikoon ID46491
Pakkuja profiil Väike nool paremale
4 850€ Sisaldab KM Sisaldab KM 29.04.2020 Vestlus (0)

Pakkumise kirjeldus:

Tere
Meie hinnas on konstruktiivne põhiprojekt eraldi hinnaga 2000 eur
elektrisüsteemi põhiprojekt hinnaga 750 eur
vee- ja kanalisatsiooni põhiprojekt (välisosa + siseosa) hinnaga 900 eur
kütte põhiprojekt (maaküte + vesipõrandaküte) hinnaga 800 eur
ventilatsiooni põhiprojekt (projektiga on ette nähtud rootorsoojusvahetiga ventilatsioonisead ... Rohkem

Kasutaja ikoon ID43451
Pakkuja profiil Väike nool paremale
4 575€ Sisaldab KM Sisaldab KM 05.05.2020 Vestlus (0)

Pakkumise kirjeldus:

Pakkumine ei sisalda geoalust ega muid uuringuid .
Pakkumine sisaldab Elektrisüsteemi põhiprojekt
Vee- ja kanalisatsiooni põhiprojekt
Kütte põhiprojekt
Ventilatsiooni põhiprojekt
Konstruktiivne põhiprojekt sisaldab
-Vundamendi plaan
-1. korruse plaan, kandvad seinad
-2. korruse plaan, kandvad seinad
-Õõnespaneelide plaan
-Sarika plaan
-k ... Rohkem

Kasutaja ikoon ID28768
Pakkuja profiil Väike nool paremale
2 350€ Ei ole KMKR Ei ole KMKR 06.05.2020 Vestlus (0)

Pakkumise kirjeldus:

Tere,

Hind sisaldab veevarustuse, olmekanalisatsiooni, kütte ja ventilatsiooni sisevõrkude projekti ning veevarustuse ja olmekanalisatsiooni välisvõrgu projekti.
Välisvõrgu projekti hinnapakkumise koostamisel on eeldatud, et tänavatrass on kinnistu ees olemas.

Kõik projektid põhiprojekti staadiumis.

Hind ei sisalda geoloogilisi uuringuid, ... Rohkem

Küsimused hanke korraldajale

Küsimus: private ID44908   29.04.2020 09:11
Tere!

Mis formaadis on eelprojekt: dwg, rvt, ifc, pln? Või on projekt ainult pdf-is?

Teavita reeglite rikkumisest

Korraldaja vastus: 29.04.2020 09:14

Tere!

Eelprojekt on olemas ka .dwg formaadis, mille vormistus ei ole ehk kõige parem, kuid kõik vajaliku info saab kätte.

Teavita reeglite rikkumisest

Küsimus: private ID43451   29.04.2020 12:25
Tere

Kas soovitakse arhitektuurset või konstruktiivset põhiprojekti? Kuidas hakkab olema vesi ja kanalisatsioon? Kas liitumine tsentraalse võrguga või lokaalne mahuti ja veesüsteem?

Teavita reeglite rikkumisest

Korraldaja vastus: 29.04.2020 13:17

Põhiprojekti alla pidasin silmas konstruktsioonide põhiprojekti, mis hõlmab ka vundamendi, vahelae, katuse jne olulisemaid sõlmi. Vesi ja kanalisatsioon on tsentraalsed.

Teavita reeglite rikkumisest

Küsimus: private ID28768   30.04.2020 08:38
Tere,

Kas oleks võimalik teha pakkumust ainult eriosade projektile (veevarustus, kanalisatsioon nii sise- kui välisosa), küte ja ventilatsioon?

Teavita reeglite rikkumisest

Korraldaja vastus: 30.04.2020 21:42

Kui hange.ee tingimused lubavad, et pakkumine ei vasta täies mahus tööde kirjeldusele, võite teha pakkumuse ka ainult eriosadele. Kasutan hange.ee keskkonda esmakordselt ning ei tea, et kui hange splittida, kuidas peaks toimuma hanke võitja valimine?

Teavita reeglite rikkumisest

Küsimus: private ID28768   04.05.2020 11:40
Tere,

Kas oleks võimalik saada rohkem infot veevarustuse ja kanalisatsiooni välisosa projekti lähteandmete kohta?

Teavita reeglite rikkumisest

Korraldaja vastus: 04.05.2020 12:32

Detailplaneeringust ja eelprojektist leidsin veevarustuse ja väliskanalisatsiooni kohta järgmise info:
Veevarustus - elamukruntide veevarustuseks on olemas puurkaev. Kinnistu veevarustus on lahendatud ühisveevärgi torustiku baasil. Veetorustik asub tänavate all. Torustiku läbiviigud sokli konstruktsioonist antakse ehituskonstruktsioonide projektis.
Väliskanalisatsioon - Kinnistul kogutavad olmeheitveed kanaliseeritakse reoveekanalisatsioonitorustiku baasil biopuhastisse. Kanalisatsioonitorustik asub tänavate all.

Teavita reeglite rikkumisest

Lisa küsimus

Lisa küsimus

Minu pakkumine

Reeglid

Pakkumise kirjelduse väli on mõeldud pakkumise detailsemaks lahti kirjutamiseks. Pikema teksti mugavaks sisestamiseks klikkige kasti paremal ülaservas oleval ikoonil.
Pakkumist tehes on keelatud postitada enda kontaktandmeid (nimi, telefon, aadress jne). Me jälgime ja analüüsime pakkumisi, et vältida pettuseid ja reeglite rikkumisi.
Rikkumise puhul kasutajakonto blokeeritakse.

 

Teisi töid samas valdkonnas

Valdkonnas "Projekteerimine" on 6 aktiivset tööd

no-img Pilt puudub

1-kordse 120 m2 elumaja põhiprojekt

Asukoht: Harjumaa, Metsanurme
Aega jäänud: 8p 12h
Tehtud pakkumisi: 4

no-img Pilt puudub

Saunamaja eelprojekt ehitusteatiseks

Asukoht: Lääne-Virumaa
Aega jäänud: 1p 12h
Tehtud pakkumisi: 3

Vanemad teated:

Vaata kõiki

Sellel veebilehel kasutatakse küpsiseid. Kasutamist jätkates nõustute küpsiste kasutamisega.

Sulge
 
Minu pakkumine

Reeglid

Pakkumise kirjelduse väli on mõeldud pakkumise detailsemaks lahti kirjutamiseks. Pikema teksti mugavaks sisestamiseks klikkige kasti paremal ülaservas oleval ikoonil.
Pakkumist tehes on keelatud postitada enda kontaktandmeid (nimi, telefon, aadress jne). Me jälgime ja analüüsime pakkumisi, et vältida pettuseid ja reeglite rikkumisi.
Rikkumise puhul kasutajakonto blokeeritakse.