+ Lisa oma töö      

Otsid ehitajat "Ehitusprojektid" valdkonnast?

Parima pakkumise ja teostaja leidmiseks lisa oma töö.

Hange on lõppenud!

Võitjaks osutus kasutaja ID 42152

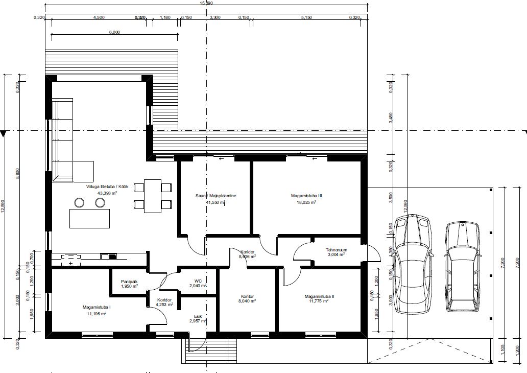
Eramaja eelprojekt

ID 51297

896 vaatamist

Prindi

  • check Pakkumiste tegemine
    kuni 06.05.2020
  • check Võitja valik kuni
    06.05.2020
  • 3 Töö teostamine
    ja hinnang
Hanke lõpp: K, 6. mai, 2020
Maakond: Raplamaa
Muu asula: Kohila
Tööde algus: R, 01. mai, 2020 (Soovituslik)
Tööde lõpp: L, 30. mai, 2020 (Soovituslik)
Ehitusmaterjalid: Töö tegija poolt
Soovin pakkumisi: Summa kogu projektile

Töö sisu

Soov olemasolevast eskiisjoonistest kergete muudatustega vormistada lõpuni eelprojekt koos kooskõlastuste, energiamärgise ning ehitusloa taotlemisega (Kohila vald).
Lisaks on soov eriosade projekteerimisele (vesi ja kanalisatsioon, küte, vent, elekter) - tehke palun pakkumised eraldi kommentaarina.
Eramu planeeritud ~120m2 elupinnaga ühe korruseline puitkonstruktsioonil (NorgesHus) tehasemaja.

Olemas on:
*projekteerimistingimused/kehtiv detailplaneering (PT taotletud/väljastatud 2020)
*topogeodeetilised uuringud (2020)
*eskiisjoonised dwg formaadis koos mõõtude, lõigete, vaadete ning visuaalsete rendertustega

Pildid, video ja failid

Hanke korraldaja: eraisik ID22407

Pakkumised

Pakkumisi kokku: 2

Ettevõte Summa Käibemaks Lisatud Vestlus
Kasutaja ikoon ID42152
Pakkuja profiil Väike nool paremale
1 185€ Ei ole KMKR Ei ole KMKR 23.04.2020 Vestlus (4)

Pakkumise kirjeldus:

Ehitusprojekt eelprojekti staadiumis (arh-eh osa koos eriosadega)
PAkkumishind sisaldab:
Seletuskiri
Energiamärgis
Asendiplaan (vajalik geoalus, milel hind eraldi tööna on 450EUR)
Vund ja korruse plaan
KAtuse plaan
Hoone lõige
Hoone vaated
AVatäidete joonised
Jm asjakohased vajalikud joonised

Kooskõlastused ehitusloa taotlemiseks
Ehituslo ... Rohkem

Kasutaja ikoon ID47506
Pakkuja profiil Väike nool paremale
5 250€ KM lisandub KM lisandub 23.04.2020 Vestlus (0)

Pakkumise kirjeldus:

Pakume:
* arhitektuurset osa EP;
* vesi-kanal PP hoonesisene ja -väline;
* küte-vent PP;
* EL PP liitumiskilbini;
* projektijuhtimine (ehitusluba, kooskõlastustegevus (lõivud ei kuulu tasu sisse);

Küsimused hanke korraldajale

Hanke korraldajale ei ole veel küsimusi esitatud.

Lisa küsimus

Lisa küsimus

Minu pakkumine

Reeglid

Pakkumise kirjelduse väli on mõeldud pakkumise detailsemaks lahti kirjutamiseks. Pikema teksti mugavaks sisestamiseks klikkige kasti paremal ülaservas oleval ikoonil.
Pakkumist tehes on keelatud postitada enda kontaktandmeid (nimi, telefon, aadress jne). Me jälgime ja analüüsime pakkumisi, et vältida pettuseid ja reeglite rikkumisi.
Rikkumise puhul kasutajakonto blokeeritakse.

 

Teisi töid samas valdkonnas

Valdkonnas "Ehitusprojektid" on 5 aktiivset tööd

Korteri elektri projekt

Asukoht: Harjumaa, Tallinn
Aega jäänud: 1p 20h
Tehtud pakkumisi: 2

no-img Pilt puudub

Kortermaja kõigi ruumide mõõdistamine ja DWG faili koostamine

Asukoht: Harjumaa, Tallinn
Aega jäänud: 10p 20h
Tehtud pakkumisi: 1

Vanemad teated:

Vaata kõiki

Sellel veebilehel kasutatakse küpsiseid. Kasutamist jätkates nõustute küpsiste kasutamisega.

Sulge
 
Minu pakkumine

Reeglid

Pakkumise kirjelduse väli on mõeldud pakkumise detailsemaks lahti kirjutamiseks. Pikema teksti mugavaks sisestamiseks klikkige kasti paremal ülaservas oleval ikoonil.
Pakkumist tehes on keelatud postitada enda kontaktandmeid (nimi, telefon, aadress jne). Me jälgime ja analüüsime pakkumisi, et vältida pettuseid ja reeglite rikkumisi.
Rikkumise puhul kasutajakonto blokeeritakse.