+ Lisa oma töö      

Otsid ehitajat "Elektritööd" valdkonnast?

Parima pakkumise ja teostaja leidmiseks lisa oma töö.

Uued elektrijuhtmed kortersse

ID 51122

1417 vaatamist

Prindi

  • check Pakkumiste tegemine
    kuni 28.04.2020
  • check Võitja valik kuni
    05.05.2020
  • 3 Töö teostamine
    ja hinnang
Hanke lõpp: T, 28. aprill, 2020
Maakond: Tartumaa
Linn: Tartu
Tööde algus: K, 20. mai, 2020 (Soovituslik)
Tööde lõpp: N, 04. juuni, 2020 (Soovituslik)
Ehitusmaterjalid: Töö tegija poolt
Soovin pakkumisi: Summa kogu projektile

Töö sisu

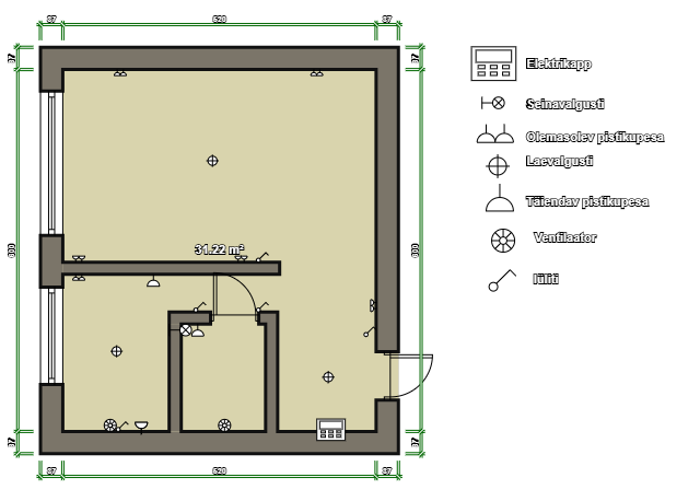
1974 aastal ehitatud 5-kordne kivimaja ühetoaline korter. Korter on kolmandal korrusel. Siseseinad punane tellis. Vaja täielikult välja vahetada olemasolev elektrijuhtmestik. Lisaks olemasolevatele tarbijatele vaja juurde luua 3 täiendavat pistikupesa kohta (vt joonist). Elektrikilp on korteris sees ja uus (vt pilti).

Pildid, video ja failid

Hanke korraldaja: eraisik ID54404

Pakkumised

Pakkumisi kokku: 6

Ettevõte Summa Käibemaks Lisatud Vestlus
Kasutaja ikoon ID53066
Pakkuja profiil Väike nool paremale
816€ KM lisandub KM lisandub 15.04.2020 Vestlus (0)

Pakkumise kirjeldus:

Tere

Hind sisaldab tööd / materjale.

Hind ei sisalda lüliteid/pistikuid.

Hind ei sisalda jooniseid.

Märjal ruumil võiks olla lisaks rikkevooluautomaat, köögil võiks olla eraldi automaat. Kilbitööd peaks eraldi kokku leppima, seal oleks vaja natukene muutusi teha. Need tööd pole väga kulukad.

Parimat

Kasutaja ikoon ID47246
Pakkuja profiil Väike nool paremale
850€ KM lisandub KM lisandub 15.04.2020 Vestlus (0)

Pakkumise kirjeldus:

Uus kilp. kuna see mis pildil ei vasta nõuetele.
Kaabeldus ja pesade lülitite paigaldus.
ei sisalda pesade ja lülitite maksumust. ei sisalda prahi utiliseerimist.
kilbi joonis ning vastavuse deklaratsioon(vajalikud kasutusloa saamiseks)
2a garantii
20a kogemust

Kasutaja ikoon ID50340
Pakkuja profiil Väike nool paremale
575€ KM lisandub KM lisandub 15.04.2020 Vestlus (0)

Pakkumise kirjeldus:

Tere! Hind sisaldab kaableid,kaablite paigaldust,freesimist,pistikute ja lulitite paigaldust.
Vajadusel uus kilp koos sisuga 160-eur

Kasutaja ikoon ID52674
Pakkuja profiil Väike nool paremale
550€ KM lisandub KM lisandub 15.04.2020 Vestlus (0)

Pakkumise kirjeldus:

Pakkumises sees soonte ,tooside freesimine +kaabeldus eraldi gruppidega. Kaablid,toosid,fiksaatorid hinna sees . Muu elektrikilbi ühendamine lisatasu eest.Ettemaksu ei vaja .Kui töö tehtud siis ka kohene tasumine.

Kasutaja ikoon ID38948
Pakkuja profiil Väike nool paremale
600€ KM lisandub KM lisandub 15.04.2020 Vestlus (0)
Kasutaja ikoon ID54460
Pakkuja profiil Väike nool paremale
650€ KM lisandub KM lisandub 18.04.2020 Vestlus (0)

Küsimused hanke korraldajale

Küsimus: private ID54202   14.04.2020 22:27
Tere.
Kas peale soonte freesimist ja juhtmete vedu vaja maalritööd ka teostada ?

Lugupidamisega.

Teavita reeglite rikkumisest

Korraldaja vastus: 14.04.2020 23:17

Ei, maalritöid selles projektis pole. See tuleb eraldi hankena.

Teavita reeglite rikkumisest

Küsimus: private ID19451   14.04.2020 22:49
Tere!
See kilp nüüd uus küll ei ole ja tuleks ära vahetada. Seega ka avaus suuremaks lõhkuda, et kilp ära mahuks.

Teavita reeglite rikkumisest

Korraldaja vastus: 14.04.2020 23:21

Kilbi raam on vana, sisu sees uus (2014). Kilbi raam ja uks ei ole elektrijuhtmete vahetamisel määravaks.

Teavita reeglite rikkumisest

Küsimus: private ID19451   15.04.2020 09:15
Ega need asjad päris nii ei käi, et ühendame juhtmed punti kokku ja laseme voolu sisse. Paigaldada tuleks korralik kilp, milles vajalikud kaitseseadmed, rikkevoolud ja kaitselülitid erinevate gruppide ette. Sellesse auku ära ei mahu. Aga ju te olete selle kohapealt tiba targem.

Teavita reeglite rikkumisest

Korraldaja vastus: 15.04.2020 10:19

Köögi ja vannitoa eraldi katsete ja rikkevoolu osas täiesti nõus - neid on ka vaja. Kuna ma hanget enam muuta ei saa, siis jääb see lisatööks, mille osas tuleb eraldi kokkulepe. Praegu tuleks arvestada ainult juhtmete freesimisega.

Teavita reeglite rikkumisest

Küsimus: private ID54599   23.04.2020 11:18
Kas freesida tuleb kogu teekond või saab kasutada lagesid/põrandaid kaablite vedamiseks?

Teavita reeglite rikkumisest

Korraldaja vastus: 23.04.2020 22:19

Ei ole täpselt kursis lagedega - kui paneeliõõnsusi on, siis neid saab ikka kasutada. Põrandale on vana värvitud laudpõranda peale pandud parkett ja see on liimitud.

Teavita reeglite rikkumisest

Küsimus: private ID50979   28.04.2020 08:22
Tere.Kas võib pakkumise teha soonte freesimisele ja juhtmete vedamisele kilbini?

Teavita reeglite rikkumisest

Korraldaja vastus: 28.04.2020 10:55

Ei, lõpptulemusena peaks miinimum mul olema võimalik lüliti seina kruvida ja lampi põlema panna.

Teavita reeglite rikkumisest

Lisa küsimus

Lisa küsimus

Minu pakkumine

Reeglid

Pakkumise kirjelduse väli on mõeldud pakkumise detailsemaks lahti kirjutamiseks. Pikema teksti mugavaks sisestamiseks klikkige kasti paremal ülaservas oleval ikoonil.
Pakkumist tehes on keelatud postitada enda kontaktandmeid (nimi, telefon, aadress jne). Me jälgime ja analüüsime pakkumisi, et vältida pettuseid ja reeglite rikkumisi.
Rikkumise puhul kasutajakonto blokeeritakse.

 

Teisi töid samas valdkonnas

Valdkonnas "Elektritööd" on 5 aktiivset tööd

Vana talu elektrisüsteemi uuendamine (kilp, pistikud, välivalgustus, EV valmidus)

Asukoht: Raplamaa, Suurekivi
Aega jäänud: 1p 8h
Tehtud pakkumisi: 5

Kaablite vahetus paneelmaja korteris ja siseviimistlus

Asukoht: Harjumaa, Tallinn
Aega jäänud: 6p 8h
Tehtud pakkumisi: 3

Vanemad teated:

Vaata kõiki

Sellel veebilehel kasutatakse küpsiseid. Kasutamist jätkates nõustute küpsiste kasutamisega.

Sulge
 
Minu pakkumine

Reeglid

Pakkumise kirjelduse väli on mõeldud pakkumise detailsemaks lahti kirjutamiseks. Pikema teksti mugavaks sisestamiseks klikkige kasti paremal ülaservas oleval ikoonil.
Pakkumist tehes on keelatud postitada enda kontaktandmeid (nimi, telefon, aadress jne). Me jälgime ja analüüsime pakkumisi, et vältida pettuseid ja reeglite rikkumisi.
Rikkumise puhul kasutajakonto blokeeritakse.