+ Lisa oma töö      

Otsid ehitajat "Ehitusprojektid" valdkonnast?

Parima pakkumise ja teostaja leidmiseks lisa oma töö.

Hange on lõppenud!

Võitjaks osutus kasutaja ID 48142

Korraldaja hinnang tehtud tööle

5.0
24.07.2020
Töökiirus: 12345
Kvaliteet: 12345
Hind: 12345

Kiire ja sujuv koostöö. Projekti koostamine laabus ja tulemus tuli hea. Soovitan! - Priit J.

Üksikelamu eelprojekti koostamine

ID 50971

1170 vaatamist

Prindi

  • check Pakkumiste tegemine
    kuni 18.04.2020
  • check Võitja valik kuni
    25.04.2020
  • 3 Töö teostamine
    ja hinnang
Hanke lõpp: L, 18. aprill, 2020
Maakond: Saaremaa
Muu asula: Laadjala
Tööde algus: E, 20. aprill, 2020 (Soovituslik)
Tööde lõpp: T, 30. juuni, 2020 (Soovituslik)
Ehitusmaterjalid: Töö tegija poolt
Soovin pakkumisi: Summa kogu projektile

Töö sisu

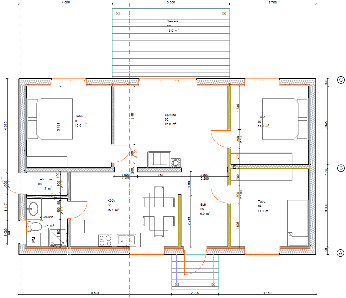
Eelprojekti koostamine üksikelamu ehituseks - seletuskiri, energiamärgis, kooskõlastused ehitusloa saamiseks ja ehitusloa taotlemine.

Pildid, video ja failid

Hanke korraldaja: eraisik ID51459

Pakkumised

Pakkumisi kokku: 6

Ettevõte Summa Käibemaks Lisatud Vestlus
Kasutaja ikoon ID46491
Pakkuja profiil Väike nool paremale
1 900€ Ei ole KMKR Ei ole KMKR 09.04.2020 Vestlus (0)

Pakkumise kirjeldus:

Hinnas eelprojekti koostamine (s.h. arhitektuur, konstruktsioonid, võrgud jms), energiamärgise hankimine ning ehitusloa taotlemine. Eeldame manustatud projektidoki üleandmist .dwg või .pln formaatides.

Kasutaja ikoon ID42152
Pakkuja profiil Väike nool paremale
1 295€ Ei ole KMKR Ei ole KMKR 09.04.2020 Vestlus (0)

Pakkumise kirjeldus:

Ehitusprojekt eelprojekti staadiumis (arh-eh osa koos eriosadega).
PAkkumishind sisaldab:
Seletuskiri
Energiamärgis
Asendiplaan
Vund plaan
Korruse plaan
KAtuse plaan
Hoone lõige
Hoone vaated
Avatäidete joonised
Jm asjakohased vajalikud joonised

Kooskõlastused ehitusloa saamiseks
Ehitusloa taotluse esitamine

KM ei lisandu
Lisandub riigi ... Rohkem

Kasutaja ikoon ID48142
Pakkuja profiil Väike nool paremale
1 200€ Sisaldab KM Sisaldab KM 09.04.2020 Vestlus (0)

Pakkumise kirjeldus:

Pakkumine sisaldab:
Üksikelamu arhitektuurset eelprojekti ehitusloa taotluse mahus (seletuskiri, asendiplaan eelprojekti tehnovõrkudega, hoone põhiplaanid, vundamendi plaan, katuse plaan, vaated, lõige, 3D visualiseeringud ja vajadusel piirde/värava joonis, energiamärgis), vajadusel ametkondade märkuste korrigeerimist ehitusloa saamiseni. Vajadusel n ... Rohkem

Kasutaja ikoon ID24664
Pakkuja profiil Väike nool paremale
1 300€ KM lisandub KM lisandub 17.04.2020 Vestlus (0)

Pakkumise kirjeldus:

Pakkumine sisaldab:
- ehitusloa taotlemiseks vajalikus mahus elamu ehitusprojekt (eelprojekt): seletuskiri, joonised (asendiplaan, põhiplaan, katuse plaan, vundamentide plaan, vaated, lõige, avatäidete spetsifikatsioon)
- energiamärgis
- ehitusloa taotluse eeltäitmine ja hoone tehniliste andmete sisestamine ehitisregistri keskkonnas (ehr.ee)

Proje ... Rohkem

Kasutaja ikoon ID46826
Pakkuja profiil Väike nool paremale
1 050€ Ei ole KMKR Ei ole KMKR 18.04.2020 Vestlus (0)

Pakkumise kirjeldus:

*Eelprojekti vormistamine:
- joonised: 4 vaadet , lõige, korruse plaanid, vundamendi plaan, avatäited
- seletuskiri
-asendiplaan
-puhasti variantide täpsustamine
*Kooskõlastamised, asjaajamine
*Ehitusloa taotlemine

Küsimused oodatud

Kasutaja ikoon ID48870
Pakkuja profiil Väike nool paremale
1 150€ Sisaldab KM Sisaldab KM 18.04.2020 Vestlus (0)

Pakkumise kirjeldus:

Pakkumine sisaldab:
- Eelprojekti vormistamin joonised :
vaated , lõige, korruste plaanid, vund. plaan avatäited
seletuskirjaga
Kooskõlastused ehitusteatise registreerimiseks
Ehitusteatise esitamine KOv
Energiamärgis

Küsimused hanke korraldajale

Küsimus: private ID48142   08.04.2020 23:54
Kas on liitumisi tehnovõrkudega? Millised on vee- ja kanalisatsiooni varustused? Kas jooniste täiendamiseks jagatakse ka .pln faili?

Teavita reeglite rikkumisest

Korraldaja vastus: 09.04.2020 11:19

Elektriliitumine on tehtud (elektrikapp kinnistul olemas).
Puurkaev on rajatud.
Projekt võiks sisaldada ka biopuhastit.
On olemas ka .pla ja .dwg failid.

Teavita reeglite rikkumisest

Lisa küsimus

Lisa küsimus

Minu pakkumine

Reeglid

Pakkumise kirjelduse väli on mõeldud pakkumise detailsemaks lahti kirjutamiseks. Pikema teksti mugavaks sisestamiseks klikkige kasti paremal ülaservas oleval ikoonil.
Pakkumist tehes on keelatud postitada enda kontaktandmeid (nimi, telefon, aadress jne). Me jälgime ja analüüsime pakkumisi, et vältida pettuseid ja reeglite rikkumisi.
Rikkumise puhul kasutajakonto blokeeritakse.

 

Teisi töid samas valdkonnas

Valdkonnas "Ehitusprojektid" on 6 aktiivset tööd

no-img Pilt puudub

Ehitusinsener tase 7 vastutav allikiri

Asukoht: Pärnumaa, Pärnu
Aega jäänud: 17h 23 min
Tehtud pakkumisi: 2

Korteri elektri projekt

Asukoht: Harjumaa, Tallinn
Aega jäänud: 2p 17h
Tehtud pakkumisi: 2

Vanemad teated:

Vaata kõiki

Sellel veebilehel kasutatakse küpsiseid. Kasutamist jätkates nõustute küpsiste kasutamisega.

Sulge
 
Minu pakkumine

Reeglid

Pakkumise kirjelduse väli on mõeldud pakkumise detailsemaks lahti kirjutamiseks. Pikema teksti mugavaks sisestamiseks klikkige kasti paremal ülaservas oleval ikoonil.
Pakkumist tehes on keelatud postitada enda kontaktandmeid (nimi, telefon, aadress jne). Me jälgime ja analüüsime pakkumisi, et vältida pettuseid ja reeglite rikkumisi.
Rikkumise puhul kasutajakonto blokeeritakse.