+ Lisa oma töö      

Otsid ehitajat "Ehitusprojektid" valdkonnast?

Parima pakkumise ja teostaja leidmiseks lisa oma töö.

Eramu ehitusprojekt

ID 133982

1062 vaatamist

Prindi

  • check Pakkumiste tegemine
    kuni 06.05.2026
  • check Võitja valik kuni
    16.05.2026
  • 3 Töö teostamine
    ja hinnang
Hanke lõpp: K, 6. mai, 2026
Maakond: Tartumaa
Tööde lõpp: Kokkuleppel
Ehitusmaterjalid: Töö tegija poolt
Soovin pakkumisi: Summa kogu projektile

Töö sisu

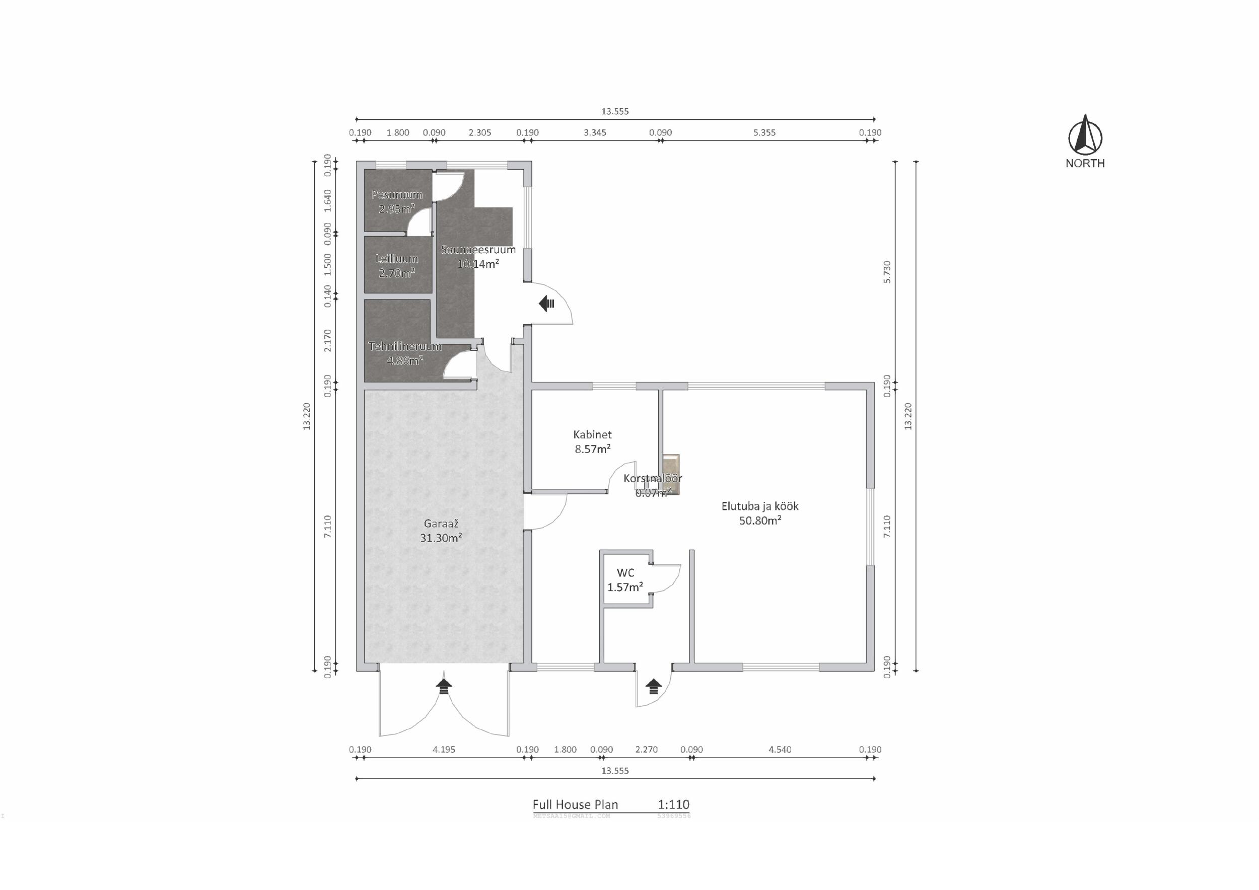
Eramu ehitusprojekt ehitusloa jaoks. Tegin ka maja plaanid, milline planeeritav maja välja võiks näha. Projekteerimistingimused on väljastatud ja geodeetiline alusplaan olemas.
Asukoht: Tartus
Hoone tüüp: kahekorruseline üksikelamu
Suurus: ca 175 m²
Palun lisada hinnapakkumisele töö maksumus, tööde eeldatav ajakava ja võimalikud lisakulud.

Pildid, video ja failid

Hanke korraldaja: eraisik ID77433

Pakkumised

Pakkumisi kokku: 12

Ettevõte Summa Käibemaks Lisatud Vestlus
Kasutaja ikoon ID95350
Pakkuja profiil Väike nool paremale
1 300€ Sisaldab KM Sisaldab KM 23.04.2026 Vestlus (0)

Pakkumise kirjeldus:

Pakkumine sisaldab elamu eelprojekti nõutud mahus ja EHR toimingud kuni ehitusloani. Lisandub ehitusloa riigilõiv 150€. Tööde tähtaeg 4-5 tööpäeva (st kuni ehitusloa taotluse esitamine).

Kasutaja ikoon ID43351
Pakkuja profiil Väike nool paremale
1 850€ Ei ole KMKR Ei ole KMKR 23.04.2026 Vestlus (0)

Pakkumise kirjeldus:

Pakkumine sisaldab eramu püstitamise eelprojekti ja ehitusloa edukat taotlemist KOV-lt, asjaajamisega.

Projekt vastab Majandus- ja taristuministri 17.07.2015 määrusele nr 97 „Nõuded ehitusprojektile" ja EVS 932:2017
Ehitusprojekt.

Projekti koosseis:
seletuskiri, k. a. üldosa, eriosad, tuleohutus, keskkonnakaitse jmt;
asendiplaan;
plaanid;
v ... Rohkem

Kasutaja ikoon ID26988
Pakkuja profiil Väike nool paremale
1 900€ Ei ole KMKR Ei ole KMKR 23.04.2026 Vestlus (0)

Pakkumise kirjeldus:

Pakkumine sisaldab projekti ehitusloa taotlemiseks vajalikus mahus, vastavalt normidele ja standartidele ning Teie kirjeldusele. Kõik kooskõlastused ja asjaajamised kuni ehitusloani. Vajadusel konsultatsioonid. Projekt digitaalselt Teile sobivates formaatides, 3D-visualiseering.
Geoalus, riigilõivud ja seotud asutuste menetlemise tasud ei kuulu pakkum ... Rohkem

Kasutaja ikoon ID78146
Pakkuja profiil Väike nool paremale
1 750€ Ei ole KMKR Ei ole KMKR 23.04.2026 Vestlus (0)

Pakkumise kirjeldus:

Töö sisaldab elamu uusehitise arhitektuurset eelprojekti..
Projekt valmib vastavalt Eesti Vabariigis kehtivatele seadustele ja standarditele.
Pakkumine sisaldab:
Seletuskiri
Asendiplaan geoalusel
Eramu põhiplaan
Eramu katuseplaan
Eramu lõige
Eramu vaated ja 3D vaated
Vajadusel vundamendi plaan, avatäidete spetsifikatsioonid.
Hoone andmete sise ... Rohkem

Kasutaja ikoon ID69164
Pakkuja profiil Väike nool paremale
2 400€ Ei ole KMKR Ei ole KMKR 23.04.2026 Vestlus (0)

Pakkumise kirjeldus:

Hoone ehitusprojekt eelprojekti staadiumis.

Koostatav projekt vastab EVS 932:2017 ja MKM määruse nr. 97 „Nõuded ehitusprojektile1" nõuetele.

Märkused:
1. Hinnapakkumine ei sisalda Topo-geodeetiliste, ehitusgeoloogiliste, dendroloogiliste uuringute koostamist, ega nende maksumust,
2. Projektiga ja projekteerimisega seotud kõik kooskõlastustas ... Rohkem

Kasutaja ikoon ID86806
Pakkuja profiil Väike nool paremale
1 590€ Sisaldab KM Sisaldab KM 23.04.2026 Vestlus (0)

Pakkumise kirjeldus:

Tere!

Esitame teile hinnapakkumise:
- Ehitusprojekt vastavalt kehtivatele standartitele ja nõetele eelprojekti mahus
- Projekti koosseisus: seletuskiri, asendiplaan, vaated, lõiked, korruse plaan, katuseplaan, avatäidete spetsifikatsioonid
- Tehnosüsteemide ja konstruktiivse osa lahenduse koostame arhitektuurse eelprojekti mahus
- 3D vaated hoones ... Rohkem

Kasutaja ikoon ID87262
Pakkuja profiil Väike nool paremale
1 500€ KM lisandub KM lisandub 23.04.2026 Vestlus (0)

Pakkumise kirjeldus:

Tere!


Hea meelega koostame Teile pakkumise, mis on järgmine:

🏡 I PROJEKT
- Koostame ehitusprojekti, mis sisaldab:
- plaanid
- vaated (4 tk)
- lõige
- asendiskeem
- asendiplaan
- akende ja välisuste spetsifikatsioon
- katuse plaan
- vundamendi plaan
- 3D-skeem
- 3D-mudel (BIMx)
- seletuski ... Rohkem

Kasutaja ikoon ID78425
Pakkuja profiil Väike nool paremale
4 500€ KM lisandub KM lisandub 24.04.2026 Vestlus (0)

Pakkumise kirjeldus:

Oleme 15 aastase projekteerimiskogemusega arhitektuuribüroo ning teinud sadu projekte üle eesti ning omame spetsialistide näol piisavalt kompetentsi.
Arhitektuurne eelprojekt (asendiplaan, seletuskiri, korruste plaanid, vaated, lõiked) 4000-
Ehitusloa taotlus ja menetlus (Projekti EHR-i laadimine, andmete ajakohastamine ja KOV-i märkuste
lahendami ... Rohkem

Kasutaja ikoon ID42152
Pakkuja profiil Väike nool paremale
1 285€ Ei ole KMKR Ei ole KMKR 27.04.2026 Vestlus (0)

Pakkumise kirjeldus:

Ehitusprojekt eelprojekti staadiumis (arh-eh osa koos eriosadega)
Pakkumishind sisaldab:
Seletuskiri
Energiaarvutused
Asendiplaan
Vund ja korruse plaanid
Katuse plaan
Hoone lõige
Hoone vaated
Avatäidete joonised
Jm asjakohased vajalikud joonised

Kooskõlastused ehitusloa saamiseks
Ehitusloa taotluse esitamine KOV
Suhtlus KOV ehitusloa välja ... Rohkem

Kasutaja ikoon ID69300
Pakkuja profiil Väike nool paremale
7 900€ Ei ole KMKR Ei ole KMKR 05.05.2026 Vestlus (0)

Pakkumise kirjeldus:

Eramu ehitusprojekti koostamine ehitusloa taotlemiseks (eelprojekt)

Koostame kahekorruselise üksikelamu (ca 175 m²) ehitusprojekti ehitusloa taotlemiseks vastavalt kehtivatele nõuetele. Projekt koostatakse eelprojekti mahus, mis võimaldab hinnata hoone vastavust nõuetele, põhilahendusi, energiatõhusust ja ehitusmaksumust

Töö sisaldab:

arhit ... Rohkem

Kasutaja ikoon ID48870
Pakkuja profiil Väike nool paremale
1 450€ Ei ole KMKR Ei ole KMKR 06.05.2026 Vestlus (0)

Pakkumise kirjeldus:

Tere
Ehitusprojekt eelprojekti staadiumis ehitisregistrile esitamiseks.
Ettemaks 20%
Pakkumishind sisaldab:
Seletuskiri,Korruste plaanid, Katuse plaan,Hoone lõige, Hoone vaated, Avatäidete joonised, jm asjakohased vajalikud joonised, Asendiplaan
Kooskõlastused ehitusteatis saamiseks
Ehitusteatis taotluse esitamine ehistisregi strisse
Kui arve tuleb ... Rohkem

Kasutaja ikoon ID40297
Pakkuja profiil Väike nool paremale
1 700€ Ei ole KMKR Ei ole KMKR 06.05.2026 Vestlus (0)

Pakkumise kirjeldus:

Tere!

Pakkumine sisaldab ehitusprojekti koostamist eramule vastavalt Teie hanke kirjeldusele.

Projekt valmib eelprojekti staadiumis ning sisaldab:
- arhitektuurseid plaane
- vaateid
- lõikeid
- avatäidete spetsifikatsiooni
- seletuskirja
- asendiplaani
- 3D pildid hoonest

Seletuskirjas on lahti kirjutatud põhimõttelised lahendused järgm ... Rohkem

Küsimused hanke korraldajale

Küsimus: Hange.ee assistent i 22.04.2026 19:47
1. Kas on olemas geoloogiline uuring (pinnaseuuring) vundamendi projekteerimiseks või tuleb see töö pakkumisse lisada?
2. Millist kandekonstruktsiooni ja välisseinte lahendust eelistate (nt puitkarkass, plokk, betoon, elementmaja)?
3. Millised on soovid tehnosüsteemide osas (küte, ventilatsioon, jahutus, energialahendus – nt õhk-vesi soojuspump, gaas, päikesepaneelid)?
4. Kas soovite, et projekt sisaldaks ka sisearhitektuurset lahendust ja mööbli paiknemise täpsustamist või ainult ehitusloa põhimahtu?
5. Kas krundil või projekteerimistingimustes on erinõudeid (nt katusekalle, fassaadimaterjalid, kõrguspiirangud), millega peame lahenduse koostamisel arvestama?

Korraldaja vastus: 22.04.2026 22:33

1. Mullakihi all on liiv ja selle all savi.
2. Õõnesplokk ja õõnespaneel. Katusekalle 0°.
3. Maakütte ja soojatagastusega ventilatsioon.
4. Ei soovi.
5. Katusekalle 0-45° kraadi. Lubatud kõrgus 8.5 m hoone planeeritud ±0,00-st. Vältida matkivaid materjale. Fassaadimaterjal krohv.

Teavita reeglite rikkumisest

Küsimus: private ID69300   23.04.2026 16:56
Kas krundile on olemas vee, kanalisatsiooni ja elektri liitumistingimused või tuleb need alles võtta?
Kas geoloogiline uuring on siiski tehtud või soovite selle lisada projekteerimise kõrvale eraldi tööna?
Kas soovite pakkumises arvestada ainult ehitusloa eelprojekti mahtu?
Kas soovite, et energiamärgise ja energiaarvutuse osa oleks hinnas sees või eraldi reana?

Teavita reeglite rikkumisest

Korraldaja vastus: 26.04.2026 20:11

Liitumised olemas.
Eraldi tööna ei soovi.
Soovin ehitusprojekt ehitusloa jaoks.
Eraldi välja toodud.

Teavita reeglite rikkumisest

Lisa küsimus

Lisa küsimus

Minu pakkumine

Reeglid

Pakkumise kirjelduse väli on mõeldud pakkumise detailsemaks lahti kirjutamiseks. Pikema teksti mugavaks sisestamiseks klikkige kasti paremal ülaservas oleval ikoonil.
Pakkumist tehes on keelatud postitada enda kontaktandmeid (nimi, telefon, aadress jne). Me jälgime ja analüüsime pakkumisi, et vältida pettuseid ja reeglite rikkumisi.
Rikkumise puhul kasutajakonto blokeeritakse.

 

Teisi töid samas valdkonnas

Valdkonnas "Ehitusprojektid" on 5 aktiivset tööd

no-img Pilt puudub

Kortermaja kõigi ruumide mõõdistamine ja DWG faili koostamine

Asukoht: Harjumaa, Tallinn
Aega jäänud: 2p 10h
Tehtud pakkumisi: 2

Korterelamu mõõdistusprojekti koostamine ja jooniste digitaliseerimine

Asukoht: Lääne-Virumaa, Tapa
Aega jäänud: 5p 10h
Tehtud pakkumisi: 2

Vanemad teated:

Vaata kõiki

Sellel veebilehel kasutatakse küpsiseid. Kasutamist jätkates nõustute küpsiste kasutamisega.

Sulge
 
Minu pakkumine

Reeglid

Pakkumise kirjelduse väli on mõeldud pakkumise detailsemaks lahti kirjutamiseks. Pikema teksti mugavaks sisestamiseks klikkige kasti paremal ülaservas oleval ikoonil.
Pakkumist tehes on keelatud postitada enda kontaktandmeid (nimi, telefon, aadress jne). Me jälgime ja analüüsime pakkumisi, et vältida pettuseid ja reeglite rikkumisi.
Rikkumise puhul kasutajakonto blokeeritakse.