+ Lisa oma töö      

Otsid ehitajat "Ehitusprojektid" valdkonnast?

Parima pakkumise ja teostaja leidmiseks lisa oma töö.

Eramu soojustusprojekti koostamine

ID 133763

116 vaatamist

Prindi

  • 1 Pakkumiste tegemine
    kuni 04.05.2026
  • 2 Võitja valik kuni
    14.05.2026
  • 3 Töö teostamine
    ja hinnang
Hanke lõpp: E, 4. mai, 2026
Maakond: Harjumaa
Linn: Tallinn
Tööde lõpp: Kokkuleppel
Ehitusmaterjalid: Töö tegija poolt
Soovin pakkumisi: Summa kogu projektile

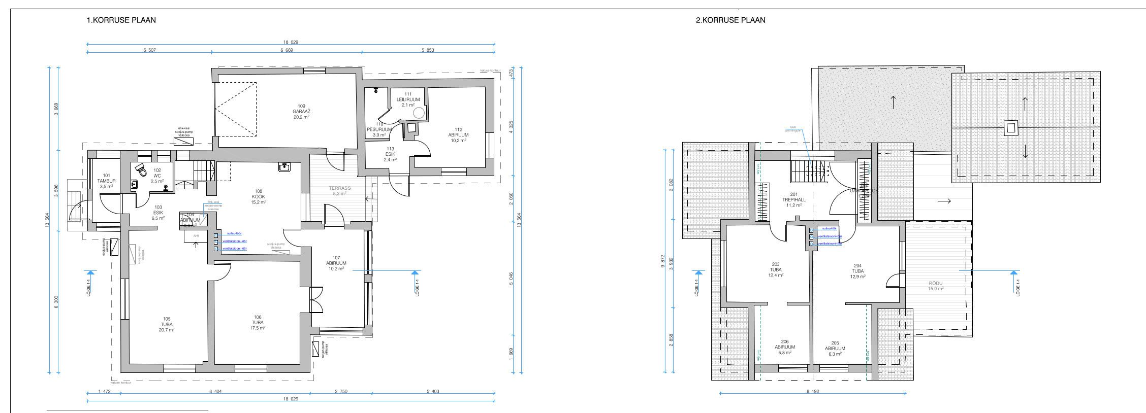
Töö sisu

Soovin palun hinnapakkumisi eramu renoveerimisprojektiks. Pakkumine võiks sisaldada (minimaalselt) järgmist:

* Fassaadi ja vundamendi soojustusprojekt diplomeeritud või asjakohase haridusega inimese poolt
* Dokumentide haldus ja asjaajamine Pirita LOV-ga
* Muud vajalikud menetlustoimingud
* Hetke juhitakse katuselt tulev vihmavesi vundamendi kõrvale. Võimaluselt paluksin projektis käsitleda ka selle probleemi lahendamist.

Kokkuvõttes peab olema valminud LOV-ga kooskõlastatud projekt soojustustöödeks.

Pildid, video ja failid

Hanke korraldaja: eraisik ID97061

Pakkumised

Pakkumisi kokku: 3

Küsimused hanke korraldajale

Küsimus: Hange.ee assistent i 20.04.2026 14:31
1. Mis on olemasoleva hoone konstruktsioonid (välisseina ja vundamendi materjalid ning ligikaudne paksus) ning kas olemas on varasemad ehitus- või rekonstrueerimisprojektid?
2. Kas soovite lisaks soojustamisele muuta ka fassaadi viimistlust või välisilmet (nt uus kattematerjal, värvilahendus, sokli viimistlus)?
3. Kas hoonel on täheldatud niiskusprobleeme (nt vundamendi läbiv niiskus, hallitus, pragunemine), millega projektis tuleks eraldi arvestada?
4. Kuidas on hetkel lahendatud sadevee ärajuhtimine (rennid, torud, drenaaž) ja kas kinnistul on olemas toimiv drenaaži- või sadeveesüsteem?
5. Kas soovite, et projekt sisaldaks ka energiatõhususe arvutusi või toetuse (nt KredEx vms) taotlemiseks vajalikke dokumente?

Korraldaja vastus: 20.04.2026 14:38

1) Tegemist on silikaattellisest majaga (Harju-tüüpi sein). Maja originaalprojekt on olemas.
3) Minule teadaolevalt niiskusprobleeme ei ole peale selle (peale vihmavee juhtimise probleemi mida üleval kirjeldasin). Vundamendile tuleks ka ilmselt niiskustõket kasutada, sest minu teada see puudub.
4) Vihmavesi juhitakse maja kõrvale. Tuleks juhtida eemale, või siis sademevee kanalisatsiooni. Tallinna Vesi-l on minule teadaolevalt lähedal see trass olemas. Vajan siinkohal professionaali arvamust ja soovitust, kuidas toimida.
5) Minule otseselt ei ole vaja, sest minu teada Kredex-i toetust hetkel ei saa.

Teavita reeglite rikkumisest

Lisa küsimus

Lisa küsimus

Minu pakkumine

Reeglid

Pakkumise kirjelduse väli on mõeldud pakkumise detailsemaks lahti kirjutamiseks. Pikema teksti mugavaks sisestamiseks klikkige kasti paremal ülaservas oleval ikoonil.
Pakkumist tehes on keelatud postitada enda kontaktandmeid (nimi, telefon, aadress jne). Me jälgime ja analüüsime pakkumisi, et vältida pettuseid ja reeglite rikkumisi.
Rikkumise puhul kasutajakonto blokeeritakse.

 

Aega jäänud: 12 päeva 1h

Jälgi seda hanget

Teisi töid samas valdkonnas

Valdkonnas "Ehitusprojektid" on 8 aktiivset tööd

Projekt, ehitisteatis

Asukoht: Lääne-Virumaa, Jäneda
Aega jäänud: 5p 1h
Tehtud pakkumisi: 5

Vanemad teated:

Vaata kõiki

Sellel veebilehel kasutatakse küpsiseid. Kasutamist jätkates nõustute küpsiste kasutamisega.

Sulge
 
Minu pakkumine

Reeglid

Pakkumise kirjelduse väli on mõeldud pakkumise detailsemaks lahti kirjutamiseks. Pikema teksti mugavaks sisestamiseks klikkige kasti paremal ülaservas oleval ikoonil.
Pakkumist tehes on keelatud postitada enda kontaktandmeid (nimi, telefon, aadress jne). Me jälgime ja analüüsime pakkumisi, et vältida pettuseid ja reeglite rikkumisi.
Rikkumise puhul kasutajakonto blokeeritakse.