+ Lisa oma töö      

Otsid ehitajat "Ehitusprojektid" valdkonnast?

Parima pakkumise ja teostaja leidmiseks lisa oma töö.

Hinnapäring: Üksikelamu varjualuse ümberehituse eelprojekt ja ehitusteatis

ID 130018

836 vaatamist

Prindi

  • check Pakkumiste tegemine
    kuni 28.02.2026
  • check Võitja valik kuni
    10.03.2026
  • 3 Töö teostamine
    ja hinnang
Hanke lõpp: L, 28. veebruar, 2026
Maakond: Pärnumaa
Linn: Pärnu
Tööde lõpp: Kokkuleppel
Ehitusmaterjalid: Töö tegija poolt
Soovin pakkumisi: Summa kogu projektile

Töö sisu

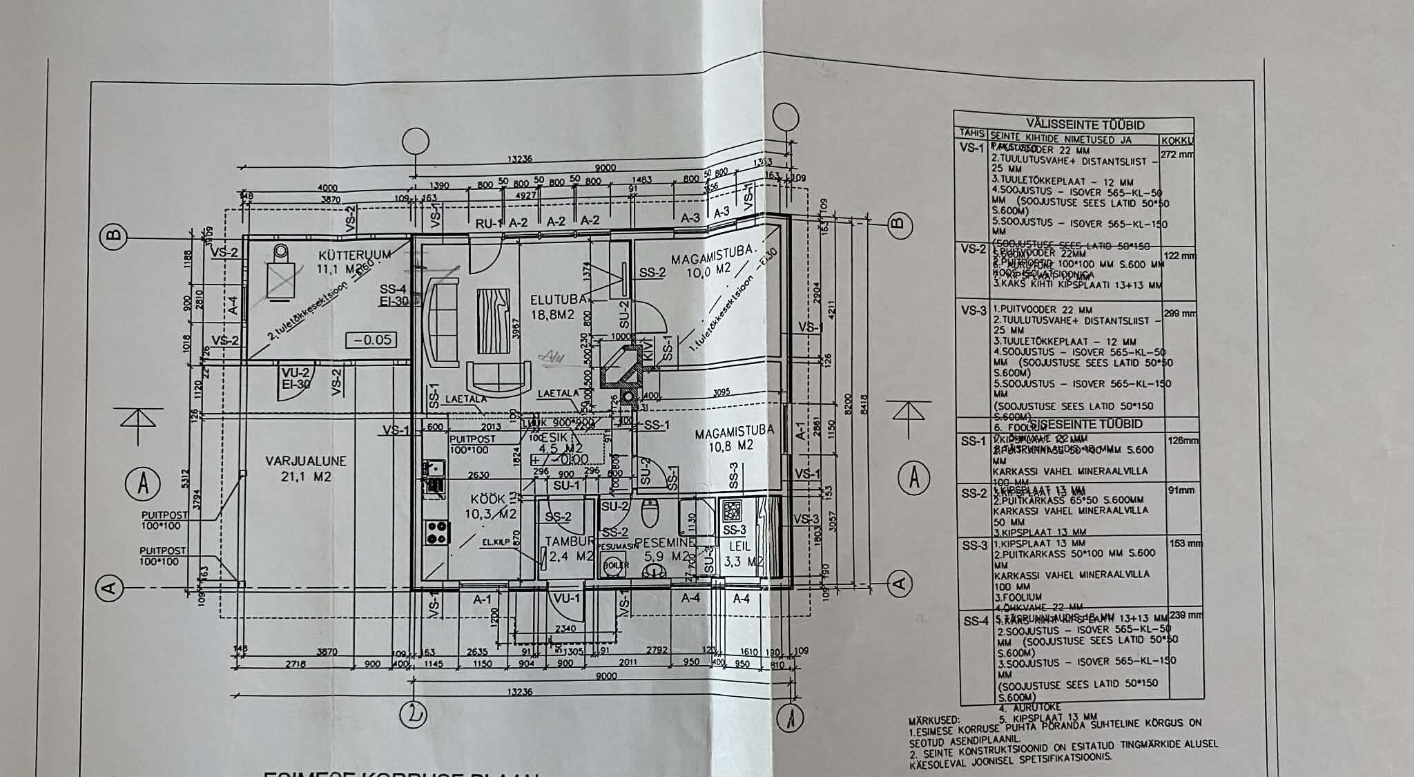
Soovin hinnapakkumust üksikelamu olemasoleva autovarjualuse ümberehitamiseks soojustamata kuuriks/panipaigaks. Töö eesmärk on koostada muudatusprojekt eelprojekti mahus, mis on vajalik ehitusteatise esitamiseks.

Olemasolev olukord: Hoone lääneküljel asub avatud varjualune (21,1 m²). Üks külg (kütteruumi sein) on juba suletud. Olemas on paberil põhiplaan (foto manuses).
Muudatuste kirjeldus:
Seinad: Varjualune suletakse kahest küljest (esikülg ja 2/3 külgseinast kuni kütteruumini) soojustamata puitkarkass-seintega. Välisviimistlus: maja fassaadiga identne puitlaudis.
Vundament: Uute seinte alla rajatakse madal betoonist soklivöö, mis ühtlustub visuaalselt maja olemasoleva vundamendiga.
Põrand: Siseruumis säilib olemasolev liivapinnas (ei betoneerita).
Tuleohutus: Säilitatakse nõuetekohane tuletõkkesektsioon (EI-30) eluruumide ja uue kuuri vahel.

Vajalik tööde maht:
Muudatusprojekti vormistamine eelprojekti mahus (sh digitaalne põhiplaan, vaated, lõige ja seletuskiri).

Hoone tehniliste andmete (suletud netopind ja maht) ümberarvutamine vastavalt uutele piiretele.

Märkus: EHR-i menetluse (ehitusteatise üleslaadimise ja KOV-iga suhtlemise) teostan ise omanikuna. Teilt ootan vaid nõuetekohaselt vormistatud ja allkirjastatud failide komplekti (.asice konteineris).

Palun pakkumises välja tuua:
Töö maksumus.
Eeldatav teostamise aeg.

Ette tänades

Pildid, video ja failid

Hanke korraldaja: eraisik ID96740

Pakkumised

Pakkumisi kokku: 5

Ettevõte Summa Käibemaks Lisatud Vestlus
Kasutaja ikoon ID69164
Pakkuja profiil Väike nool paremale
1 200€ Ei ole KMKR Ei ole KMKR 26.02.2026 Vestlus (0)

Pakkumise kirjeldus:

Hoone ehitusprojekt eelprojekti staadiumis.

Koostatav projekt vastab EVS 932:2017 ja MKM määruse nr. 97 „Nõuded ehitusprojektile1" nõuetele.

Märkused:
1. Hinnapakkumine ei sisalda Topo-geodeetiliste, ehitusgeoloogiliste, dendroloogiliste uuringute koostamist, ega nende maksumust,
2. Projektiga ja projekteerimisega seotud kõik kooskõlastustas ... Rohkem

Kasutaja ikoon ID43351
Pakkuja profiil Väike nool paremale
1 000€ Ei ole KMKR Ei ole KMKR 27.02.2026 Vestlus (0)

Pakkumise kirjeldus:

Pakkumine sisaldab eramu ümberehituse eelprojekti.

Tööd teostab 20-aastase töökogemusega diplomeeritud arhitekt partneritega.

Projekt vastab Majandus- ja taristuministri 17.07.2015 määrusele nr 97 „Nõuded ehitusprojektile" ja EVS 932:2017
Ehitusprojekt.

Projekti koosseis:
seletuskiri, k. a. tuleohutus, keskkonnakaitse jmt;
asendiskeem;
... Rohkem

Kasutaja ikoon ID42152
Pakkuja profiil Väike nool paremale
350€ Ei ole KMKR Ei ole KMKR 27.02.2026 Vestlus (0)

Pakkumise kirjeldus:

Ehitusprojekt hoone laiendamiseks eelprojekti staadiumis (arh-eh osa)

PAkkumsihind sisaldab:
Seletuskiri
Asendiplaan
Korruse plaan
Hoone lõige
Hoone vaated
Avatäidete joonised

Kasutaja ikoon ID37465
Pakkuja profiil Väike nool paremale
1 100€ Ei ole KMKR Ei ole KMKR 27.02.2026 Vestlus (0)

Pakkumise kirjeldus:

Tere!

Pakume arhiktektuurse eelprojekti koostamist elamu laiendamiseks.

🎯 Töö maht sisaldab:

-Arhitektuurset eelprojekti: vundamendi plaan, korruste plaanid, katuseplaan, lõiget, vaated, avatäidete spetsifikatsioon ja asendiplaan.
-Lahendame tuleohutuslikud nõuded.
-Avatud ja selge suhtlus kogu protsessi vältel

🎯 Hinnale lisandub:
... Rohkem

Kasutaja ikoon ID48870
Pakkuja profiil Väike nool paremale
750€ Ei ole KMKR Ei ole KMKR 28.02.2026 Vestlus (0)

Pakkumise kirjeldus:

Tere
Ehitusprojekt eelprojekti staadiumis ehitisregistrile esitamiseks.
Ettemaks 20%
Pakkumishind sisaldab:
Seletuskiri,Korruste plaanid, Katuse plaan,Hoone lõige, Hoone vaated, Avatäidete joonised, jm asjakohased vajalikud joonised, Asendiplaan

Kui arve tuleb eraisikule siis saab ka ilma KM-ta teha.
Olen insener, arhitekt tase 7.
Omame MTR regist ... Rohkem

Küsimused hanke korraldajale

Hanke korraldajale ei ole veel küsimusi esitatud.

Lisa küsimus

Lisa küsimus

Minu pakkumine

Reeglid

Pakkumise kirjelduse väli on mõeldud pakkumise detailsemaks lahti kirjutamiseks. Pikema teksti mugavaks sisestamiseks klikkige kasti paremal ülaservas oleval ikoonil.
Pakkumist tehes on keelatud postitada enda kontaktandmeid (nimi, telefon, aadress jne). Me jälgime ja analüüsime pakkumisi, et vältida pettuseid ja reeglite rikkumisi.
Rikkumise puhul kasutajakonto blokeeritakse.

 

Teisi töid samas valdkonnas

Valdkonnas "Ehitusprojektid" on 3 aktiivset tööd

no-img Pilt puudub

Eraldiseisva korterelamu vahetu liitumine ühisveevärgiga.

Asukoht: Harjumaa, Tallinn
Aega jäänud: 4p 7h
Tehtud pakkumisi: 0

Vanemad teated:

Vaata kõiki

Sellel veebilehel kasutatakse küpsiseid. Kasutamist jätkates nõustute küpsiste kasutamisega.

Sulge
 
Minu pakkumine

Reeglid

Pakkumise kirjelduse väli on mõeldud pakkumise detailsemaks lahti kirjutamiseks. Pikema teksti mugavaks sisestamiseks klikkige kasti paremal ülaservas oleval ikoonil.
Pakkumist tehes on keelatud postitada enda kontaktandmeid (nimi, telefon, aadress jne). Me jälgime ja analüüsime pakkumisi, et vältida pettuseid ja reeglite rikkumisi.
Rikkumise puhul kasutajakonto blokeeritakse.