+ Lisa oma töö      

Otsid ehitajat "Üldehitus" valdkonnast?

Parima pakkumise ja teostaja leidmiseks lisa oma töö.

Eramu ehitus

ID 127833

1996 vaatamist

Prindi

  • check Pakkumiste tegemine
    kuni 15.01.2026
  • check Võitja valik kuni
    25.01.2026
  • 3 Töö teostamine
    ja hinnang
Hanke lõpp: N, 15. jaanuar, 2026
Maakond: Harjumaa
Muu asula: Aegviidu
Tööde lõpp: Kokkuleppel
Ehitusmaterjalid: Töö tegija poolt
Soovin pakkumisi: Summa kogu projektile

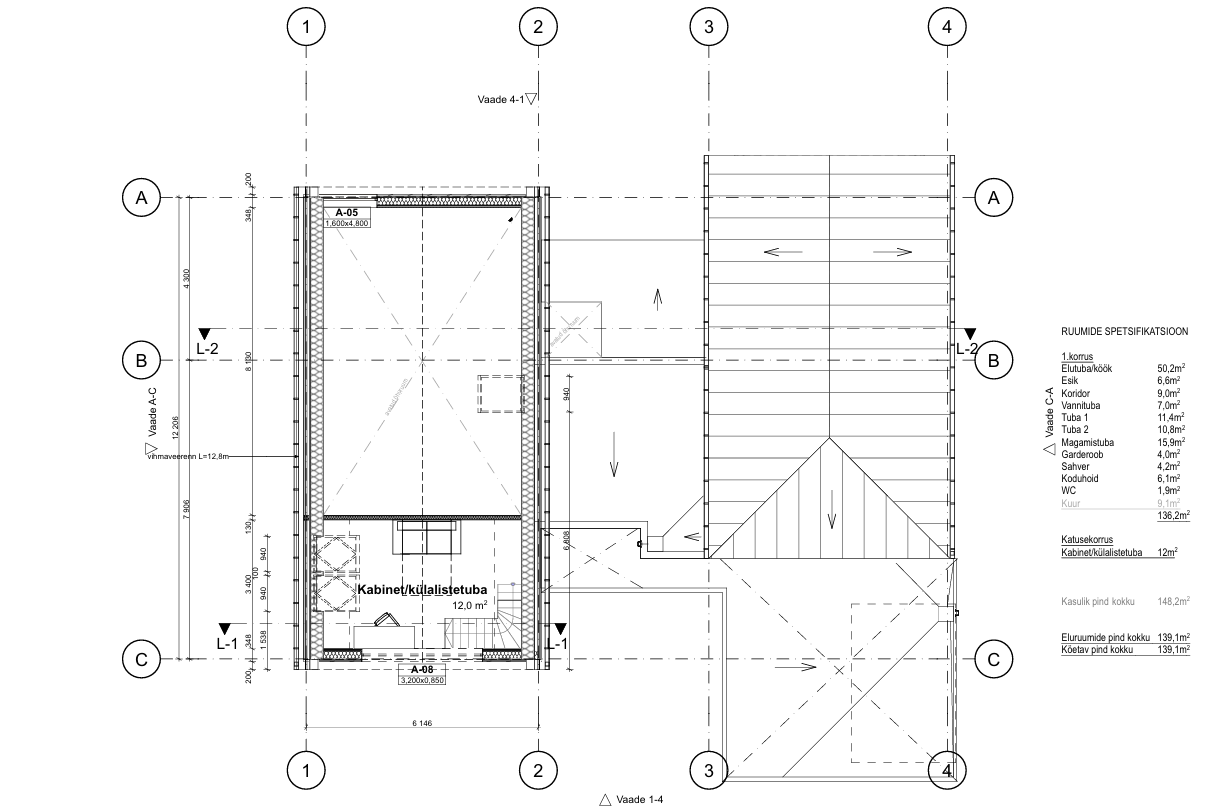
Töö sisu

Üksikelamu ehitamise hinnapakkumine: Peatöövõtja vormis

Elamumaa 1594 m2
Ehitusalune pind 211 m2,
Suletud netopind 150m2 ( ehitus eelprojekt)
Hoone kõrgus 1,5 korrust,
Katusekalle Kahepoolne viilkatus, 45 kraadi+kelpkatus 20 kraadi+ lamekatus
Liitumispunktid kinnistu piiril.

Pakkumus peaks sisaldama järgnevate tööde hinda:

Alused ja vundament
Fassaadielemendid ja katused
Torutööd
Elektritööd
Ventilatsioonitööd
Plekkatus
Seinad + vaheseinad
küte + paigaldus (maasoojuspump)
Sisemised kipsitööd+kruntvärv (valge karp)
Aknad :puitalumiinium

Lisainfo:
● plaatvundament
● välisseinad kivi(fibo) või puitkarkarkass
● siseseinad puitkarkassil

-Ehitusluba vallalt käes.


Hetkel eelprojekt olemas. (kaitstud autoriõigustega levitamisel)
Lisaküsimustele vastan heameelega!

Pildid, video ja failid

Hanke korraldaja: eraisik ID95691

Pakkumised

Pakkumisi kokku: 7

Ettevõte Summa Käibemaks Lisatud Vestlus
Kasutaja ikoon ID95583
Pakkuja profiil Väike nool paremale
286 140€ KM lisandub KM lisandub 02.01.2026 Vestlus (4)
Kasutaja ikoon ID95354
Pakkuja profiil Väike nool paremale
380 000€ KM lisandub KM lisandub 03.01.2026 Vestlus (3)

Pakkumise kirjeldus:

Esitame hinnapakkumise üksikelamu ehitamiseks peatöövõtu korras vastavalt esitatud eelprojektile ja hanke tingimustele. Pakkumine hõlmab kõiki põhitöid alates vundamendist ja kandekonstruktsioonidest kuni hoone valmimiseni „valge karbi“ staadiumis koos tehnosüsteemidega.
Tööde mahtu kuuluvad muu hulgas vundamendi- ja konstruktsioonitööd, fa ... Rohkem

Kasutaja ikoon ID72026
Pakkuja profiil Väike nool paremale
280 630€ Sisaldab KM Sisaldab KM 04.01.2026 Vestlus (11)

Pakkumise kirjeldus:

Tere!

Tegemist on esialgse hinnapakkumisega.

Kui projektid käes, siis saame teha Teile juba täpsema hinnapakkumise.


Tervitades,

Kristo.

Kasutaja ikoon ID8633
Pakkuja profiil Väike nool paremale
290 000€ KM lisandub KM lisandub 07.01.2026 Vestlus (1)

Pakkumise kirjeldus:

Tere, esialgne pakkumine, vaja projektid, siis saame teha detailne pakkumine.

Kasutaja ikoon ID93437
Pakkuja profiil Väike nool paremale
244 000€ KM lisandub KM lisandub 13.01.2026 Vestlus (8)
Kasutaja ikoon ID87470
Pakkuja profiil Väike nool paremale
315 600€ KM lisandub KM lisandub 15.01.2026 Vestlus (2)

Pakkumise kirjeldus:

Tere.

Täpsema hinnakalkulatsiooni saame koostada kui oleme lähemalt tutvunud objektiga!
Meie profiili alt ID87470 näete meie poolt tehtud töid!

Meeskonnal tööde kogemus 30 aastat!

Pädevus volitatud insener tase 8

Eesti Võlausaldajate Liidu ametlik liige. Ausa ja läbipaistva ettevõtluse eest!

Dok koostamine.
Kaetud tööde akt, teos ... Rohkem

Kasutaja ikoon ID84840
Pakkuja profiil Väike nool paremale
249 850€ Ikoon kell KM lisandub KM lisandub 15.01.2026 Vestlus (8)

Pakkumise kirjeldus:

Tere!
Edastame hinnapakkumise, mis on koostatud vastavalt esitatud projektile. Tegemist on terviklahendusega: pakkumine sisaldab kõiki kvaliteetseid materjale, tellinguid, transporti ja muid vajalikke kulusid.
Meie meeskonnal on üldehitustööde valdkonnas üle 20 aasta kogemust ning oleme edukalt teostanud üle 80 objekti. Pikaajaline praktika võimalda ... Rohkem

Küsimused hanke korraldajale

Küsimus: private ID59528   02.01.2026 07:47
Tere!

Oleme huvitatud Teile hinnapakkumise koostamisest. Kas Teil on olemas projekt, pdf plaanid või mõõdud, mille põhjal saaksime pakkumise koostada?

Meie ettevõttel on kehtiv MTR registreering.

Tutvuda meie varasemate tööde ja klientide tagasisidega saate meie avalikul Hange.ee profiilil:
https://www.hange.ee/ettevote/59528/

Parimate soovidega,
Erik

Teavita reeglite rikkumisest

Korraldaja vastus: 04.01.2026 22:07

On olemas.

Teavita reeglite rikkumisest

Küsimus: private ID93490   02.01.2026 09:50
Tere,
Palun täpsustada kas võib teha pakkumise ka ainult elektritöödele?
Kas on olemas elektri põhiprojekt? kui ei ole siis tuleks kõigepealt teha elekti põhiprojekt, mille järgi saaks teha õiglase pakkumise.

Juhin hankijat jälgima, et elektritöid võib teostada ainult elektritööde ettevõte kes omab MTR või Tarvik registris Elektritööd registreeringut.

Teavita reeglite rikkumisest

Korraldaja vastus: 04.01.2026 22:17

Elektri põhiprojekti hetkel pole.

Teavita reeglite rikkumisest

Küsimus: private ID9125   03.01.2026 13:56
Tere, kas Teil oleks võimalik seletuskiri ja asendiplaan lisada.

Teavita reeglite rikkumisest

Korraldaja vastus: 04.01.2026 22:25

Asendiplaan lisatud

Teavita reeglite rikkumisest

Küsimus: private ID9125   05.01.2026 07:05
Tervist. Unustasite file lisada?

Teavita reeglite rikkumisest

Korraldaja vastus: 05.01.2026 07:16

kahjuks ei lase platvorm enam lisada.

Teavita reeglite rikkumisest

Küsimus: private ID9125   05.01.2026 07:18
Seletuskirja ka saate lisada?

Teavita reeglite rikkumisest

Korraldaja vastus: 14.01.2026 22:07

hetkel ei

Teavita reeglite rikkumisest

Küsimus: private ID93490   05.01.2026 09:53
Kui elektriprojekti ei ole veel tehtud siis on keeruline pakkuda elektritööde osa.
Elektritööde hind võib kõikuda väga suurel määral olenevalt milline lahendus on. saab muidugi pakkuda vastavalt ruutmeetritele, aga see tähendab et hind võib suuresti üle olla.

Teavita reeglite rikkumisest

Korraldaja vastus:
Hanke korraldaja ei ole küsimusele veel vastanud

Küsimus: private ID59528   05.01.2026 13:16
Kad saate pdf file siia ülesse laadida või mailile saata ?

Teavita reeglite rikkumisest

Korraldaja vastus: 14.01.2026 22:06

saadetud

Teavita reeglite rikkumisest

Lisa küsimus

Lisa küsimus

Minu pakkumine

Reeglid

Pakkumise kirjelduse väli on mõeldud pakkumise detailsemaks lahti kirjutamiseks. Pikema teksti mugavaks sisestamiseks klikkige kasti paremal ülaservas oleval ikoonil.
Pakkumist tehes on keelatud postitada enda kontaktandmeid (nimi, telefon, aadress jne). Me jälgime ja analüüsime pakkumisi, et vältida pettuseid ja reeglite rikkumisi.
Rikkumise puhul kasutajakonto blokeeritakse.

 

Teisi töid samas valdkonnas

Valdkonnas "Üldehitus" on 27 aktiivset tööd

Terassi õlitamine, 13,7 ruutu

Asukoht: Harjumaa, Saue
Aega jäänud: 5p 18h
Tehtud pakkumisi: 4

Eramaja ehitus

Asukoht: Harjumaa, Suurupi
Aega jäänud: 4p 18h
Tehtud pakkumisi: 4

Vanemad teated:

Vaata kõiki

Sellel veebilehel kasutatakse küpsiseid. Kasutamist jätkates nõustute küpsiste kasutamisega.

Sulge
 
Minu pakkumine

Reeglid

Pakkumise kirjelduse väli on mõeldud pakkumise detailsemaks lahti kirjutamiseks. Pikema teksti mugavaks sisestamiseks klikkige kasti paremal ülaservas oleval ikoonil.
Pakkumist tehes on keelatud postitada enda kontaktandmeid (nimi, telefon, aadress jne). Me jälgime ja analüüsime pakkumisi, et vältida pettuseid ja reeglite rikkumisi.
Rikkumise puhul kasutajakonto blokeeritakse.