+ Lisa oma töö      

Otsid ehitajat "Ehitusprojektid" valdkonnast?

Parima pakkumise ja teostaja leidmiseks lisa oma töö.

Hange on lõppenud!

Võitjaks osutus kasutaja ID 66770

Korraldaja hinnang tehtud tööle

 
5.0
21.12.2025
Töökiirus: 12345
Kvaliteet: 12345
Hind: 12345

Eramu eriosade projekteerimine

ID 126916

1074 vaatamist

Prindi

  • check Pakkumiste tegemine
    kuni 01.12.2025
  • check Võitja valik kuni
    01.12.2025
  • 3 Töö teostamine
    ja hinnang
Hanke lõpp: E, 1. detsember, 2025
Maakond: Harjumaa
Tööde lõpp: Kokkuleppel
Ehitusmaterjalid: Töö tellija poolt
Soovin pakkumisi: Summa kogu projektile

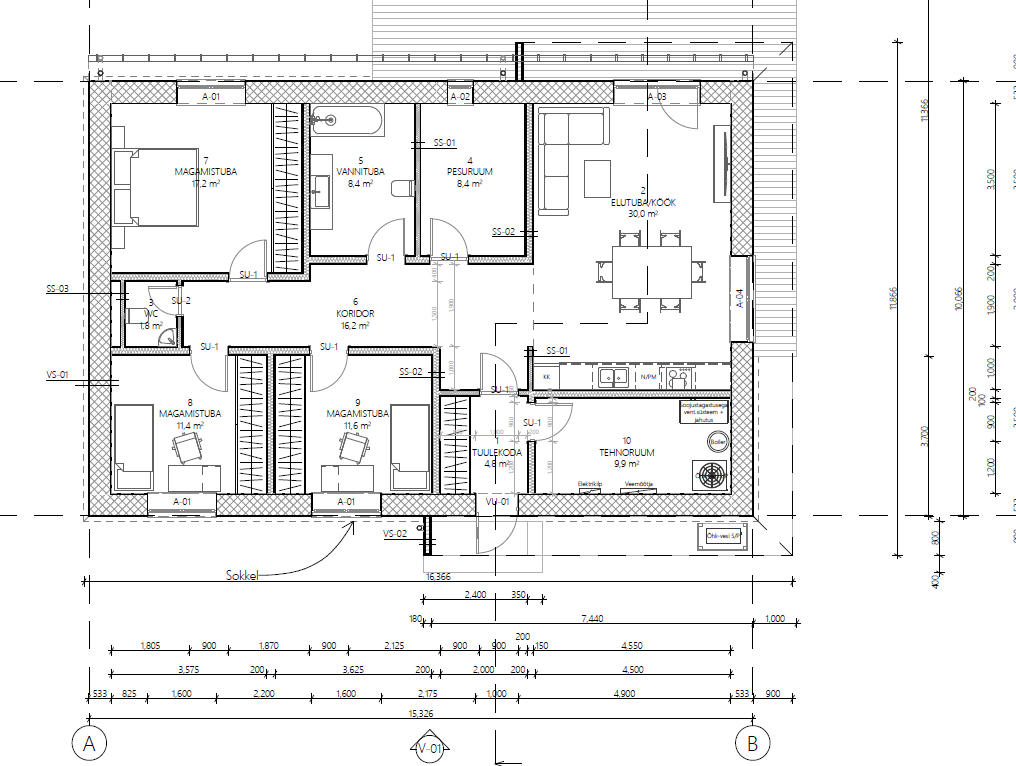
Töö sisu

Soovin pakkumist eramu eriosade projekteerimiseks. Hetkel on neid vaja puhtalt ehitusloa taotlemiseks.

Projekteeritavad eriosad:
1. Soojatagastusega sundventilatsioon
2. Küttesüsteem (õhk-vesi soojuspump põrandaküttega)
3. Vee- ja kanalisatsioonisüsteem
4. Elektripaigaldis

Viimsi vald nõuab eriosade projekte vähemalt eelprojekti staadiumis/mahus. (mida iganes see ka tähendama peaks)
Projekti tegijal/allkirjastajal peab olema vastavaeriosa kutsestandard, mida on võimalik MTR registrist kontrollida.

Pildid, video ja failid

Hanke korraldaja: eraisik ID6354

Pakkumised

Pakkumisi kokku: 3

Ettevõte Summa Käibemaks Lisatud Vestlus
Kasutaja ikoon ID91116
Pakkuja profiil Väike nool paremale
750€ Sisaldab KM Sisaldab KM 29.11.2025 Vestlus (0)

Pakkumise kirjeldus:

Tere,
Pakkumine elektri tugevvoolu põhiprojekti koostamiseks vastavalt Eesti Vabariigi kehtivatele normidele ja standarditele.
Projekt valmib 14 päeva jooksul peale lähteülesande ja alusmaterjali (DWG kujul) esitamist.
Hind sisaldab:
1. Seletuskirja
2. Spetsifikatsiooni
3. Struktuurskeemid (elektrivarustus, potentsiaalühtlustus)
4. Kilbiskeem (p ... Rohkem

Kasutaja ikoon ID79821
Pakkuja profiil Väike nool paremale
150€ KM lisandub KM lisandub 29.11.2025 Vestlus (0)

Pakkumise kirjeldus:

Pakkumine ainult elektriosa projektile
Eesti Vabariigi normidele ja EVS standarditele vastav eelprojekt ehitusloa taotlemiseks. Projekti valmimise aeg 7 päeva jooksul peale alusmaterjali (DWG kujul) ja lähteülesanne esitamist. Elektriprojekteerimise kogemus >10a., soovi korral esitame projektlahendused kogemuse alusel. Muudatused ja lisatööd lepitakse ... Rohkem

Kasutaja ikoon ID66770
Pakkuja profiil Väike nool paremale
400€ Ei ole KMKR Ei ole KMKR 01.12.2025 Vestlus (8)

Pakkumise kirjeldus:

Tere,
Antud hinnapakkumine sisaldab kütte-, ventilatsiooni-, veevarustuse- ja kanalisatsiooni hoonesiseste süsteemide eelprojekti eramajale.
Kütte projektiosa sisaldab süsteemi kirjeldust seletuskirjas.
Ventilatsiooni projektiosa sisaldab süsteemi kirjeldust seletuskirjas.
Veevarustuse projektiosa sisaldab süsteemi kirjeldust seletuskirjas.
Kanal ... Rohkem

Küsimused hanke korraldajale

Küsimus: private ID93490   28.11.2025 21:34
Kas elektrisüsteem on mõeldud tavaliste nn ON-OFF lahendustega ehk ilma tark juhtimiseta.

Teavita reeglite rikkumisest

Korraldaja vastus: 28.11.2025 22:53

Tavaline on-off lahendus

Teavita reeglite rikkumisest

Lisa küsimus

Lisa küsimus

Minu pakkumine

Reeglid

Pakkumise kirjelduse väli on mõeldud pakkumise detailsemaks lahti kirjutamiseks. Pikema teksti mugavaks sisestamiseks klikkige kasti paremal ülaservas oleval ikoonil.
Pakkumist tehes on keelatud postitada enda kontaktandmeid (nimi, telefon, aadress jne). Me jälgime ja analüüsime pakkumisi, et vältida pettuseid ja reeglite rikkumisi.
Rikkumise puhul kasutajakonto blokeeritakse.

 

Teisi töid samas valdkonnas

Valdkonnas "Ehitusprojektid" on 7 aktiivset tööd

Eramu ehitusprojekt

Asukoht: Tartumaa
Aega jäänud: 10p 22h
Tehtud pakkumisi: 8

no-img Pilt puudub

Maja mõõdistus

Asukoht: Valgamaa, Vanamõisa
Aega jäänud: 22h 15 min
Tehtud pakkumisi: 4

Vanemad teated:

Vaata kõiki

Sellel veebilehel kasutatakse küpsiseid. Kasutamist jätkates nõustute küpsiste kasutamisega.

Sulge
 
Minu pakkumine

Reeglid

Pakkumise kirjelduse väli on mõeldud pakkumise detailsemaks lahti kirjutamiseks. Pikema teksti mugavaks sisestamiseks klikkige kasti paremal ülaservas oleval ikoonil.
Pakkumist tehes on keelatud postitada enda kontaktandmeid (nimi, telefon, aadress jne). Me jälgime ja analüüsime pakkumisi, et vältida pettuseid ja reeglite rikkumisi.
Rikkumise puhul kasutajakonto blokeeritakse.