+ Lisa oma töö      

Otsid ehitajat "Elektritööd" valdkonnast?

Parima pakkumise ja teostaja leidmiseks lisa oma töö.

Uue elektrikilbi paigaldamine ja juhtmestiku osaline vahetamine

ID 126460

1559 vaatamist

Prindi

  • check Pakkumiste tegemine
    kuni 29.11.2025
  • check Võitja valik kuni
    06.12.2025
  • 3 Töö teostamine
    ja hinnang
Hanke lõpp: L, 29. november, 2025
Maakond: Harjumaa
Muu asula: Kasispea
Tööde lõpp: Kokkuleppel
Ehitusmaterjalid: Töö tegija poolt
Soovin pakkumisi: Summa kogu projektile

Töö sisu

Soovin tellida elektritööd, mis hõlmavad uue elektrikilbi paigaldamist ning teise korruse kaablite vahetust.

Töö kirjeldus:
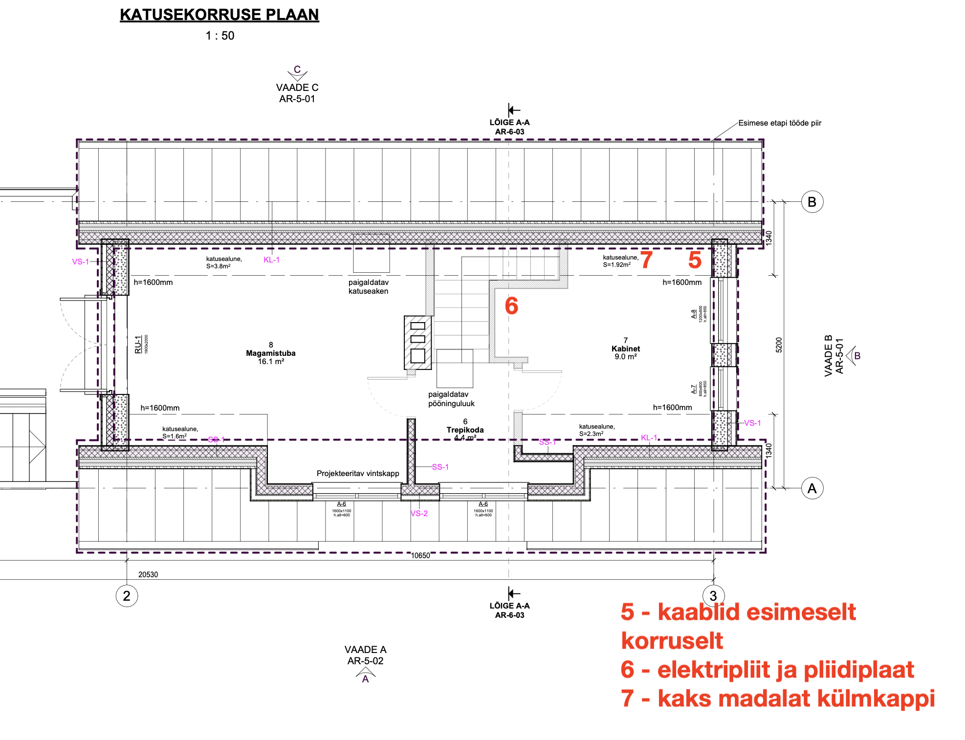
1. Majja sisse tulev elektrikaabel (pildil tähistatud nr 1) on heas korras. Alates sellest punktist on vaja paigaldada uus elektrikilp ja kogu teise korruse uus elektrijuhtmestik.
2. Uuest kilbist tuleb vedada uued kaablid teisele korrusele kööki, kuhu on planeeritud elektriahi, pliit, kaks külmkappi, ning edasi elutuppa (pistikud ja valgustus).
3. Esimese korruse kaabeldus on umbes 10 aastat tagasi paigaldatud ja heas korras; Hetkel tuleb see uue kilbiga ühendada (pildil tähistatud nr 2). Hiljem, kui esimesel korrusel põranda vahetame, siis tuleb sinna ka uus kaabeldus vedada.
4. Elektrikilbi asukoht on ära märgitud põhikorruse plaanil (nr 1).
5. Katusekorruse suuremate elektritarbijate asukohad on näidatud katusekorruse plaanil.
6. Katusekorruse valgustuse kaablite vahetamine vajab läbimõtlemist, kuna soovime olla võimalikult vähe destruktiivsed - tõenäoliselt tuleb kasutada pinnapealset kaabeldust.

Aeg: Töö teostamine võiks jääda jaanuarisse.

Pildid, video ja failid

Hanke korraldaja: eraisik ID95036

Pakkumised

Pakkumisi kokku: 4

Ettevõte Summa Käibemaks Lisatud Vestlus
Kasutaja ikoon ID94968
Pakkuja profiil Väike nool paremale
3 250€ Ei ole KMKR Ei ole KMKR 16.11.2025 Vestlus (2)

Pakkumise kirjeldus:

Eeldatav summa soovitud tööle. Lõplik hind selgub peale objektiga tutvumise.

Kasutaja ikoon ID91360
Pakkuja profiil Väike nool paremale
5 000€ Ei ole KMKR Ei ole KMKR 24.11.2025 Vestlus (2)
Kasutaja ikoon ID93990
Pakkuja profiil Väike nool paremale
2 100€ Sisaldab KM Sisaldab KM 24.11.2025 Vestlus (0)

Pakkumise kirjeldus:

Minu pakkumine sisaldab vajaminevaid kvaliteetseid elektrimaterjale ja elektripaigaldus tööd samuti teise korruse elektriskeemide koostamist. Tööd teostavad kaks litsentseeritud spetsialistid. Võimalus töötada ka nädalavahetusel.

Kasutaja ikoon ID94385
Pakkuja profiil Väike nool paremale
2 500€ Sisaldab KM Sisaldab KM 24.11.2025 Vestlus (0)

Pakkumise kirjeldus:

Töid teevad kutsetunnistusega elektrikud.

Küsimused hanke korraldajale

Küsimus: private ID82386   15.11.2025 20:22
Tere!

Kas soovite ka kõikide pistikute ja lampide paigaldust ka?
Kui tööd on teostatud, kas audit on ka vaja teostada? Kui jah, kas töö teostaja tegeleb sellega?

Lugupidamisega

Teavita reeglite rikkumisest

Korraldaja vastus: 15.11.2025 20:33

Tere!
Kas soovite ka kõikide pistikute ja lampide paigaldust ka? - Ja.
Kui tööd on teostatud, kas audit on ka vaja teostada? - Ja, aga selle saab teostada alles siis, kui projekti järgmises staadiumis teeme ära ka esimese korruse remonditööd, mille käigus saab ära teha ka esimese korruse kaableduse. Kui kõik sujub, siis see oleks töö teostajale ka järgmine töö.
Kui jah, kas töö teostaja tegeleb sellega? - Ja.

Teavita reeglite rikkumisest

Küsimus: private ID94694   18.11.2025 17:05
Tere! Kas teil on pistikupesade- ja valgustuseplaan? Mis on seinamaterjal?

Teavita reeglite rikkumisest

Korraldaja vastus: 19.11.2025 07:33

Tere, Seinamaterjal on köögis osb-plaat ja elutoas vineer, mille eemaldan vajadusel ise.
Plaani ei ole hetkel - kööki tuleb kaks laevalgustit ja kolm seinapistikut lisaks külmkappide ja ahju/lauaplaadi ühendustele, elutuppa tuleb üks laevalgusti ja kolm seinapistikut.
Edasistele küsimustele vastan hea meelega, kui midagi jäi vastamata!

Teavita reeglite rikkumisest

Lisa küsimus

Lisa küsimus

Minu pakkumine

Reeglid

Pakkumise kirjelduse väli on mõeldud pakkumise detailsemaks lahti kirjutamiseks. Pikema teksti mugavaks sisestamiseks klikkige kasti paremal ülaservas oleval ikoonil.
Pakkumist tehes on keelatud postitada enda kontaktandmeid (nimi, telefon, aadress jne). Me jälgime ja analüüsime pakkumisi, et vältida pettuseid ja reeglite rikkumisi.
Rikkumise puhul kasutajakonto blokeeritakse.

 

Teisi töid samas valdkonnas

Valdkonnas "Elektritööd" on 5 aktiivset tööd

Vana talu elektrisüsteemi uuendamine (kilp, pistikud, välivalgustus, EV valmidus)

Asukoht: Raplamaa, Suurekivi
Aega jäänud: 1p 10h
Tehtud pakkumisi: 5

Kaablite vahetus paneelmaja korteris ja siseviimistlus

Asukoht: Harjumaa, Tallinn
Aega jäänud: 6p 10h
Tehtud pakkumisi: 3

Vanemad teated:

Vaata kõiki

Sellel veebilehel kasutatakse küpsiseid. Kasutamist jätkates nõustute küpsiste kasutamisega.

Sulge
 
Minu pakkumine

Reeglid

Pakkumise kirjelduse väli on mõeldud pakkumise detailsemaks lahti kirjutamiseks. Pikema teksti mugavaks sisestamiseks klikkige kasti paremal ülaservas oleval ikoonil.
Pakkumist tehes on keelatud postitada enda kontaktandmeid (nimi, telefon, aadress jne). Me jälgime ja analüüsime pakkumisi, et vältida pettuseid ja reeglite rikkumisi.
Rikkumise puhul kasutajakonto blokeeritakse.