+ Lisa oma töö      

Otsid ehitajat "Projekteerimine" valdkonnast?

Parima pakkumise ja teostaja leidmiseks lisa oma töö.

Hange on lõppenud!

Võitjaks osutus kasutaja ID 87262

Suvila renoveerimise projekti koostamine

ID 125402

1211 vaatamist

Prindi

  • check Pakkumiste tegemine
    kuni 01.11.2025
  • check Võitja valik kuni
    01.11.2025
  • 3 Töö teostamine
    ja hinnang
Hanke lõpp: L, 1. november, 2025
Maakond: Harjumaa
Muu asula: Laulasmaa
Tööde lõpp: Kokkuleppel
Ehitusmaterjalid: Töö tegija poolt
Soovin pakkumisi: Summa kogu projektile

Töö sisu

Töö peaks sisaldama:
1. Mahu arvutust (ehitisregistrile tõendamiseks, et hoone maht ei kasva üle 30%).
2. Projekti (üldarhitektuur, elekter, vesi hoone sees) vastavalt taolistele tehtavatele töödele mõeldud Eesti Vabariigi seaduse nõuetele, et esitada ehitisteatis ja oleks aluseks ehitajale.

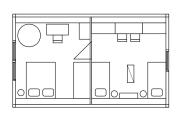
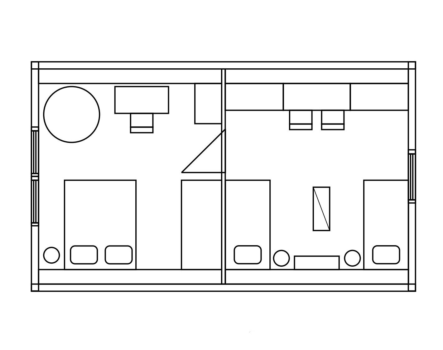
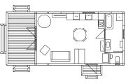
Hoone on püstitatud Simo-K suvila projekti järgi.

Muudatused on planeeritud peamiselt laiendamise, põranda/katuse soojustamise, akende/uste eemaldamise/lisamise, siseseinte liigutamise vaatest. Laienemine toimub majaesise terrassi (1 ja 2 korrus) arvelt.

Hankes toodud pildid on varasemalt enda poolt koostatud esialgsed plaanid.

Mahuarvutuse ja projekti valmimistähtaeg peaks olema 2025 aasta sees.

Pildid, video ja failid

Hanke korraldaja: eraisik ID63388

Pakkumised

Pakkumisi kokku: 5

Ettevõte Summa Käibemaks Lisatud Vestlus
Kasutaja ikoon ID37465
Pakkuja profiil Väike nool paremale
1 190€ Ei ole KMKR Ei ole KMKR 21.10.2025 Vestlus (0)

Pakkumise kirjeldus:

Tere

Hind sisaldab arhitektuurse eelprojekti koostamist hoone rekonstrueerimiseks ja laiendamiseks mahus vähem kui 33%.

Töö sisaldab:

-Arhitektuurset eelprojekti: vundamendi plaani, korruste plaane, katuseplaan, lõige, vaateid, avatäidete spetsifikatsiooni ja asendiplaani koostamist.
-3D vaateid
-Seletuskirja
-Mahu arvutusi tõendamaks, et h ... Rohkem

Kasutaja ikoon ID69164
Pakkuja profiil Väike nool paremale
1 600€ Ei ole KMKR Ei ole KMKR 21.10.2025 Vestlus (0)

Pakkumise kirjeldus:

Hoone ehitusprojekt eelprojekti staadiumis.

Koostatav projekt vastab EVS 932:2017 ja MKM määruse nr. 97 „Nõuded ehitusprojektile1" nõuetele.

Märkused:
1. Hinnapakkumine ei sisalda Topo-geodeetiliste, ehitusgeoloogiliste, dendroloogiliste uuringute koostamist, ega nende maksumust,
2. Projektiga ja projekteerimisega seotud kõik kooskõlastustas ... Rohkem

Kasutaja ikoon ID86806
Pakkuja profiil Väike nool paremale
1 500€ Sisaldab KM Sisaldab KM 21.10.2025 Vestlus (0)

Pakkumise kirjeldus:

Tere!

Esitame teile hinnapakkumise:
- Ehitusprojekt vastavalt kehtivatele standartitele ja nõetele eelprojekti mahus
- Objekti külastamine kohapeal
- Projekti koosseisus: seletuskiri, asendiplaan, vaated, lõiked, korruse plaan, katuseplaan, avatäidete spetsifikatsioonid
- 3D vaated hoonest
- Ehitusloa taotlemine ja kooskõlastamine
- Projekti k ... Rohkem

Kasutaja ikoon ID42152
Pakkuja profiil Väike nool paremale
1 285€ Ei ole KMKR Ei ole KMKR 22.10.2025 Vestlus (0)

Pakkumise kirjeldus:

Ehitusprojekt eelprojekti staadiumis (arh-eh osa koos eriosadega)
PAkkumsihind sisaldab:
Seletuskiri
Asendiplaan (vajalik geoalus, mille hind eraldi tööna on 750 EUR)
Vund ja korruse plaanid
KAtuse plaan
Hoone lõige
Hoone vaated
Avatäidete joonised
Jm asjakohased vajalikud joonised

Kooskõlastused ehitusteatise registreerimiseks
Ehitusteatis ... Rohkem

Kasutaja ikoon ID87262
Pakkuja profiil Väike nool paremale
1 300€ Sisaldab KM Sisaldab KM 27.10.2025 Vestlus (0)

Pakkumise kirjeldus:

Tere!


Hea meelega koostame Teile pakkumise, mis on järgmine:


I EELPROJEKT
- Digitaliseerime olemasoleva olukorra ja koostame ehitusprojekti vastavalt kehtivatele standarditele ja vajalikus mahus

- Meil on kogemus nii väiksemate kui ka suuremahuliste projektidega. Varasemate töödega saab tutvuda meie kodulehel. Oleme Teatmikus registreeritud ... Rohkem

Küsimused hanke korraldajale

Hanke korraldajale ei ole veel küsimusi esitatud.

Lisa küsimus

Lisa küsimus

Minu pakkumine

Reeglid

Pakkumise kirjelduse väli on mõeldud pakkumise detailsemaks lahti kirjutamiseks. Pikema teksti mugavaks sisestamiseks klikkige kasti paremal ülaservas oleval ikoonil.
Pakkumist tehes on keelatud postitada enda kontaktandmeid (nimi, telefon, aadress jne). Me jälgime ja analüüsime pakkumisi, et vältida pettuseid ja reeglite rikkumisi.
Rikkumise puhul kasutajakonto blokeeritakse.

 

Teisi töid samas valdkonnas

Valdkonnas "Projekteerimine" on 6 aktiivset tööd

no-img Pilt puudub

1-kordse 120 m2 elumaja põhiprojekt

Asukoht: Harjumaa, Metsanurme
Aega jäänud: 8p 13h
Tehtud pakkumisi: 4

no-img Pilt puudub

Saunamaja eelprojekt ehitusteatiseks

Asukoht: Lääne-Virumaa
Aega jäänud: 1p 13h
Tehtud pakkumisi: 3

Vanemad teated:

Vaata kõiki

Sellel veebilehel kasutatakse küpsiseid. Kasutamist jätkates nõustute küpsiste kasutamisega.

Sulge
 
Minu pakkumine

Reeglid

Pakkumise kirjelduse väli on mõeldud pakkumise detailsemaks lahti kirjutamiseks. Pikema teksti mugavaks sisestamiseks klikkige kasti paremal ülaservas oleval ikoonil.
Pakkumist tehes on keelatud postitada enda kontaktandmeid (nimi, telefon, aadress jne). Me jälgime ja analüüsime pakkumisi, et vältida pettuseid ja reeglite rikkumisi.
Rikkumise puhul kasutajakonto blokeeritakse.