+ Lisa oma töö      

Otsid ehitajat "Ehitusprojektid" valdkonnast?

Parima pakkumise ja teostaja leidmiseks lisa oma töö.

Korteri ümberehituse ehitusprojekt ja ehitusteatis

ID 124496

1709 vaatamist

Prindi

  • check Pakkumiste tegemine
    kuni 30.10.2025
  • check Võitja valik kuni
    06.11.2025
  • 3 Töö teostamine
    ja hinnang
Hanke lõpp: N, 30. oktoober, 2025
Maakond: Harjumaa
Linn: Tallinn
Tööde lõpp: N, 20. november, 2025
Ehitusmaterjalid: Töö tegija poolt
Soovin pakkumisi: Summa kogu projektile

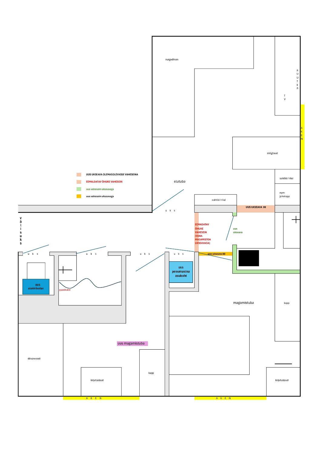
Töö sisu

Sooviksin hinnapakkumist nõuetekohasele projektile ja kooskõlastamisele seoses korteri renoveerimis- ja ümberehitusega Linnaplaneerimise Ameti poolt küsitud projektidele:
1) Uue ukseava projekt korteri olemasolevasse kandvasse vaheseina - vajalik seoses kööginurga toomisega elutoa kõrvale.
2) Kahe väikese vaheseina (ukseavaga) projekt uuele kööginurgale ja väiksemaks muutuvale magamistoale.
3) Vee-kanalisatsiooniprojekt seoses
- köögi ja pesumasina asukoha muutmisega
- elektriboileri paigaldamisega tualettruumi,
- dušisegisti asukoha muutmisega olemasolevas vannitoas
4) Köögi väljatõmbe vent.toru projekt olemasolevasse vent.šahti
Projektide kooskõlastused ehr.ee

Pildid, video ja failid

Hanke korraldaja: eraisik ID55427

Pakkumised

Pakkumisi kokku: 3

Ettevõte Summa Käibemaks Lisatud Vestlus
Kasutaja ikoon ID42152
Pakkuja profiil Väike nool paremale
350€ Ei ole KMKR Ei ole KMKR 01.10.2025 Vestlus (0)

Pakkumise kirjeldus:

Ehitusprojekt eluruumi ümberehitamiseks eelprojekti staadiumis (arh-eh osa koos eriosadega)
Pakkumsihind sisaldab:
Seletuskiri
Asendiskeem Maa-ameti ortofotol
Korruse plaan
Lõiked, sõlmjoonised
Avatäidete joonised

Kooskõlastused ehitusteatise registreerimiseks
Ehitusteatise esitamine kOV
Ehitusteatise registreerimine KOV

Riigilõivuvaba

Kasutaja ikoon ID84172
Pakkuja profiil Väike nool paremale
800€ KM lisandub KM lisandub 09.10.2025 Vestlus (2)

Pakkumise kirjeldus:

Eelprojekti maht vastaval määrusele, nõuded ehitusprojektile.

Kasutaja ikoon ID5128
Pakkuja profiil Väike nool paremale
1 400€ KM lisandub KM lisandub 15.10.2025 Vestlus (0)

Pakkumise kirjeldus:

Hinnas hankes küsitud tööd. Eraisik saab tasuda ilma lisanduva km-ta.

Küsimused hanke korraldajale

Küsimus: private ID84172   01.10.2025 14:39
millal on tööd teostatud?

Teavita reeglite rikkumisest

Korraldaja vastus: 03.10.2025 06:51

Projekti oleks vaja novembris

Teavita reeglite rikkumisest

Küsimus: private ID84172   01.10.2025 14:39
Või on planeeritud tulevikus.

Teavita reeglite rikkumisest

Korraldaja vastus: 01.10.2025 20:32

Jah tulevikus planeeritud, aga suhteliselt kohe.

Teavita reeglite rikkumisest

Lisa küsimus

Lisa küsimus

Minu pakkumine

Reeglid

Pakkumise kirjelduse väli on mõeldud pakkumise detailsemaks lahti kirjutamiseks. Pikema teksti mugavaks sisestamiseks klikkige kasti paremal ülaservas oleval ikoonil.
Pakkumist tehes on keelatud postitada enda kontaktandmeid (nimi, telefon, aadress jne). Me jälgime ja analüüsime pakkumisi, et vältida pettuseid ja reeglite rikkumisi.
Rikkumise puhul kasutajakonto blokeeritakse.

 

Teisi töid samas valdkonnas

Valdkonnas "Ehitusprojektid" on 6 aktiivset tööd

Ehitusprojekti koostamine

Asukoht: Valgamaa, Roobe
Aega jäänud: 23p 8h
Tehtud pakkumisi: 5

no-img Pilt puudub

„Eskiislahendus 4–6 korteriga elamu rajamiseks (Pärnu)”

Asukoht: Pärnumaa, Pärnu
Aega jäänud: 12p 8h
Tehtud pakkumisi: 4

Vanemad teated:

Vaata kõiki

Sellel veebilehel kasutatakse küpsiseid. Kasutamist jätkates nõustute küpsiste kasutamisega.

Sulge
 
Minu pakkumine

Reeglid

Pakkumise kirjelduse väli on mõeldud pakkumise detailsemaks lahti kirjutamiseks. Pikema teksti mugavaks sisestamiseks klikkige kasti paremal ülaservas oleval ikoonil.
Pakkumist tehes on keelatud postitada enda kontaktandmeid (nimi, telefon, aadress jne). Me jälgime ja analüüsime pakkumisi, et vältida pettuseid ja reeglite rikkumisi.
Rikkumise puhul kasutajakonto blokeeritakse.