+ Lisa oma töö      

Otsid ehitajat "Ehitusprojektid" valdkonnast?

Parima pakkumise ja teostaja leidmiseks lisa oma töö.

Hange on lõppenud!

Võitjaks osutus kasutaja ID 48870

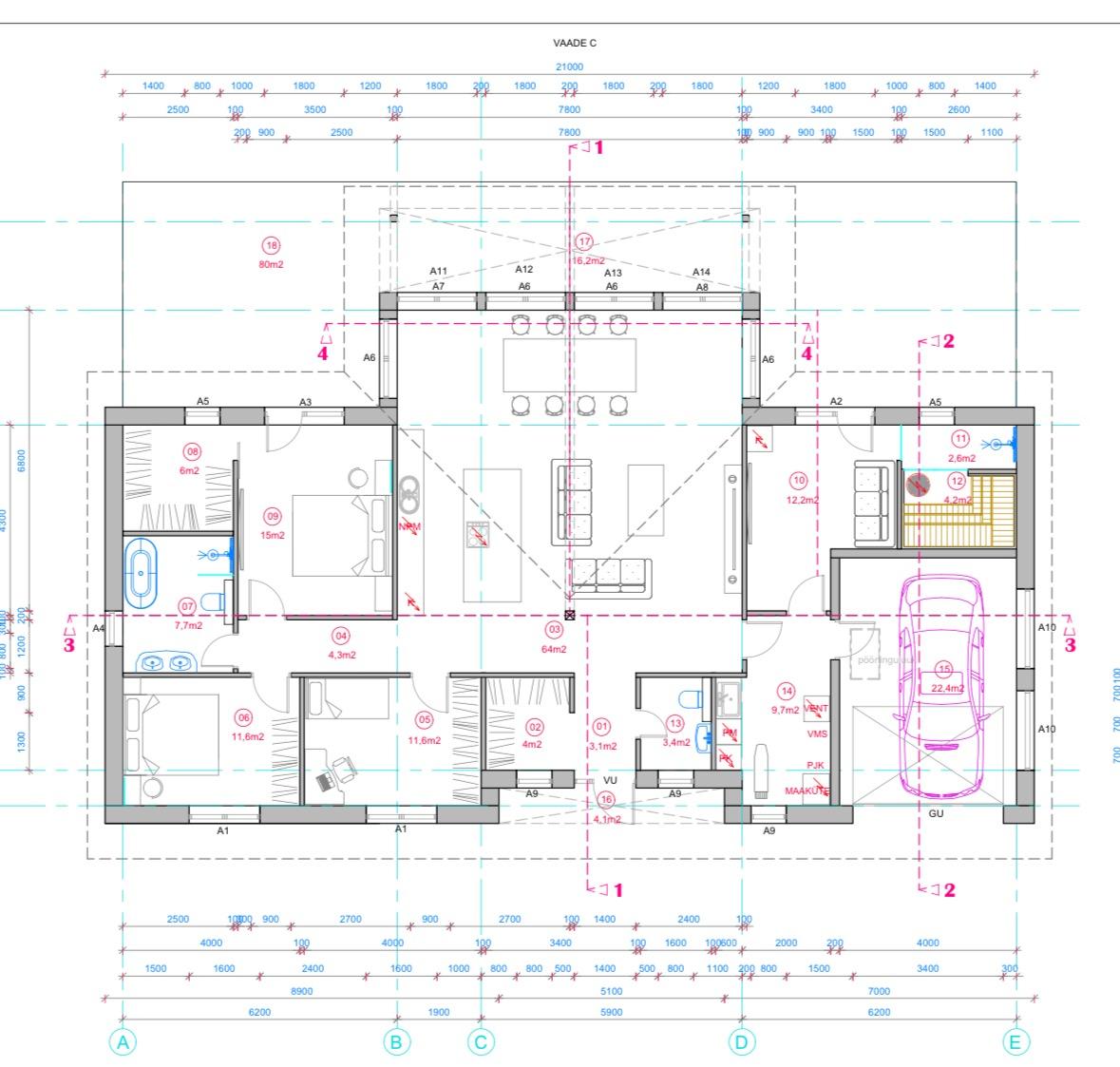
181 m2 maja vundamendi tööprojekt

ID 124066

884 vaatamist

Prindi

  • check Pakkumiste tegemine
    kuni 25.09.2025
  • check Võitja valik kuni
    02.10.2025
  • 3 Töö teostamine
    ja hinnang
Hanke lõpp: N, 25. september, 2025
Maakond: Pärnumaa
Tööde lõpp: Kokkuleppel
Ehitusmaterjalid: Töö tellija poolt
Soovin pakkumisi: Summa kogu projektile

Töö sisu

Soovin plaatvundamendi tööprojekti koos küttetorude paigaldus projektiga

Tellija eraisik
Valmis võiks olla oktoobri lõpuks

Pildid, video ja failid

Hanke korraldaja: ettevõte ID84674

Pakkumised

Pakkumisi kokku: 2

Ettevõte Summa Käibemaks Lisatud Vestlus
Kasutaja ikoon ID48870
Pakkuja profiil Väike nool paremale
750€ Ei ole KMKR Ei ole KMKR 24.09.2025 Vestlus (0)

Pakkumise kirjeldus:

Tere,
pakkumise hind sisaldab järgmist:
vundamendi ehituskonstruktsioonide projekteerimine põhiprojekti staadiumis kooskõlas arhitektuurse projektiga (vt EVS 932:2017)
Projekti sisu:
1. konstruktsiooniarvutused
2. joonised
3. vundamendi plaan

Olen insener, arhitekt tase 7.
Omame MTR registreeringut, EEP-EEO-EPE-EEK,
EEP: arhitektuuri osa
hoone ... Rohkem

Kasutaja ikoon ID93842
Pakkuja profiil Väike nool paremale
985€ Sisaldab KM Sisaldab KM 25.09.2025 Vestlus (0)

Pakkumise kirjeldus:

Koostame plaatvundamendi tööprojekti koos küttetorude paigalduse projektiga.

Pakume projekteerimis- ja järelevalveteenust alates 2013. aastast.

Küsimused hanke korraldajale

Hanke korraldajale ei ole veel küsimusi esitatud.

Lisa küsimus

Lisa küsimus

Minu pakkumine

Reeglid

Pakkumise kirjelduse väli on mõeldud pakkumise detailsemaks lahti kirjutamiseks. Pikema teksti mugavaks sisestamiseks klikkige kasti paremal ülaservas oleval ikoonil.
Pakkumist tehes on keelatud postitada enda kontaktandmeid (nimi, telefon, aadress jne). Me jälgime ja analüüsime pakkumisi, et vältida pettuseid ja reeglite rikkumisi.
Rikkumise puhul kasutajakonto blokeeritakse.

 

Teisi töid samas valdkonnas

Valdkonnas "Ehitusprojektid" on 5 aktiivset tööd

no-img Pilt puudub

Kortermaja kõigi ruumide mõõdistamine ja DWG faili koostamine

Asukoht: Harjumaa, Tallinn
Aega jäänud: 2p
Tehtud pakkumisi: 2

Korterelamu mõõdistusprojekti koostamine ja jooniste digitaliseerimine

Asukoht: Lääne-Virumaa, Tapa
Aega jäänud: 5p
Tehtud pakkumisi: 2

Vanemad teated:

Vaata kõiki

Sellel veebilehel kasutatakse küpsiseid. Kasutamist jätkates nõustute küpsiste kasutamisega.

Sulge
 
Minu pakkumine

Reeglid

Pakkumise kirjelduse väli on mõeldud pakkumise detailsemaks lahti kirjutamiseks. Pikema teksti mugavaks sisestamiseks klikkige kasti paremal ülaservas oleval ikoonil.
Pakkumist tehes on keelatud postitada enda kontaktandmeid (nimi, telefon, aadress jne). Me jälgime ja analüüsime pakkumisi, et vältida pettuseid ja reeglite rikkumisi.
Rikkumise puhul kasutajakonto blokeeritakse.