+ Lisa oma töö      

Otsid ehitajat "Elektritööd" valdkonnast?

Parima pakkumise ja teostaja leidmiseks lisa oma töö.

Valgustite, LED-ribade, pistikute ja lülitite paigaldamine

ID 124059

805 vaatamist

Prindi

  • check Pakkumiste tegemine
    kuni 25.09.2025
  • check Võitja valik kuni
    02.10.2025
  • 3 Töö teostamine
    ja hinnang
Hanke lõpp: N, 25. september, 2025
Maakond: Läänemaa
Linn: Haapsalu
Tööde lõpp: Kokkuleppel
Ehitusmaterjalid: Töö tellija poolt
Soovin pakkumisi: Summa kogu projektile

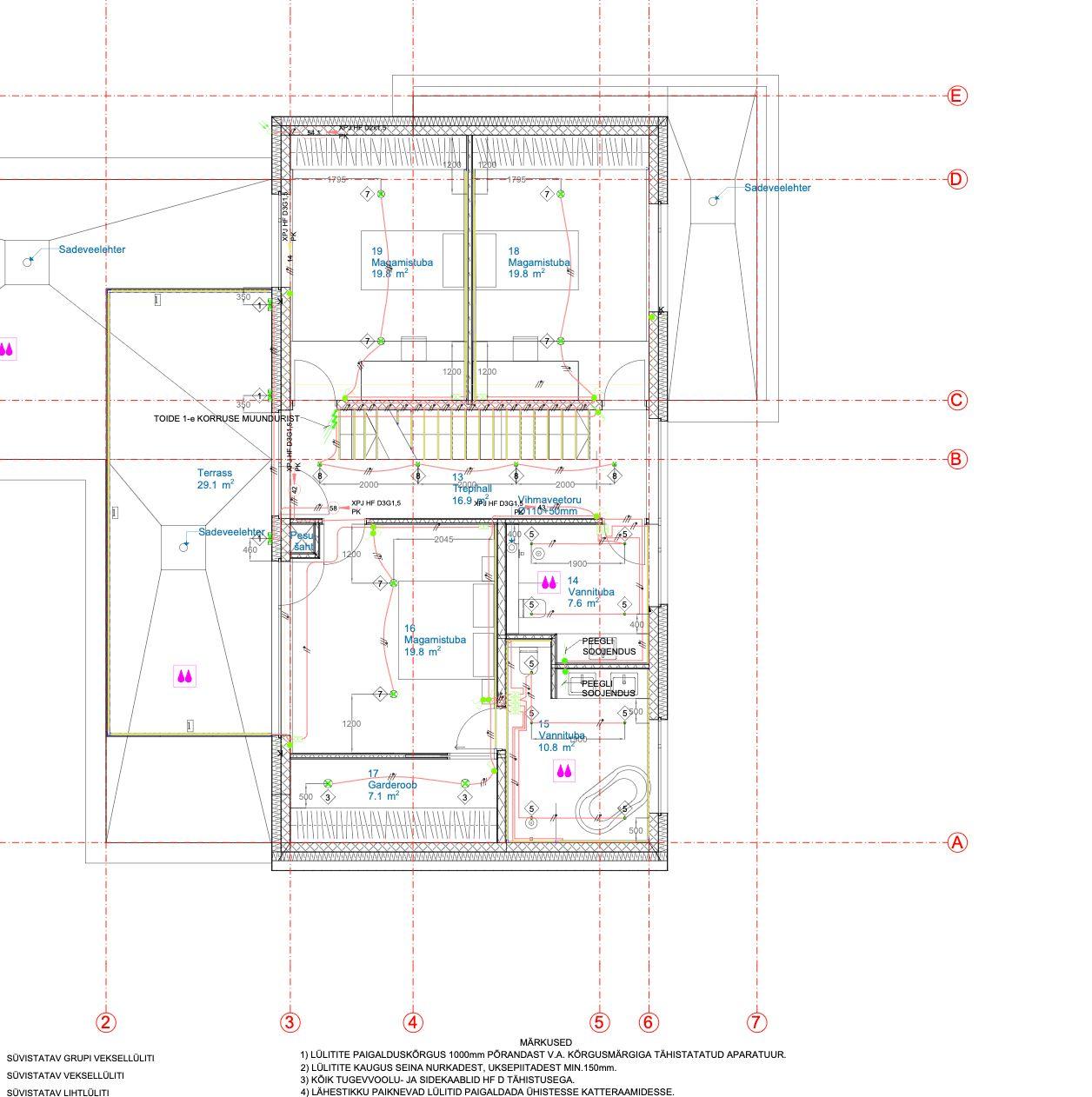
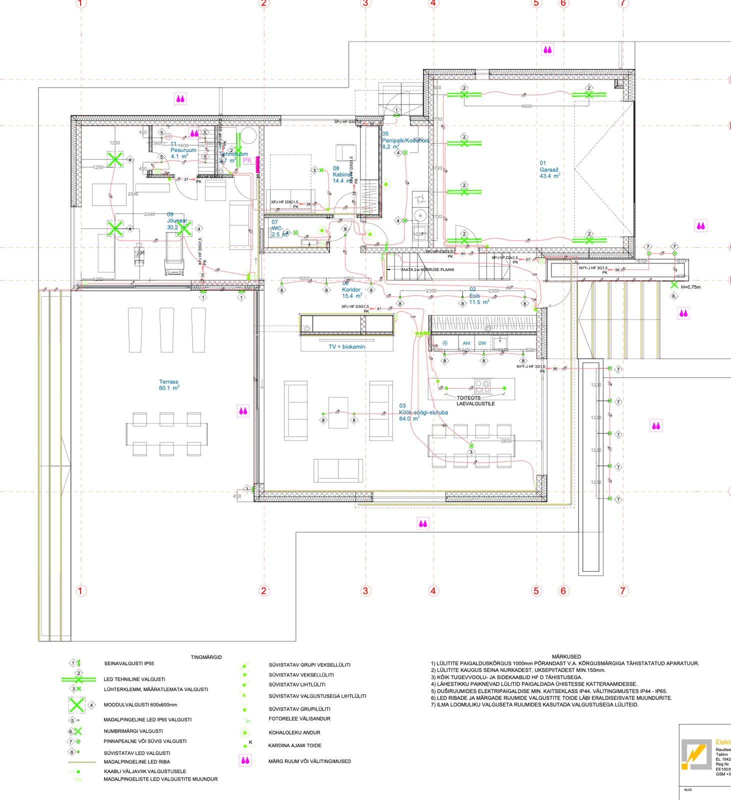
Töö sisu

Otsime elektrikku

Soovime leida kogenud elektrikku, kes aitaks uues ehitises teostada järgmised tööd:

- valgustite paigaldus (süvistatavad ja ripp)
- LED ribade paigaldus (koos profiilide, toiteplokkide ja dimmeritega)
- pistikupesade paigaldus
- lülitite paigaldus

Töö toimub uues hoones, kus kommunikatsioonid ja kaablid on ette valmistatud ja ruumid on lõppviimistlusel.

Palume lisada pakkumisse:
- tööde teostamise hind
- orienteeruv ajakava tööde teostamiseks

Pildid, video ja failid

Hanke korraldaja: eraisik ID73052

Pakkumised

Pakkumisi kokku: 0

Küsimused hanke korraldajale

Küsimus: private ID93490   24.09.2025 10:09
Tere,

Palun lisada ka pildid kus näha pistikupesad.
Kas kõik materjal hankija poolt?

Teavita reeglite rikkumisest

Korraldaja vastus:
Hanke korraldaja ei ole küsimusele veel vastanud

Küsimus: private ID93490   24.09.2025 10:11
Kas seina valgustid sammuti vaja paigaldada?

Teavita reeglite rikkumisest

Korraldaja vastus: 24.09.2025 10:28

Tere!

Seinavalgustid on ainult väljas.

Teavita reeglite rikkumisest

Küsimus: private ID93490   24.09.2025 13:02
saan siis aru, et paigaldada on vaja ainud hoone sisesed valgustid, LED ribad, pistikupesad ja lülitid.
Kas kõik materjal on tellija poolt ja vaja ainult paigaldust?
Palun lisada siia ka pildid kus näha pistikupesasid.

Ette tänades

Teavita reeglite rikkumisest

Korraldaja vastus:
Hanke korraldaja ei ole küsimusele veel vastanud

Lisa küsimus

Lisa küsimus

Minu pakkumine

Reeglid

Pakkumise kirjelduse väli on mõeldud pakkumise detailsemaks lahti kirjutamiseks. Pikema teksti mugavaks sisestamiseks klikkige kasti paremal ülaservas oleval ikoonil.
Pakkumist tehes on keelatud postitada enda kontaktandmeid (nimi, telefon, aadress jne). Me jälgime ja analüüsime pakkumisi, et vältida pettuseid ja reeglite rikkumisi.
Rikkumise puhul kasutajakonto blokeeritakse.

 

Teisi töid samas valdkonnas

Valdkonnas "Elektritööd" on 5 aktiivset tööd

Vana talu elektrisüsteemi uuendamine (kilp, pistikud, välivalgustus, EV valmidus)

Asukoht: Raplamaa, Suurekivi
Aega jäänud: 1p 10h
Tehtud pakkumisi: 5

Kaablite vahetus paneelmaja korteris ja siseviimistlus

Asukoht: Harjumaa, Tallinn
Aega jäänud: 6p 10h
Tehtud pakkumisi: 3

Vanemad teated:

Vaata kõiki

Sellel veebilehel kasutatakse küpsiseid. Kasutamist jätkates nõustute küpsiste kasutamisega.

Sulge
 
Minu pakkumine

Reeglid

Pakkumise kirjelduse väli on mõeldud pakkumise detailsemaks lahti kirjutamiseks. Pikema teksti mugavaks sisestamiseks klikkige kasti paremal ülaservas oleval ikoonil.
Pakkumist tehes on keelatud postitada enda kontaktandmeid (nimi, telefon, aadress jne). Me jälgime ja analüüsime pakkumisi, et vältida pettuseid ja reeglite rikkumisi.
Rikkumise puhul kasutajakonto blokeeritakse.