+ Lisa oma töö      

Otsid ehitajat "Projekteerimine" valdkonnast?

Parima pakkumise ja teostaja leidmiseks lisa oma töö.

Hange on lõppenud!

Võitjaks osutus kasutaja ID 87046

Küttesüsteemi projekt, teostusjoonised.

ID 122398

826 vaatamist

Prindi

  • check Pakkumiste tegemine
    kuni 28.08.2025
  • check Võitja valik kuni
    28.08.2025
  • 3 Töö teostamine
    ja hinnang
Hanke lõpp: N, 28. august, 2025
Maakond: Harjumaa
Linn: Tallinn
Tööde lõpp: Kokkuleppel
Ehitusmaterjalid: Töö tegija poolt
Soovin pakkumisi: Tüki- või ühikuhinda

Töö sisu

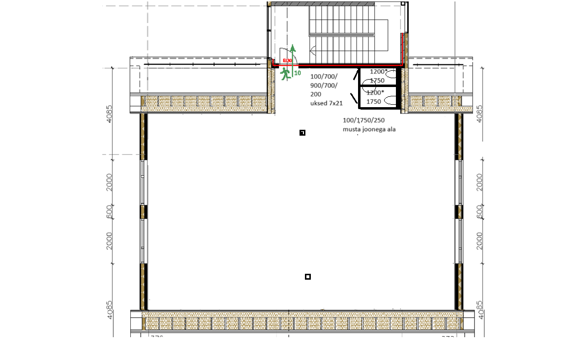
Palun pakkumist küttesüsteemi teostusjooniste projekteerimisele. Samuti vajadus kohe ka uute projektide küttesüsteemide ning vent, jahutus süsteemide projekteerimine. Esimeseks muidugi valminud hoone küttesüsteemi teostusjoonised. Lisan mõned pildid projektist ning põrandakütte paigaldusest. Pilte ja jooniseid kogu süsteemi kohta on muidugi palju aga need saab saata, kui tööga pihta hakata.
Lühidalt kirjeldan süsteemi: õhk-vesi soojuspump, esimesel korrusel kontoriruumides põrandaküte (ca 70 m2) ja saalis (ca 140 m2) laekonvektorid. Teisel korrusel (ca 125 m2) põrandaküte.
Jooniste vajadus esimesel võimalusel.
Lugupidamisega,
E.M.

Pildid, video ja failid

Hanke korraldaja: ettevõte ID33951

Pakkumised

Pakkumisi kokku: 2

Ettevõte Summa Käibemaks Lisatud Vestlus
Kasutaja ikoon ID87046
Pakkuja profiil Väike nool paremale
850€ KM lisandub KM lisandub 27.08.2025 Vestlus (3)

Pakkumise kirjeldus:

Tere,
Küte, vent ja jahutussüsteemi projekt. Insener tase 7 kinnitusega.

Kasutaja ikoon ID63115
Pakkuja profiil Väike nool paremale
800€ KM lisandub KM lisandub 27.08.2025 Vestlus (0)

Pakkumise kirjeldus:

Tere,

Hinnapakkumine sisaldab kütte teostusjoonised ja vastutava isiku allkirja.

Küsimused hanke korraldajale

Hanke korraldajale ei ole veel küsimusi esitatud.

Lisa küsimus

Lisa küsimus

Minu pakkumine

Reeglid

Pakkumise kirjelduse väli on mõeldud pakkumise detailsemaks lahti kirjutamiseks. Pikema teksti mugavaks sisestamiseks klikkige kasti paremal ülaservas oleval ikoonil.
Pakkumist tehes on keelatud postitada enda kontaktandmeid (nimi, telefon, aadress jne). Me jälgime ja analüüsime pakkumisi, et vältida pettuseid ja reeglite rikkumisi.
Rikkumise puhul kasutajakonto blokeeritakse.

 

Teisi töid samas valdkonnas

Valdkonnas "Projekteerimine" on 6 aktiivset tööd

no-img Pilt puudub

1-kordse 120 m2 elumaja põhiprojekt

Asukoht: Harjumaa, Metsanurme
Aega jäänud: 8p 20h
Tehtud pakkumisi: 4

no-img Pilt puudub

Saunamaja eelprojekt ehitusteatiseks

Asukoht: Lääne-Virumaa
Aega jäänud: 1p 20h
Tehtud pakkumisi: 3

Vanemad teated:

Vaata kõiki

Sellel veebilehel kasutatakse küpsiseid. Kasutamist jätkates nõustute küpsiste kasutamisega.

Sulge
 
Minu pakkumine

Reeglid

Pakkumise kirjelduse väli on mõeldud pakkumise detailsemaks lahti kirjutamiseks. Pikema teksti mugavaks sisestamiseks klikkige kasti paremal ülaservas oleval ikoonil.
Pakkumist tehes on keelatud postitada enda kontaktandmeid (nimi, telefon, aadress jne). Me jälgime ja analüüsime pakkumisi, et vältida pettuseid ja reeglite rikkumisi.
Rikkumise puhul kasutajakonto blokeeritakse.