+ Lisa oma töö      

Otsid ehitajat "Ehitusprojektid" valdkonnast?

Parima pakkumise ja teostaja leidmiseks lisa oma töö.

Hange on lõppenud!

Võitjaks osutus kasutaja ID 87046

Soojuspumba, põrandakütte ja ventilatsiooniprojekt

ID 122383

999 vaatamist

Prindi

  • check Pakkumiste tegemine
    kuni 09.09.2025
  • check Võitja valik kuni
    16.09.2025
  • 3 Töö teostamine
    ja hinnang
Hanke lõpp: T, 9. september, 2025
Maakond: Harjumaa
Linn: Tallinn
Tööde lõpp: Kokkuleppel
Ehitusmaterjalid: Töö tegija poolt
Soovin pakkumisi: Summa kogu projektile

Töö sisu

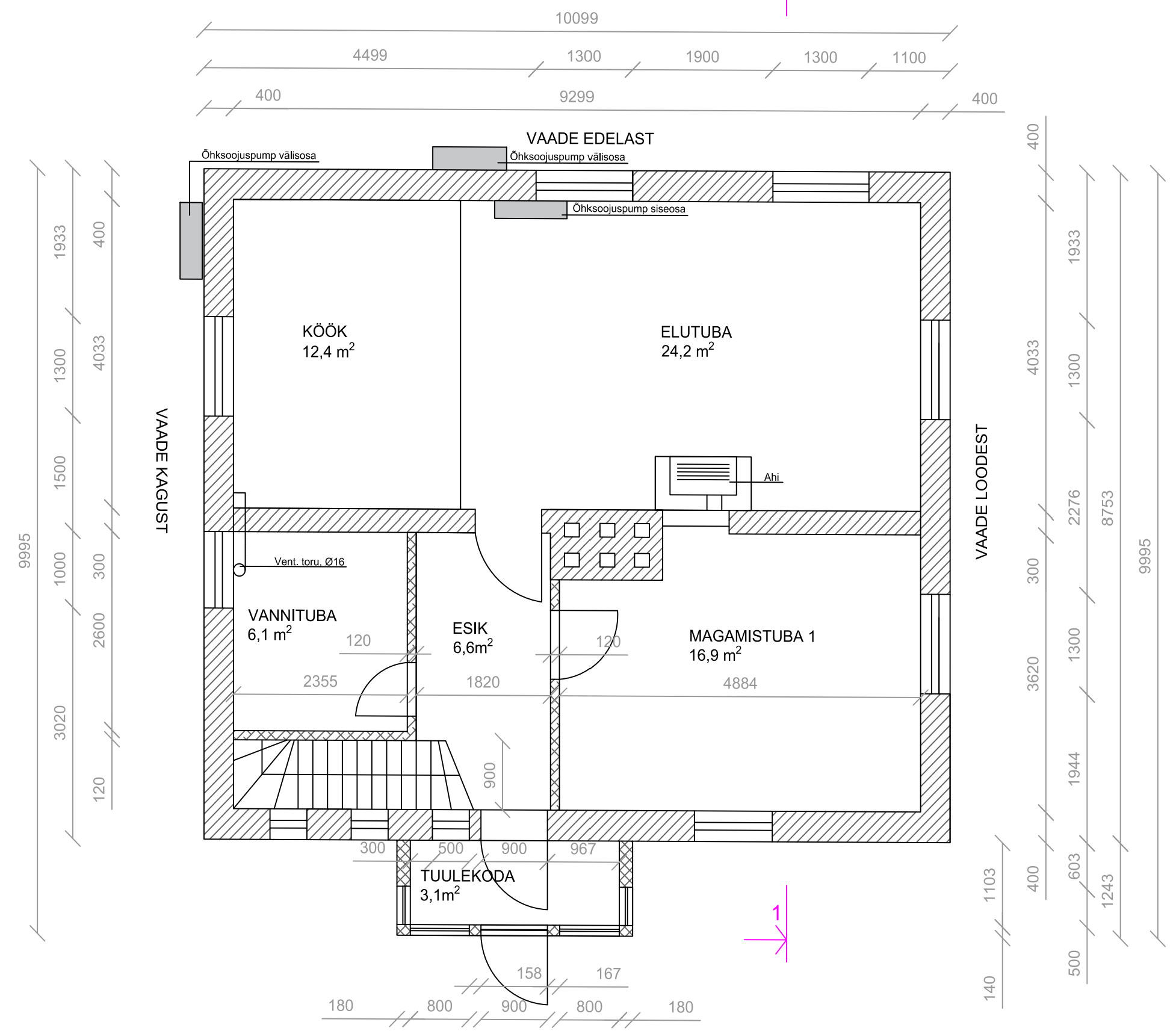
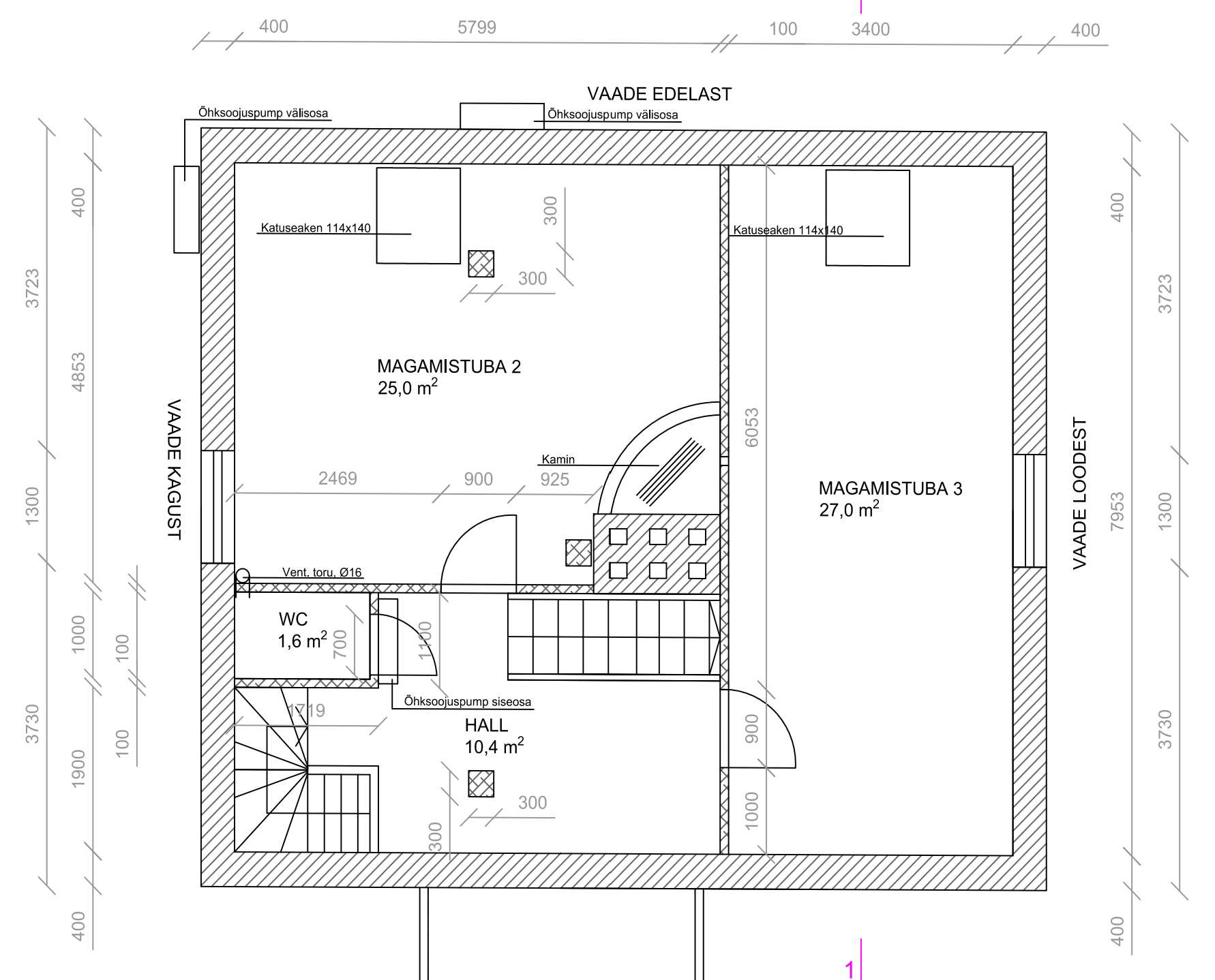
Eramajas Tallinnas, N]mmel on soov kaasajastada kütte ja ventilatsioonisüsteem. Plaan on paigaldada õhk-vesi soojuspump + tarbevee boiler, esimesele korrusele on täismahus soov paigaldada vesi põrandaküte, teisele korrusele radiaatoritel põhinev küte. Lisaks soov paigaldada soojustagastusega ventilatsioon ning majasisene ventilatsioonitorustik. Esimese korruse põrand tuleb täismahus eemaldada ja soojustada. Tehnoõlm tuleks esimese korruse magamistuppa (joonisel Magamistuba 1), mis muutuks tehnoruumiks/panipaigaks.

Vaja on ehitusseadustiku kohaselt nõutavat ehitusprojekti antud tööde teostamiseks, KOV-iga menetlusprotsessi läbiviimine, tehtavate märkuste likvideerimine, põranda kosntruktiivne osa ja soojustamise joonised, läbiviikude joonised, soojuspumba ja ventilatsiooniseadme elektiühenduse võimaluse kontroll, tarbevee ühendamine olemasolevasse võrku (põhimõtteline skeem) + vajalikud mõõdistamised + elementaarset ehitusjärelvalvet ja valmidust ehitaja konsulteerimiseks.

Maja üldjoonised olemas. Maja on ka sisse skaneeritud (3D pilv). Kahjuks puuduvad konstruktsioonilised joonised, kuid ühes kohas on põrand lahti võetud (siiani vaadeldav) ning kinnitatud, et pürandaküte on "tehtav". Ehitisealune pind (m2) 92.4; Köetav pind (m2) 144.5. Esimesel korrusel 2 tuba + esik + vannituba, teisel korrusel 2 tuba + esik + WC. Tegemist on heas korras kivimajaga, mis on täielikult rekonstrueeritud 1996 aastal ja sellest ajast saati elatakse seal sees. Majal on olemas kasutuluba.

Pildid, video ja failid

Hanke korraldaja: eraisik ID81151

Pakkumised

Pakkumisi kokku: 1

Ettevõte Summa Käibemaks Lisatud Vestlus
Kasutaja ikoon ID87046
Pakkuja profiil Väike nool paremale
650€ Sisaldab KM Sisaldab KM 30.08.2025 Vestlus (1)

Pakkumise kirjeldus:

Tere.
Projekt koos seltsukirja, spetsifikatisoonin ning põhiplaanidega. Tase 7 inenseri kinnitus.

Küsimused hanke korraldajale

Hanke korraldajale ei ole veel küsimusi esitatud.

Lisa küsimus

Lisa küsimus

Minu pakkumine

Reeglid

Pakkumise kirjelduse väli on mõeldud pakkumise detailsemaks lahti kirjutamiseks. Pikema teksti mugavaks sisestamiseks klikkige kasti paremal ülaservas oleval ikoonil.
Pakkumist tehes on keelatud postitada enda kontaktandmeid (nimi, telefon, aadress jne). Me jälgime ja analüüsime pakkumisi, et vältida pettuseid ja reeglite rikkumisi.
Rikkumise puhul kasutajakonto blokeeritakse.

 

Teisi töid samas valdkonnas

Valdkonnas "Ehitusprojektid" on 6 aktiivset tööd

no-img Pilt puudub

Ehitusinsener tase 7 vastutav allikiri

Asukoht: Pärnumaa, Pärnu
Aega jäänud: 10h 26 min
Tehtud pakkumisi: 2

Korteri elektri projekt

Asukoht: Harjumaa, Tallinn
Aega jäänud: 2p 10h
Tehtud pakkumisi: 2

Vanemad teated:

Vaata kõiki

Sellel veebilehel kasutatakse küpsiseid. Kasutamist jätkates nõustute küpsiste kasutamisega.

Sulge
 
Minu pakkumine

Reeglid

Pakkumise kirjelduse väli on mõeldud pakkumise detailsemaks lahti kirjutamiseks. Pikema teksti mugavaks sisestamiseks klikkige kasti paremal ülaservas oleval ikoonil.
Pakkumist tehes on keelatud postitada enda kontaktandmeid (nimi, telefon, aadress jne). Me jälgime ja analüüsime pakkumisi, et vältida pettuseid ja reeglite rikkumisi.
Rikkumise puhul kasutajakonto blokeeritakse.