+ Lisa oma töö      

Otsid ehitajat "Ehitusprojektid" valdkonnast?

Parima pakkumise ja teostaja leidmiseks lisa oma töö.

Hange on lõppenud!

Võitjaks osutus kasutaja ID 66770

Korraldaja hinnang tehtud tööle

 
5.0
10.09.2025
Töökiirus: 12345
Kvaliteet: 12345
Hind: 12345

Põrandakütte projekt

ID 120963

819 vaatamist

Prindi

  • check Pakkumiste tegemine
    kuni 08.08.2025
  • check Võitja valik kuni
    15.08.2025
  • 3 Töö teostamine
    ja hinnang
Hanke lõpp: R, 8. august, 2025
Maakond: Läänemaa
Tööde lõpp: Kokkuleppel
Ehitusmaterjalid: Töö tegija poolt
Soovin pakkumisi: Summa kogu projektile

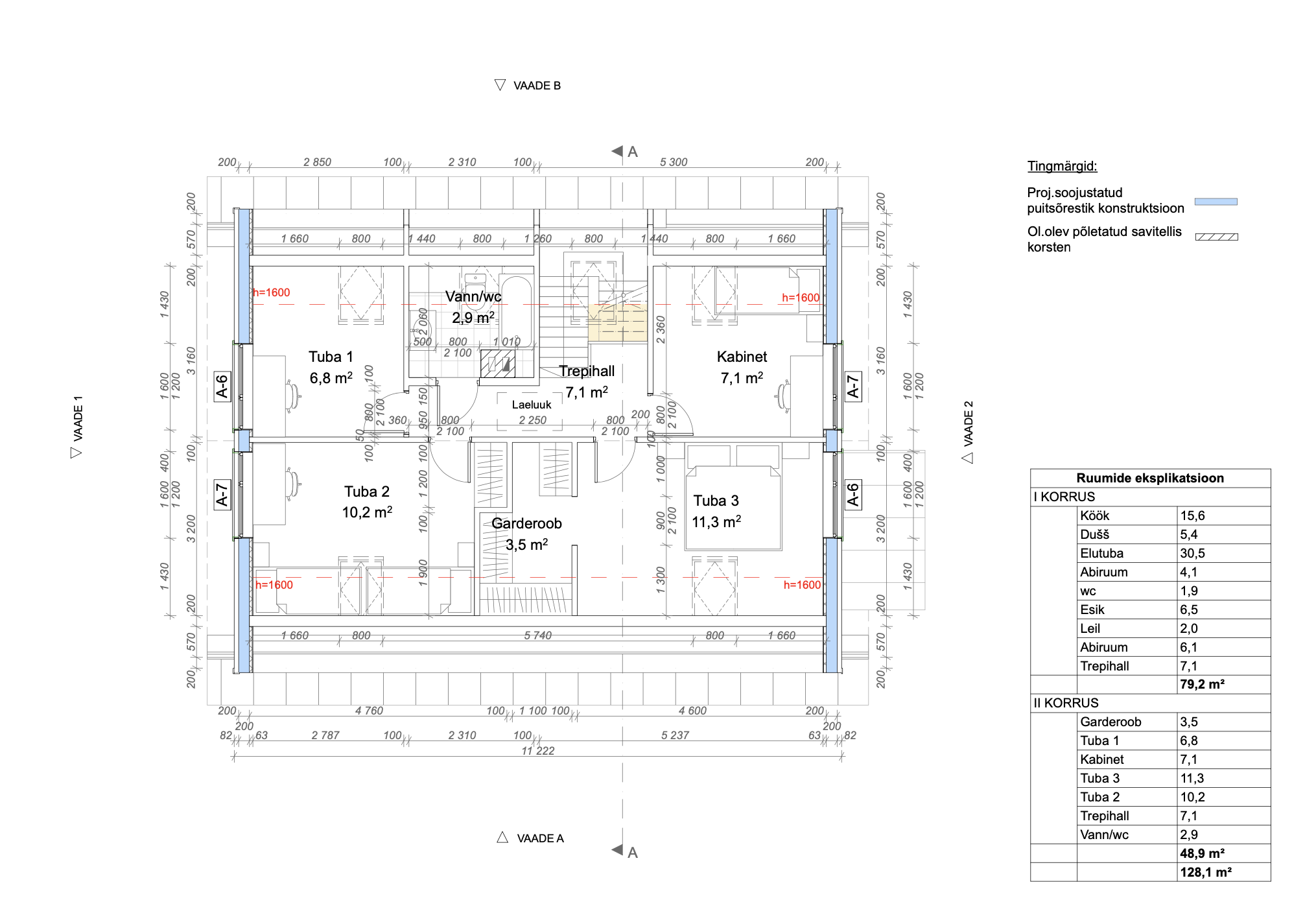
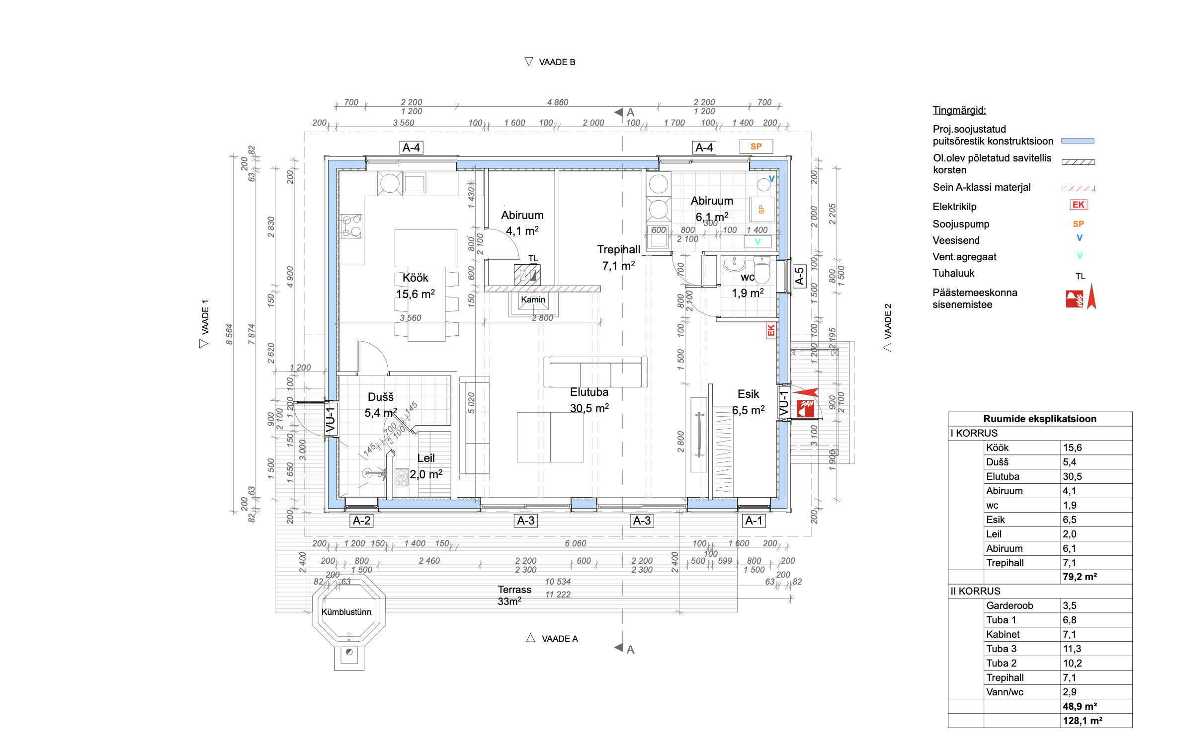
Töö sisu

Põrandakütteprojekt I ja II korrusele. Dwg failid on olemas.

Pildid, video ja failid

Hanke korraldaja: eraisik ID83365

Pakkumised

Pakkumisi kokku: 3

Ettevõte Summa Käibemaks Lisatud Vestlus
Kasutaja ikoon ID86685
Pakkuja profiil Väike nool paremale
1 100€ Ei ole KMKR Ei ole KMKR 08.08.2025 Vestlus (0)

Pakkumise kirjeldus:

Põrandakütte põhiprojekt vastavalt tellija soovidele ja normidele.
Kogemus paljude erinevate objektidega ja olemas vastav pädevus. Tööga saab alustada koheselt.

Kasutaja ikoon ID48870
Pakkuja profiil Väike nool paremale
750€ Ei ole KMKR Ei ole KMKR 08.08.2025 Vestlus (0)

Pakkumise kirjeldus:

Minu pakkumine on 750 eurot
Kui valite mind, on töö kiire
Olen insener, arhitekt tase 7.
Omame MTR registreeringut, EEP-EEO-EPE-EEK,
EEP: arhitektuuri osa
hoonesisene või selle juurde kuuluv veevarustuse või kanalisatsioonisüsteem
konstruktsioonide osa
sisekliima tagamise süsteem
EEO: hoonesisene või selle juurde kuuluv veevarustuse või kanal ... Rohkem

Kasutaja ikoon ID66770
Pakkuja profiil Väike nool paremale
600€ Sisaldab KM Sisaldab KM 08.08.2025 Vestlus (0)

Pakkumise kirjeldus:

Tere,
Antud hinnapakkumine sisaldab kütteüsteemi põhiprojekti eramajale, maht vastavalt standardile EVS 932 "Ehitusprojekt”.
Kütte projektis sisalduvad soojuskadude arvutus, põrandakütte torude projekteerimine, magistraaltorude jooniseid, soojuspumba valimine, põhiseadmete mahtude loetelu ja seletuskiri.
Majandustegevusregistri registreering kü ... Rohkem

Küsimused hanke korraldajale

Hanke korraldajale ei ole veel küsimusi esitatud.

Lisa küsimus

Lisa küsimus

Minu pakkumine

Reeglid

Pakkumise kirjelduse väli on mõeldud pakkumise detailsemaks lahti kirjutamiseks. Pikema teksti mugavaks sisestamiseks klikkige kasti paremal ülaservas oleval ikoonil.
Pakkumist tehes on keelatud postitada enda kontaktandmeid (nimi, telefon, aadress jne). Me jälgime ja analüüsime pakkumisi, et vältida pettuseid ja reeglite rikkumisi.
Rikkumise puhul kasutajakonto blokeeritakse.

 

Teisi töid samas valdkonnas

Valdkonnas "Ehitusprojektid" on 6 aktiivset tööd

no-img Pilt puudub

Ehitusinsener tase 7 vastutav allikiri

Asukoht: Pärnumaa, Pärnu
Aega jäänud: 18h 17 min
Tehtud pakkumisi: 2

Korteri elektri projekt

Asukoht: Harjumaa, Tallinn
Aega jäänud: 2p 18h
Tehtud pakkumisi: 2

Vanemad teated:

Vaata kõiki

Sellel veebilehel kasutatakse küpsiseid. Kasutamist jätkates nõustute küpsiste kasutamisega.

Sulge
 
Minu pakkumine

Reeglid

Pakkumise kirjelduse väli on mõeldud pakkumise detailsemaks lahti kirjutamiseks. Pikema teksti mugavaks sisestamiseks klikkige kasti paremal ülaservas oleval ikoonil.
Pakkumist tehes on keelatud postitada enda kontaktandmeid (nimi, telefon, aadress jne). Me jälgime ja analüüsime pakkumisi, et vältida pettuseid ja reeglite rikkumisi.
Rikkumise puhul kasutajakonto blokeeritakse.