+ Lisa oma töö      

Otsid ehitajat "Projekteerimine" valdkonnast?

Parima pakkumise ja teostaja leidmiseks lisa oma töö.

Hange on lõppenud!

Võitjaks osutus kasutaja ID 38971

Drenaazhi projekt

ID 120462

1378 vaatamist

Prindi

  • check Pakkumiste tegemine
    kuni 27.08.2025
  • check Võitja valik kuni
    03.09.2025
  • 3 Töö teostamine
    ja hinnang
Hanke lõpp: K, 27. august, 2025
Maakond: Harjumaa
Linn: Tallinn
Tööde lõpp: Kokkuleppel
Ehitusmaterjalid: Töö tegija poolt
Soovin pakkumisi: Summa kogu projektile

Töö sisu

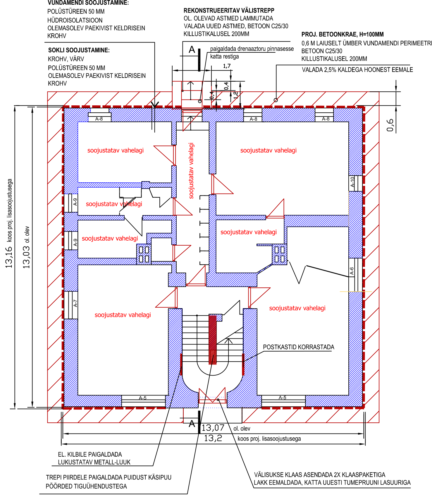
Soovin tellida drenaažiprojekti majale Tallinnas (Pelgulinn, ehitusaasta 1938). Meie ja naaberkruntidel on korduv probleem keldri niiskumisega ning olukord läheb iga aastaga hullemaks. Drenaažisüsteemi seni ehitatud ei ole. Geodeetilist alusplaani ei ole.

Pildid, video ja failid

Hanke korraldaja: korteriühistu ID48296

Pakkumised

Pakkumisi kokku: 2

Ettevõte Summa Käibemaks Lisatud Vestlus
Kasutaja ikoon ID38971
Pakkuja profiil Väike nool paremale
1 800€ KM lisandub KM lisandub 29.07.2025 Vestlus (9)

Pakkumise kirjeldus:

Projekti koostamine ja kooskõlastamine, ehitusloa saamine. Peale projekti valmimist koostame ka pakkumise ehitustööde teostamiseks. Ettemaks hange.ee teenustasu ja kooskõlastustasude jaoks. Pakkumine ei sisalda riigilõivu.

Kasutaja ikoon ID86806
Pakkuja profiil Väike nool paremale
1 500€ Sisaldab KM Sisaldab KM 01.08.2025 Vestlus (3)

Pakkumise kirjeldus:

Tere!

pakkumine sisaldab sokli ja keldrikorruse hüdroisolatsiooni rekonstrueerimise projekti koos ehitusteatise taotlemisega kohalikust omavalitsusest. Pakkumine ei sisalda geodeetilist alusplaani (maksumus ca 370 eurot) ja dendroloogiat (maksumus ca 380 eurot), kui kohalik omavalitsus seda nõuab, sest kaevealas on puud. Drenaaži ja imbväljaku välja ... Rohkem

Küsimused hanke korraldajale

Hanke korraldajale ei ole veel küsimusi esitatud.

Lisa küsimus

Lisa küsimus

Minu pakkumine

Reeglid

Pakkumise kirjelduse väli on mõeldud pakkumise detailsemaks lahti kirjutamiseks. Pikema teksti mugavaks sisestamiseks klikkige kasti paremal ülaservas oleval ikoonil.
Pakkumist tehes on keelatud postitada enda kontaktandmeid (nimi, telefon, aadress jne). Me jälgime ja analüüsime pakkumisi, et vältida pettuseid ja reeglite rikkumisi.
Rikkumise puhul kasutajakonto blokeeritakse.

 

Teisi töid samas valdkonnas

Valdkonnas "Projekteerimine" on 6 aktiivset tööd

no-img Pilt puudub

1-kordse 120 m2 elumaja põhiprojekt

Asukoht: Harjumaa, Metsanurme
Aega jäänud: 8p 15h
Tehtud pakkumisi: 4

no-img Pilt puudub

Saunamaja eelprojekt ehitusteatiseks

Asukoht: Lääne-Virumaa
Aega jäänud: 1p 15h
Tehtud pakkumisi: 3

Vanemad teated:

Vaata kõiki

Sellel veebilehel kasutatakse küpsiseid. Kasutamist jätkates nõustute küpsiste kasutamisega.

Sulge
 
Minu pakkumine

Reeglid

Pakkumise kirjelduse väli on mõeldud pakkumise detailsemaks lahti kirjutamiseks. Pikema teksti mugavaks sisestamiseks klikkige kasti paremal ülaservas oleval ikoonil.
Pakkumist tehes on keelatud postitada enda kontaktandmeid (nimi, telefon, aadress jne). Me jälgime ja analüüsime pakkumisi, et vältida pettuseid ja reeglite rikkumisi.
Rikkumise puhul kasutajakonto blokeeritakse.