+ Lisa oma töö      

Otsid ehitajat "Projekteerimine" valdkonnast?

Parima pakkumise ja teostaja leidmiseks lisa oma töö.

Projekt

ID 119761

1243 vaatamist

Prindi

  • check Pakkumiste tegemine
    kuni 31.07.2025
  • check Võitja valik kuni
    07.08.2025
  • 3 Töö teostamine
    ja hinnang
Hanke lõpp: N, 31. juuli, 2025
Maakond: Järvamaa
Tööde lõpp: Kokkuleppel
Ehitusmaterjalid: Töö tellija poolt
Soovin pakkumisi: Summa kogu projektile

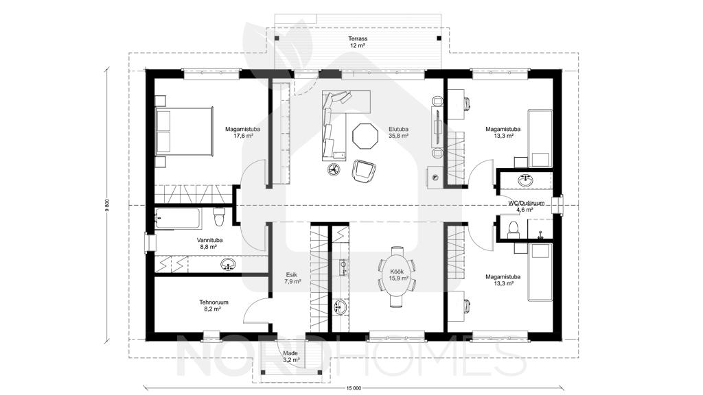
Töö sisu

Eelprojekt koos ehitusloa taotlemisega.

Pildid, video ja failid

Hanke korraldaja: eraisik ID20846

Pakkumised

Pakkumisi kokku: 11

Ettevõte Summa Käibemaks Lisatud Vestlus
Kasutaja ikoon ID69164
Pakkuja profiil Väike nool paremale
2 000€ Ei ole KMKR Ei ole KMKR 17.07.2025 Vestlus (0)

Pakkumise kirjeldus:

Hoone ehitusprojekt eelprojekti staadiumis.

Koostatav projekt vastab EVS 932:2017 ja MKM määruse nr. 97 „Nõuded ehitusprojektile1" nõuetele.

Märkused:
1. Hinnapakkumine ei sisalda Topo-geodeetiliste, ehitusgeoloogiliste, dendroloogiliste uuringute koostamist, ega nende maksumust,
2. Projektiga ja projekteerimisega seotud kõik kooskõlastustas ... Rohkem

Kasutaja ikoon ID86806
Pakkuja profiil Väike nool paremale
1 700€ Ei ole KMKR Ei ole KMKR 17.07.2025 Vestlus (0)

Pakkumise kirjeldus:

Tere!

pakkumine sisadab:
1) Eelprojekti koostamine - asendiplaan, vaated, lõiked, korruste plaanid, katuse plaan, seletuskiri. Soovi korral ka 3D vaated.

2) Ehitusloa taotlemine kohalikust omavalitsusest. Meie töö mahus on suhtlemine kohaliku omavalitsusega, märkuste kõrvaldamine kuni loa väljastamiseni.

3) Hinnas ei sisaldu riigilõiv ja geo ... Rohkem

Kasutaja ikoon ID42152
Pakkuja profiil Väike nool paremale
1 195€ Ei ole KMKR Ei ole KMKR 17.07.2025 Vestlus (0)

Pakkumise kirjeldus:

Ehitusprojekt eelprojekti staadiumis (arh-eh osa koos eriosadega).
Pakkumishind sisaldab:
Seletuskiri
Energiaarvutused
Asendiplaan (vajalik geoalus, mille hind eraldi tööna on 750 EUR)
Vund ja korruse plaanid
KAtuse plaan
Hoone lõige
Hoone vaated
Avatäidete joonised
Jm asjakohased vajalikud joonised

Kooskõlastused ehitusloa saamiseks
Ehitu ... Rohkem

Kasutaja ikoon ID76566
Pakkuja profiil Väike nool paremale
2 100€ KM lisandub KM lisandub 18.07.2025 Vestlus (0)

Pakkumise kirjeldus:

Tere!

Väljatoodud hinnas pakume arhitektuurse eelprojekti koostamist ükeikslamu püstitamiseks ning kooskõlastamist omavalitsusega.

Töömaht sisaldab:

- Eelprojekti taotluse joonised: korruste plaanid, katuse plaan, maja sektsioon, vaated, planeering geoalusel
- Seletuskiri
- Taotluse esitamist ning kohaliku omavalitsusega suhtlust projekt ... Rohkem

Kasutaja ikoon ID37465
Pakkuja profiil Väike nool paremale
1 790€ Ei ole KMKR Ei ole KMKR 21.07.2025 Vestlus (0)

Pakkumise kirjeldus:

Tere

Hind sisaldab arhitektuurse eelprojekti koostamist uue elamu ehitamiseks ja ehitusloa taotlemist.

Töö sisaldab:

-Projekteerimistingimuste teaotlemist, juhul kui neid veel ei ole.
Ehitusprojekti: vundamendi plaani, korruste plaane, katuseplaan, lõige, vaateid, avatäidete spetsifikatsiooni ja asendiplaani koostamist.
-3D vaateid
-Seletuski ... Rohkem

Kasutaja ikoon ID5128
Pakkuja profiil Väike nool paremale
1 500€ Ei ole KMKR Ei ole KMKR 23.07.2025 Vestlus (0)

Pakkumise kirjeldus:

Hinnas arhitekti koostatud eelprojekt, energiamärgis ja EHR toimingud. Hinnas ei ole pädevate inseneride koostatud projekti osasid (mõni KOV ei nõua) ega ei ole hinnas geoalust (saame teha).

Kasutaja ikoon ID87262
Pakkuja profiil Väike nool paremale
1 500€ Ikoon kell Ei ole KMKR Ei ole KMKR 24.07.2025 Vestlus (0)

Pakkumise kirjeldus:

Tere!


Hea meelega koostame teile pakkumise, mis on järgmine:


1. EELPROJEKT
- Koostame eelprojekti vastavalt kehtivatele standarditele ja vajalikus mahus

- Meil on kogemus nii väiksemate kui ka suuremahuliste projektidega. Varasemate töödega saab tutvuda meie kodulehel. Omame ka MTRi registreeringut ja meie meeskonnas on olemas vajaliku ... Rohkem

Kasutaja ikoon ID43351
Pakkuja profiil Väike nool paremale
2 200€ Ei ole KMKR Ei ole KMKR 26.07.2025 Vestlus (0)

Pakkumise kirjeldus:

Pakkumine sisaldab väikeelamu püstituse eelprojekti vastavalt Majandus- ja taristuministri 17.07.2015 määrusele nr 97 „Nõuded ehitusprojektile" ning ehitusloa edukat taotlemist KOV-lt (asjaajamist, lisandub riigilõiv).

Projekti koosseis: seletuskiri, k. a. eriosad jmt; asendiplaan; üldplaanid; üldvaated; üldlõiked; sõlm- ja detailijoonised; 3 ... Rohkem

Kasutaja ikoon ID91960
Pakkuja profiil Väike nool paremale
2 550€ Ei ole KMKR Ei ole KMKR 28.07.2025 Vestlus (0)

Pakkumise kirjeldus:

Oleme tutvunud Teie esitatud hanke tingimustega ning esitame oma pakkumise. Näeme selles projektis võimalust panustada kvaliteetse ning läbimõeldud lahenduse loomisesse ning usume, et saame olla Teie usaldusväärne partner kogu projekteerimisprotsessi jooksul.

EHITUSPROJEKT
Koostame arhitektuurse ehitusprojekti eelprojekti staadiumis. Ehitusprojekti ... Rohkem

Kasutaja ikoon ID77238
Pakkuja profiil Väike nool paremale
1 650€ Ei ole KMKR Ei ole KMKR 31.07.2025 Vestlus (0)

Pakkumise kirjeldus:

Meie spetsialiseerumisvaldkonnaks on elamute projekteerimine, pöörates erilist tähelepanu energiatõhususele, jätkusuutlikkusele ja esteetikale.
Koostame ehitusprojekte vastavalt standardile EVS 932:2017 ning majandus- ja kommunikatsiooniministri määrusele nr 97 „Nõuded ehitusprojektile“. Omame vastavat MTR-i registreeringut.

Käesolev hinnapa ... Rohkem

Kasutaja ikoon ID46826
Pakkuja profiil Väike nool paremale
1 850€ Ei ole KMKR Ei ole KMKR 31.07.2025 Vestlus (0)

Pakkumise kirjeldus:

Eelprojekti vormistamine joonised (vaated , lõige, korruste plaanid, vund. plaan avatäited, asendiplaan ) koos seletuskirjaga
*energiamärgis
*Kooskõlastamised, asjaajamine
*Ehitusloa vormistamine
*Pakkumine ei sisalda geoalust aga saame aidata selle tellimisel

Täpsustavad küsimused oodatud

Küsimused hanke korraldajale

Küsimus: private ID91960   17.07.2025 15:37
1. Kas olemas on kehtiv detailplaneering või KOV poolt väljastatud projekteerimistingimused?
2. Kas topo-geodeetiline alusplaani koostamine tuleb pakkumise sisse arvestada või on see olemas?

Teavita reeglite rikkumisest

Korraldaja vastus: 17.07.2025 15:39

Projekteerimis tingimuste taotlus sisse antud.
Topo-geo alust ei ole.

Teavita reeglite rikkumisest

Lisa küsimus

Lisa küsimus

Minu pakkumine

Reeglid

Pakkumise kirjelduse väli on mõeldud pakkumise detailsemaks lahti kirjutamiseks. Pikema teksti mugavaks sisestamiseks klikkige kasti paremal ülaservas oleval ikoonil.
Pakkumist tehes on keelatud postitada enda kontaktandmeid (nimi, telefon, aadress jne). Me jälgime ja analüüsime pakkumisi, et vältida pettuseid ja reeglite rikkumisi.
Rikkumise puhul kasutajakonto blokeeritakse.

 

Teisi töid samas valdkonnas

Valdkonnas "Projekteerimine" on 6 aktiivset tööd

no-img Pilt puudub

1-kordse 120 m2 elumaja põhiprojekt

Asukoht: Harjumaa, Metsanurme
Aega jäänud: 8p 16h
Tehtud pakkumisi: 4

no-img Pilt puudub

Saunamaja eelprojekt ehitusteatiseks

Asukoht: Lääne-Virumaa
Aega jäänud: 1p 16h
Tehtud pakkumisi: 3

Vanemad teated:

Vaata kõiki

Sellel veebilehel kasutatakse küpsiseid. Kasutamist jätkates nõustute küpsiste kasutamisega.

Sulge
 
Minu pakkumine

Reeglid

Pakkumise kirjelduse väli on mõeldud pakkumise detailsemaks lahti kirjutamiseks. Pikema teksti mugavaks sisestamiseks klikkige kasti paremal ülaservas oleval ikoonil.
Pakkumist tehes on keelatud postitada enda kontaktandmeid (nimi, telefon, aadress jne). Me jälgime ja analüüsime pakkumisi, et vältida pettuseid ja reeglite rikkumisi.
Rikkumise puhul kasutajakonto blokeeritakse.