+ Lisa oma töö      

Otsid ehitajat "Üldehitus" valdkonnast?

Parima pakkumise ja teostaja leidmiseks lisa oma töö.

Abihoone

ID 116992

1420 vaatamist

Prindi

  • check Pakkumiste tegemine
    kuni 05.07.2025
  • check Võitja valik kuni
    12.07.2025
  • 3 Töö teostamine
    ja hinnang
Hanke lõpp: L, 5. juuli, 2025
Maakond: Harjumaa
Muu asula: Harju-Risti
Tööde lõpp: Kokkuleppel
Ehitusmaterjalid: Töö tegija poolt
Soovin pakkumisi: Tüki- või ühikuhinda

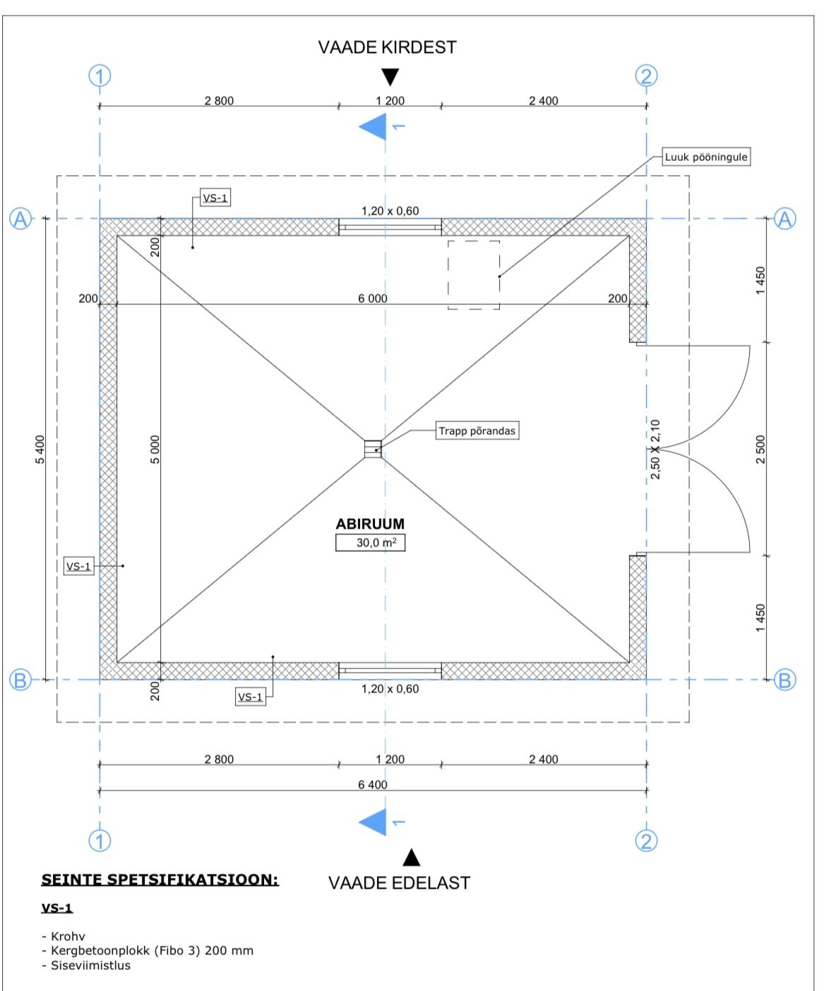
Töö sisu

Vundament on valmis ja kaks rida blokke on paigaldatud.

Pildid, video ja failid

Hanke korraldaja: eraisik ID90907

Pakkumised

Pakkumisi kokku: 1

Ettevõte Summa Käibemaks Lisatud Vestlus
Kasutaja ikoon ID50594
Pakkuja profiil Väike nool paremale
700€ KM lisandub KM lisandub 05.07.2025 Vestlus (2)

Pakkumise kirjeldus:

Tere,

Pakkumine vastavalt hanke kirjeldusele.

Lgp. Taivo

Küsimused hanke korraldajale

Küsimus: private ID87168   06.06.2025 12:27
Tere! Kas on mingi projekt või eelistus hoonele? Tanän!

Teavita reeglite rikkumisest

Korraldaja vastus: 06.06.2025 19:33

Tere proekt on valmis. Sama mis piltidel

Teavita reeglite rikkumisest

Küsimus: private ID87168   06.06.2025 22:05
Seinad puidust või kivist, hoone kõrgus, akna avad, ukseava ja milline katus?

Teavita reeglite rikkumisest

Korraldaja vastus: 07.06.2025 11:58

Tere. Nüüd peaks piltidel kõik andmed nähtavad olema.

Teavita reeglite rikkumisest

Lisa küsimus

Lisa küsimus

Minu pakkumine

Reeglid

Pakkumise kirjelduse väli on mõeldud pakkumise detailsemaks lahti kirjutamiseks. Pikema teksti mugavaks sisestamiseks klikkige kasti paremal ülaservas oleval ikoonil.
Pakkumist tehes on keelatud postitada enda kontaktandmeid (nimi, telefon, aadress jne). Me jälgime ja analüüsime pakkumisi, et vältida pettuseid ja reeglite rikkumisi.
Rikkumise puhul kasutajakonto blokeeritakse.

 

Teisi töid samas valdkonnas

Valdkonnas "Üldehitus" on 44 aktiivset tööd

Vannitoa kapitaalremont ja wc ning vannitoa ühendamine

Asukoht: Pärnumaa, Pärnu
Aega jäänud: 1h 21 min
Tehtud pakkumisi: 6

no-img Pilt puudub

Majal terrassi vahetus

Asukoht: Harjumaa, Tallinn
Aega jäänud: 1h 21 min
Tehtud pakkumisi: 6

Vanemad teated:

Vaata kõiki

Sellel veebilehel kasutatakse küpsiseid. Kasutamist jätkates nõustute küpsiste kasutamisega.

Sulge
 
Minu pakkumine

Reeglid

Pakkumise kirjelduse väli on mõeldud pakkumise detailsemaks lahti kirjutamiseks. Pikema teksti mugavaks sisestamiseks klikkige kasti paremal ülaservas oleval ikoonil.
Pakkumist tehes on keelatud postitada enda kontaktandmeid (nimi, telefon, aadress jne). Me jälgime ja analüüsime pakkumisi, et vältida pettuseid ja reeglite rikkumisi.
Rikkumise puhul kasutajakonto blokeeritakse.