+ Lisa oma töö      

Otsid ehitajat "Üldehitus" valdkonnast?

Parima pakkumise ja teostaja leidmiseks lisa oma töö.

Korteri kapitaalremont

ID 132527

1111 vaatamist

Prindi

  • check Pakkumiste tegemine
    kuni 19.04.2026
  • check Võitja valik kuni
    29.04.2026
  • 3 Töö teostamine
    ja hinnang
Hanke lõpp: P, 19. aprill, 2026
Maakond: Harjumaa
Muu asula: Laagri
Tööde lõpp: Kokkuleppel
Ehitusmaterjalid: Töö tellija poolt
Soovin pakkumisi: Summa kogu projektile

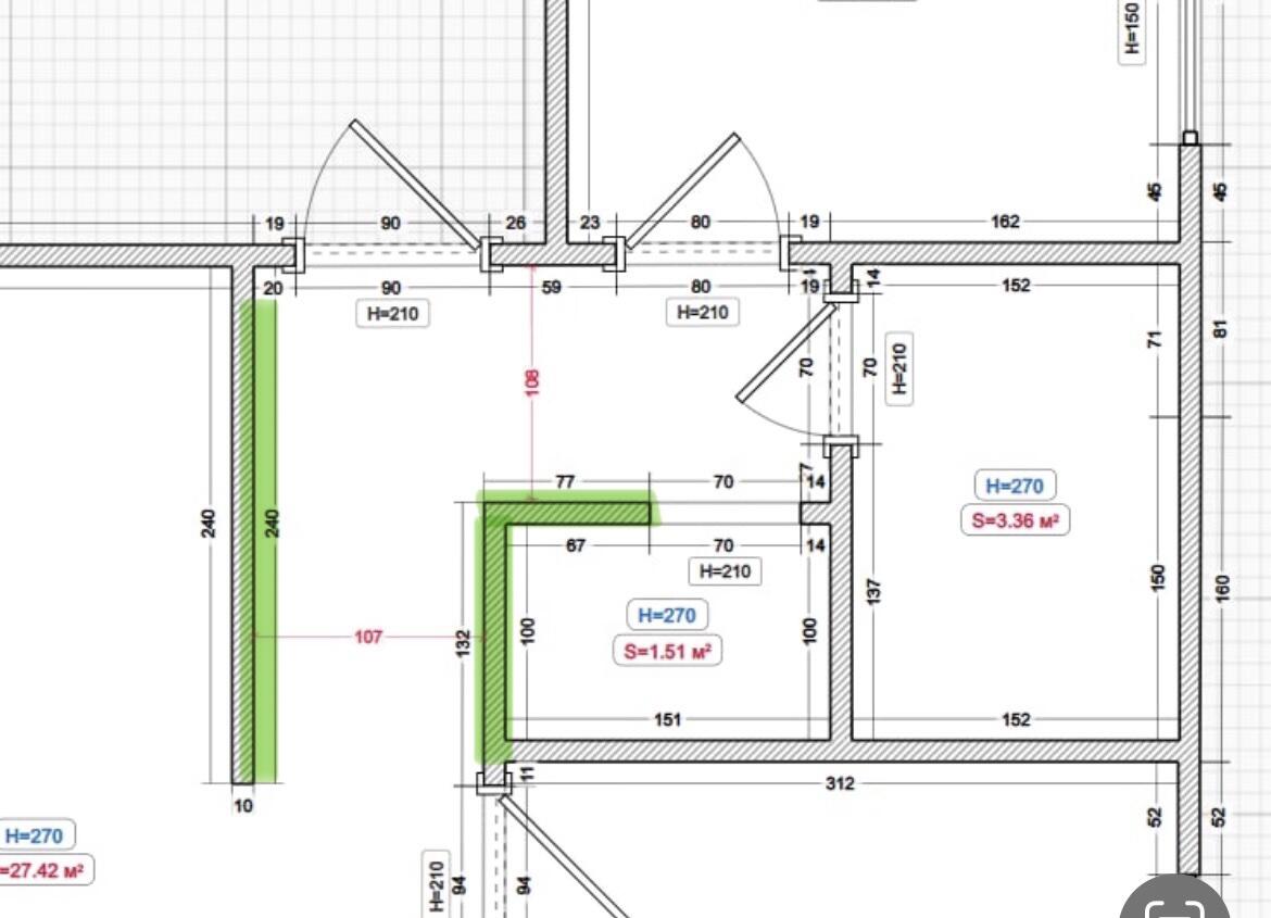
Töö sisu

Vajalik korteri kapitaalremont (korter asub 1. korrusel, 3-toaline korter 48,5 m2). Tööde alustamise aega võimalik alates juulikuust ning lõppaeg olenevalt algusajast, aga kas september-oktoober. Korter antakse üle mööblist tühjaks tehtult.

Vajalikud teostatavate tööde nimekiri:
- Lammutus + prügi äravedu (põrand, uksed, 2 seina, tapeedid - kui on vajalik, wc ja vannituba)
- Korteri uue projekti vastavusse viimine tegelikkusega (ehitusregistris) - võib ka pakkumisest välja jätta.
- Uue põranda ehitus
- Pinglagi/ kipslagi
- Elektritööd (elektrikilbi paigaldamine korterisse. Pistikute ja lülitite paigaldamine.
- Santehnilised tööd (köök, vannituba - torustike vahetus, püstaku vahetus - viimane ühistuga kokkuleppel)
- Seinad (ehitamine, pahteldamine, värvimine jne)
- Akende põskede (pahtledamine jne)
- Siseuste paigaldus (3tk)
- Vannitoa plaatimine + hüdroisolatsioon
- Põranda paigaldamine (sh liistud)

Pildid, video ja failid

Hanke korraldaja: eraisik ID71964

Pakkumised

Pakkumisi kokku: 8

Ettevõte Summa Käibemaks Lisatud Vestlus
Kasutaja ikoon ID87168
Pakkuja profiil Väike nool paremale
25 450€ Ei ole KMKR Ei ole KMKR 05.04.2026 Vestlus (0)

Pakkumise kirjeldus:

TÖÖDE MAHT JA HINNAD
1. Lammutustööd + utiliseerimine
Põrandate, uste, seinte osaline lammutus
Tapeedi eemaldus
Vannitoa ja WC lammutus
Prügi äravedu
Hind: 2 200 €
2. Uue põranda ehitus
Aluspinna ettevalmistus
Tasandus / konstruktsioon
Vajalikud kihid
Hind: 3 200 €
3. Laed (kips / pinglagi)
Karkass
Kips / pinglagi paigaldus
Viimis ... Rohkem

Kasutaja ikoon ID73146
Pakkuja profiil Väike nool paremale
8 900€ KM lisandub KM lisandub 06.04.2026 Vestlus (0)

Pakkumise kirjeldus:

Tere! Eeldatav pakkumine tööle

Kasutaja ikoon ID87262
Pakkuja profiil Väike nool paremale
550€ KM lisandub KM lisandub 07.04.2026 Vestlus (0)

Pakkumise kirjeldus:

Tere!


Hea meelega koostame Teile pakkumise, mis on järgmine:

🏡 I EELPROJEKT
- Digitaliseerime olemasoleva olukorda ning koostame ehitusprojekti, mis sisaldab:
- plaan
- asendiskeem
- 3D-skeem
- seletuskiri
Joonised esitame nii PDF- kui ka DWG-formaadis.

- Meil on kogemus nii väiksemate kui ka suuremahuliste projektidega ... Rohkem

Kasutaja ikoon ID77501
Pakkuja profiil Väike nool paremale
14 550€ KM lisandub KM lisandub 13.04.2026 Vestlus (0)

Pakkumise kirjeldus:

Tere,

Meie ettevõttel on hea meel pakkuda abi teie tööde teostamisel ning esitame allpool oma hinnapakkumise.

Hind sisaldab kõiki ülalnimetatud töid, transpordikulusid ning jäätmete äravedu(utiliseerimise eest maksab tellija).

Kõigile töödele kehtib 2-aastane garantii. Kõik ametlikud aktid ja tööde üleandmine-allkirjastamine toimuvad ... Rohkem

Kasutaja ikoon ID93738
Pakkuja profiil Väike nool paremale
18 000€ KM lisandub KM lisandub 19.04.2026 Vestlus (0)

Pakkumise kirjeldus:

garantii2a/

Kasutaja ikoon ID8356
Pakkuja profiil Väike nool paremale
46 850€ KM lisandub KM lisandub 19.04.2026 Vestlus (0)

Pakkumise kirjeldus:

Tellija hangib parketi, uksed, keraamilised plaadid, san.tehnika, valgustid, pistikupesad, lülitid

Kasutaja ikoon ID70952
Pakkuja profiil Väike nool paremale
9 900€ KM lisandub KM lisandub 19.04.2026 Vestlus (0)

Pakkumise kirjeldus:

Tere,
Saame selle töö kiirelt ja kvaliteetselt ära teha ning tegeleme igapäevaselt antud töödega.
Hetkel hind on indikatiivne kuna oleks vaja natuke täpsemat infot ning objekti ülevaatust.Väike muutus võib olla + - kui kõik ülevaadatud ja Teie soovid ära kuulatud.Pakkumisele lisadub elekritööde hind mis selgub kohapeal, ning oleneb lagedest ... Rohkem

Kasutaja ikoon ID31957
Pakkuja profiil Väike nool paremale
28 500€ Sisaldab KM Sisaldab KM 19.04.2026 Vestlus (0)

Pakkumise kirjeldus:

Tere,

Pakkumine vastavalt hankes küsitule.

Lugupidamisega

Küsimused hanke korraldajale

Küsimus: private ID87262   06.04.2026 14:10
Kas Te ootate tervikpakkumist, kus projekteerimistööd on esitatud koos ehitustöödega, või on võimalik esitada projekteerimistöödele eraldiseisev pakkumine?

Teavita reeglite rikkumisest

Korraldaja vastus: 06.04.2026 18:40

Kuna tervikpakkumine ei eelda projekteerimist, siis võib projekteerimistöödele teha eraldiseisva pakkumise.

Teavita reeglite rikkumisest

Lisa küsimus

Lisa küsimus

Minu pakkumine

Reeglid

Pakkumise kirjelduse väli on mõeldud pakkumise detailsemaks lahti kirjutamiseks. Pikema teksti mugavaks sisestamiseks klikkige kasti paremal ülaservas oleval ikoonil.
Pakkumist tehes on keelatud postitada enda kontaktandmeid (nimi, telefon, aadress jne). Me jälgime ja analüüsime pakkumisi, et vältida pettuseid ja reeglite rikkumisi.
Rikkumise puhul kasutajakonto blokeeritakse.

 

Teisi töid samas valdkonnas

Valdkonnas "Üldehitus" on 37 aktiivset tööd

Põrandakütte torustiku ja kollektori paigaldus.

Asukoht: Harjumaa, Kurkse
Aega jäänud: 11p
Tehtud pakkumisi: 4

no-img Pilt puudub

Heliisolatsiooni paigaldus

Asukoht: Harjumaa, Tallinn
Aega jäänud: 50 min
Tehtud pakkumisi: 3

Vanemad teated:

Vaata kõiki

Sellel veebilehel kasutatakse küpsiseid. Kasutamist jätkates nõustute küpsiste kasutamisega.

Sulge
 
Minu pakkumine

Reeglid

Pakkumise kirjelduse väli on mõeldud pakkumise detailsemaks lahti kirjutamiseks. Pikema teksti mugavaks sisestamiseks klikkige kasti paremal ülaservas oleval ikoonil.
Pakkumist tehes on keelatud postitada enda kontaktandmeid (nimi, telefon, aadress jne). Me jälgime ja analüüsime pakkumisi, et vältida pettuseid ja reeglite rikkumisi.
Rikkumise puhul kasutajakonto blokeeritakse.