+ Lisa oma töö      

Otsid ehitajat "Ehitusprojektid" valdkonnast?

Parima pakkumise ja teostaja leidmiseks lisa oma töö.

Hange on lõppenud!

Võitjaks osutus kasutaja ID 42152

Korraldaja hinnang tehtud tööle

 
5.0
09.12.2025
Töökiirus: 12345
Kvaliteet: 12345
Hind: 12345

Töö teostati kiirelt ja korralikult, suhtlus oli samuti täpne, selge ja kiire. - Karol S.

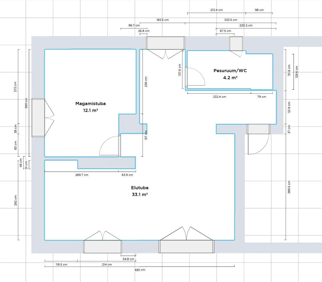
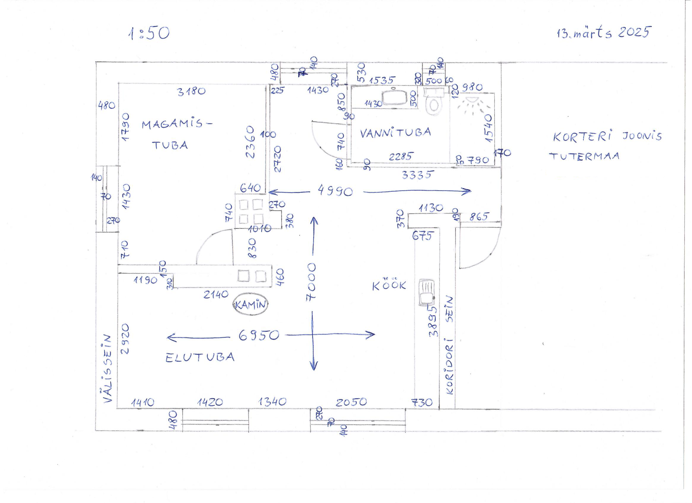
Korterile õhk-vesi soojuspumba projekt

ID 116249

934 vaatamist

Prindi

  • check Pakkumiste tegemine
    kuni 01.06.2025
  • check Võitja valik kuni
    08.06.2025
  • 3 Töö teostamine
    ja hinnang
Hanke lõpp: P, 1. juuni, 2025
Maakond: Harjumaa
Tööde lõpp: Kokkuleppel
Ehitusmaterjalid: Töö tellija poolt
Soovin pakkumisi: Summa kogu projektile

Töö sisu

Palun hinnapakkumist õhk-vesi soojuspumba projektile, et teha korterile kasutusteatis. Korteriühistu esimehe allkirjastatud nõusolek pumba paigaldamiseks on olemas ning pump ise on juba paigaldatud ja töötab.

Pildid, video ja failid

Hanke korraldaja: eraisik ID90603

Pakkumised

Pakkumisi kokku: 3

Ettevõte Summa Käibemaks Lisatud Vestlus
Kasutaja ikoon ID42152
Pakkuja profiil Väike nool paremale
350€ Ei ole KMKR Ei ole KMKR 30.05.2025 Vestlus (4)

Pakkumise kirjeldus:

Ehitusprojekt eluruumi küttesüsteemi ümberehitamiseks eelprojekti staadiumis.
Pakkumishind sisaldab:
Seletuskiri
Asendiskeem Maa-ameti ortofotol
Korruse plaan
Hoone vaade/fotoviide pumba paiknemisest fassaadil
Jm asjakohased vajalikud joonised

Kooskõlastused ehitusteatise registreerimiseks
Ehitusteatise esitamine KOV
Ehitusteatise registreerim ... Rohkem

Kasutaja ikoon ID84172
Pakkuja profiil Väike nool paremale
320€ KM lisandub KM lisandub 31.05.2025 Vestlus (0)

Pakkumise kirjeldus:

Projekt vastavalt nõuetele.
Sisaldab seletuskirja, asendiplaani, korruseplaani, vaadet. Eelprojekti staadium ja valmis nädala jooksul.
Pärast seda esitatakse kasutusteatis kohalikule omavalitsusele. kokku 320+km.

Kasutaja ikoon ID88253
Pakkuja profiil Väike nool paremale
380€ Ei ole KMKR Ei ole KMKR 01.06.2025 Vestlus (0)

Pakkumise kirjeldus:

Minu pakkumine sisaldab soojuspumba paigaldamist kuid ei sisalda korteri kütte projekti.

Küsimused hanke korraldajale

Hanke korraldajale ei ole veel küsimusi esitatud.

Lisa küsimus

Lisa küsimus

Minu pakkumine

Reeglid

Pakkumise kirjelduse väli on mõeldud pakkumise detailsemaks lahti kirjutamiseks. Pikema teksti mugavaks sisestamiseks klikkige kasti paremal ülaservas oleval ikoonil.
Pakkumist tehes on keelatud postitada enda kontaktandmeid (nimi, telefon, aadress jne). Me jälgime ja analüüsime pakkumisi, et vältida pettuseid ja reeglite rikkumisi.
Rikkumise puhul kasutajakonto blokeeritakse.

 

Teisi töid samas valdkonnas

Valdkonnas "Ehitusprojektid" on 6 aktiivset tööd

no-img Pilt puudub

Ehitusinsener tase 7 vastutav allikiri

Asukoht: Pärnumaa, Pärnu
Aega jäänud: 9h 32 min
Tehtud pakkumisi: 2

Korteri elektri projekt

Asukoht: Harjumaa, Tallinn
Aega jäänud: 2p 9h
Tehtud pakkumisi: 2

Vanemad teated:

Vaata kõiki

Sellel veebilehel kasutatakse küpsiseid. Kasutamist jätkates nõustute küpsiste kasutamisega.

Sulge
 
Minu pakkumine

Reeglid

Pakkumise kirjelduse väli on mõeldud pakkumise detailsemaks lahti kirjutamiseks. Pikema teksti mugavaks sisestamiseks klikkige kasti paremal ülaservas oleval ikoonil.
Pakkumist tehes on keelatud postitada enda kontaktandmeid (nimi, telefon, aadress jne). Me jälgime ja analüüsime pakkumisi, et vältida pettuseid ja reeglite rikkumisi.
Rikkumise puhul kasutajakonto blokeeritakse.