+ Lisa oma töö      

Otsid ehitajat "Projekteerimine" valdkonnast?

Parima pakkumise ja teostaja leidmiseks lisa oma töö.

Hange on lõppenud!

Võitjaks osutus kasutaja ID 87262

Korraldaja hinnang tehtud tööle

 
5.0
14.08.2025
Töökiirus: 12345
Kvaliteet: 12345
Hind: 12345

Arvestas kliendi soovidega ja tegi tööd professionaalselt ja vastutustundlikult. - Vidrik B.

Maja projekt

ID 115572

1202 vaatamist

Prindi

  • check Pakkumiste tegemine
    kuni 18.05.2025
  • check Võitja valik kuni
    25.05.2025
  • 3 Töö teostamine
    ja hinnang
Hanke lõpp: P, 18. mai, 2025
Maakond: Lääne-Virumaa
Linn: Tapa
Tööde lõpp: Kokkuleppel
Ehitusmaterjalid: Töö tellija poolt
Soovin pakkumisi: Summa kogu projektile

Töö sisu

Tere!
Soovin maja projekti ehitusloa taotlemiseks.
Võimalik et on vaja ka geodeesiat.
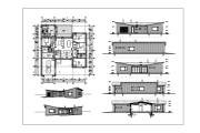
Soovin ühekoruselist 4 magamistoaga maja projekti.
Planeering oleks enam vähem mis pildil aga mõned väiksemad muudatused on vaja teha(tubade suurust suurendada ja mõned ruumid ära kaotada).
Lugupidamisega!

Pildid, video ja failid

Hanke korraldaja: eraisik ID90313

Pakkumised

Pakkumisi kokku: 11

Ettevõte Summa Käibemaks Lisatud Vestlus
Kasutaja ikoon ID69164
Pakkuja profiil Väike nool paremale
2 000€ Ei ole KMKR Ei ole KMKR 15.05.2025 Vestlus (4)

Pakkumise kirjeldus:

Hoone ehitusprojekt eelprojekti staadiumis.

Koostatav projekt vastab EVS 932:2017 ja MKM määruse nr. 97 „Nõuded ehitusprojektile1" nõuetele.

Märkused:
1. Hinnapakkumine ei sisalda Topo-geodeetiliste, ehitusgeoloogiliste, dendroloogiliste uuringute koostamist, ega nende maksumust,
2. Projektiga ja projekteerimisega seotud kõik kooskõlastustas ... Rohkem

Kasutaja ikoon ID76566
Pakkuja profiil Väike nool paremale
2 100€ KM lisandub KM lisandub 15.05.2025 Vestlus (4)

Pakkumise kirjeldus:

Tere!

Väljatoodud hinnas pakume arhitektuurse eelprojekti koostamist hoone püstitamiseks ja kooskõlastamist omavalitsusega.

Töömaht sisaldab:

- Eelprojekti taotluse joonised: vundament, korruste plaanid, katuseplaan, maja sektsioon, vaated, krundi planeering geoalusel
- Seletuskiri
- Taotluste esitamist ning kohaliku omavalitsusega suhtlu ... Rohkem

Kasutaja ikoon ID26988
Pakkuja profiil Väike nool paremale
2 100€ Ei ole KMKR Ei ole KMKR 16.05.2025 Vestlus (0)

Pakkumise kirjeldus:

Pakkumine sisaldab projekti ehitusloa taotlemiseks vajalikus mahus, vastavalt normidele ja standartidele ning Teie kirjeldusele. Kõik kooskõlastused ja asjaajamised kuni ehitusloani. Vajadusel konsultatsioonid. Projekt digitaalselt Teile sobivates formaatides, 3D-visualiseering.
Geoalus, riigilõivud ja seotud asutuste menetlemise tasud ei kuulu pakkumi ... Rohkem

Kasutaja ikoon ID78425
Pakkuja profiil Väike nool paremale
5 000€ KM lisandub KM lisandub 16.05.2025 Vestlus (0)

Pakkumise kirjeldus:

Oleme 15 aastase projekteerimiskogemusega arhitektuuribüroo ning teinud sadu projekte üle eesti ning omame 10 spetsialisti näol piisavalt kompetentsi.
Arhitektuurne eelprojekt (asendiplaan, seletuskiri, korruste plaanid, vaated, lõiked) 4500-
Ehitusloa taotlus ja menetlus (Projekti EHR-i laadimine, andmete ajakohastamine ja KOV-i märkuste
lahendam ... Rohkem

Kasutaja ikoon ID33328
Pakkuja profiil Väike nool paremale
1 590€ Sisaldab KM Sisaldab KM 16.05.2025 Vestlus (0)

Pakkumise kirjeldus:

Tere. Pakkumuse hind sisaldab eramaja ehitusprojekti koostamist ja ehitusloa taotlemist EHR-s. Koostatav projekt vastab standardile EVS 932:2017 – Ehitusprojekt, ja on allkirjastatud seaduse mõttes pädeva isiku poolt.

Projekti sisu:

1. Projekti seletuskiri.
2. Projekti joonised: asendiplaan, vundamendi plaan, korruse plaan, katuse plaan, hoone lõ ... Rohkem

Kasutaja ikoon ID43351
Pakkuja profiil Väike nool paremale
2 250€ Ei ole KMKR Ei ole KMKR 17.05.2025 Vestlus (0)

Pakkumise kirjeldus:

Pakkumine sisaldab väikeelamu püstitamise eelprojekti vastavalt Majandus- ja taristuministri 17.07.2015 määrusele nr 97 „Nõuded ehitusprojektile" ja MKM määrusele nr. 97 „Nõuded ehitusprojektile" ning ehitusloa edukat taotlemist KOV-lt (asjaajamist).

Hinnale (lisanduvad proj.-tingimuste tasu, riigilõivud/ tehn. teenus- ja liitumistasud).

P ... Rohkem

Kasutaja ikoon ID76091
Pakkuja profiil Väike nool paremale
3 000€ Ei ole KMKR Ei ole KMKR 17.05.2025 Vestlus (0)

Pakkumise kirjeldus:

Eelprojekt ehitusloa taotlemiseks

Kasutaja ikoon ID48870
Pakkuja profiil Väike nool paremale
1 750€ Ei ole KMKR Ei ole KMKR 18.05.2025 Vestlus (0)

Pakkumise kirjeldus:

Tere
Ehitusprojekt eelprojekti staadiumis ehitisregistrile esitamiseks
Pakkumishind sisaldab:
Seletuskiri,Korruste plaanid, Katuse plaan,Hoone lõige, Hoone vaated, Avatäidete joonised, jm asjakohased vajalikud joonised, Asendiplaan
Kooskõlastused ehitusloa saamiseks
Ehitusloa taotluse esitamine ehistisregistrisse
Kui arve tuleb eraisikule siis saab ... Rohkem

Kasutaja ikoon ID78618
Pakkuja profiil Väike nool paremale
1 700€ KM lisandub KM lisandub 18.05.2025 Vestlus (0)

Pakkumise kirjeldus:

Arhitektuurne ehitusprojekt eelprojekti staadiumis vastavalt Eesti Vabariigis kehtivatele seadustele.

Projekti maht:
Seletuskiri
Asukohaskeem
Asendiplaan
Hoone plaanid
Hoone vaated
Hoone lõige
Avatäidete spetsifikatsioonid

Energiamärgis u 290+km.
Geodeetiline mõõdistus Tellija poolt või hind selgub peale täpsema info saamist.
Pakkumine ... Rohkem

Kasutaja ikoon ID46826
Pakkuja profiil Väike nool paremale
1 550€ Ei ole KMKR Ei ole KMKR 18.05.2025 Vestlus (0)

Pakkumise kirjeldus:

Eelprojekti vormistamine joonised (vaated , lõige, korruste plaanid, vund. plaan avatäited ) koos seletuskirjaga
*Kooskõlastamised, asjaajamine
*Energiamärgis
*Ehitusloa vormistamine
*Geoalus ca 1500m2 ca 550 eur

Täpsustavad küsimused oodatud

Kasutaja ikoon ID87262
Pakkuja profiil Väike nool paremale
1 700€ Ei ole KMKR Ei ole KMKR 18.05.2025 Vestlus (1)

Pakkumise kirjeldus:

Tere!

Hea meelega koostame Teile ehitusprojekti ning meie pakkumine on järgmine:

1. Ehitusprojekti koostamine
- Koostame ehitusprojekti vastavalt kehtivatele standarditele ja vajalikus mahus.

- Meil on kogemus nii väiksemate kui ka suuremahuliste projektidega. Varasemate töödega saab tutvuda meie kodulehel. Omame ka MTRi registreeringut.

... Rohkem

Küsimused hanke korraldajale

Hanke korraldajale ei ole veel küsimusi esitatud.

Lisa küsimus

Lisa küsimus

Minu pakkumine

Reeglid

Pakkumise kirjelduse väli on mõeldud pakkumise detailsemaks lahti kirjutamiseks. Pikema teksti mugavaks sisestamiseks klikkige kasti paremal ülaservas oleval ikoonil.
Pakkumist tehes on keelatud postitada enda kontaktandmeid (nimi, telefon, aadress jne). Me jälgime ja analüüsime pakkumisi, et vältida pettuseid ja reeglite rikkumisi.
Rikkumise puhul kasutajakonto blokeeritakse.

 

Teisi töid samas valdkonnas

Valdkonnas "Projekteerimine" on 6 aktiivset tööd

no-img Pilt puudub

1-kordse 120 m2 elumaja põhiprojekt

Asukoht: Harjumaa, Metsanurme
Aega jäänud: 8p 18h
Tehtud pakkumisi: 4

no-img Pilt puudub

Saunamaja eelprojekt ehitusteatiseks

Asukoht: Lääne-Virumaa
Aega jäänud: 1p 18h
Tehtud pakkumisi: 3

Vanemad teated:

Vaata kõiki

Sellel veebilehel kasutatakse küpsiseid. Kasutamist jätkates nõustute küpsiste kasutamisega.

Sulge
 
Minu pakkumine

Reeglid

Pakkumise kirjelduse väli on mõeldud pakkumise detailsemaks lahti kirjutamiseks. Pikema teksti mugavaks sisestamiseks klikkige kasti paremal ülaservas oleval ikoonil.
Pakkumist tehes on keelatud postitada enda kontaktandmeid (nimi, telefon, aadress jne). Me jälgime ja analüüsime pakkumisi, et vältida pettuseid ja reeglite rikkumisi.
Rikkumise puhul kasutajakonto blokeeritakse.